AL2 3TW - Plot for sale in Lye Lane, Bricket Wood, AL2

View on Property Piper

Plot for sale in Lye Lane, Bricket Wood, AL2

Summary - Lye Lane, Bricket Wood AL2 3TW

3 bed 3 bath Plot

**Key Features:**
- Freehold plot with approved planning permission (Ref: 5/2022/2527) to build a modern two-story house.
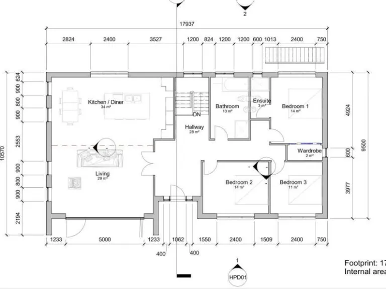
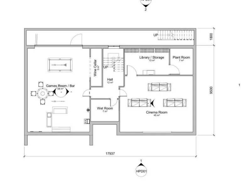
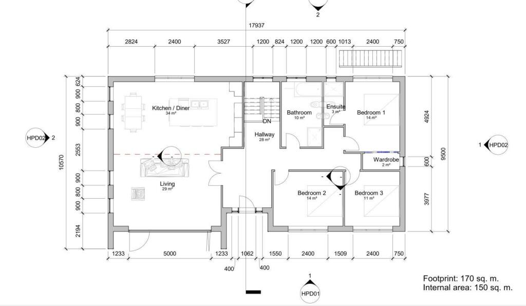
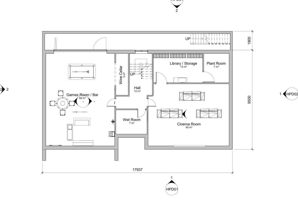
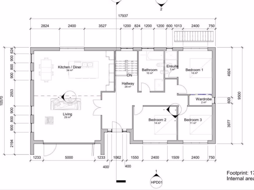
- Generous building size: approx. 3196 sq.ft., offering spacious living with a 31’2” x 28’8” open-plan kitchen/dining/living room, three bedrooms with en-suite, plus a cinema room and games room/bar.
- Located in a serene, semi-rural area off Lye Lane in Bricket Wood, providing a secure gated entrance.
- Surrounded by scenic greenery, offering excellent privacy and tranquility.
- Close proximity to reputable schools, including outstanding Parmiter's School, making it family-friendly.
- Convenient access to M1 and M25 motorways, enhancing commute options.

This remarkable plot located in a desirable area of Bricket Wood presents an incredible opportunity for those looking to invest in a bespoke family home. With approved planning permission already in place, envision creating a stunning residence that blends modern living with serene surroundings. Spanning approximately 39 meters x 36 meters, the design features a superb open-plan living space perfect for entertaining, along with ample private areas for family comfort. The beautiful, leafy environment is ideal for nature lovers seeking a peaceful escape while remaining accessible to essential amenities and transport links. Ideal for families and investors alike, this plot promises the perfect blend of luxury and convenience—seize the moment to build your dream home in this affluent community before this rare opportunity slips away!

Property Details

Brochure Descriptions

Image Descriptions

Floorplan Description

Rooms

Textual Property Features

Detected Visual Features

Nearby Schools

Nearest Bars And Restaurants

,,,,}

Nearest General Shops

,,}

Nearest Grocery shops

,,}

Nearest Supermarkets

,,}

Nearest Religious buildings

,,}

Nearest Medical buildings

,,,}

Nearest Airports

}

Nearest Leisure Facilities

,,,,}

Nearest Tourist attractions

,,}

Nearest Train stations

,,,,}

Nearest Bus stations and stops

,,,,}

Nearest Hotels

,,}

Tags

Local Market Stats

Similar Properties

Meta

High Res Images

Compatible Images

Low res Images

Thumbnails

Raw Images

High Res Floorplan Images

Compatible Floorplan Images

Low res Floorplan Images

FloorplanImages Thumbnail

Raw Floorplan Images