AL2 2QQ - Plot for sale in Orchard Drive, Park Street, St. Albans, AL2

View on Property Piper

Plot for sale in Orchard Drive, Park Street, St. Albans, AL2

Summary - Orchard Drive, Park Street, St. Albans AL2 2QQ

4 bed 2 bath Plot

**Standout Features:**
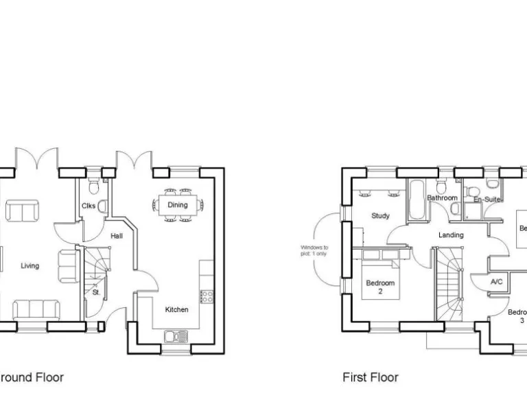
- **Building Plot:** Self-build opportunity for a four-bedroom, 1,177 sq ft home.
- **Planning Approved:** Permissions in place for construction, including a garage and side-by-side parking.
- **Ideal Location:** Situated within a development of 30 detached properties, offering community appeal.
- **Affluent Area:** Located in a desirable, affluent neighborhood with excellent local schools.
- **Future Potential:** A blank canvas for personal customization, with a decent-sized garden.

**Considerations:**
- **Development Rules:** Must adhere to approved planning and material guidelines.
- **Local Crime Rate:** Above-average crime levels may be a concern for some buyers.

Create your dream family home in this prime Orchard Drive building plot, nestled in the tranquil suburb of Park Street, St. Albans. This unique opportunity offers approved planning for a modern four-bedroom detached dwelling that spans 1,177 sq ft, along with a garage and parking for two vehicles. Positioned within a well-planned development of thirty predominantly detached homes, this area combines suburban charm with a vibrant community atmosphere.

Families will appreciate the proximity to highly rated local schools, making it an excellent choice for those looking to settle down in a nurturing environment. While the plot will require adherence to existing planning designs, it provides a perfect foundation for your future vision—creating a home that reflects your personal style. With exclusivity and the potential for appreciation in value, don't miss out on a chance to build in this sought-after location!

Property Details

Brochure Descriptions

Image Descriptions

Rooms

Textual Property Features

Detected Visual Features

Nearby Schools

Nearest Bars And Restaurants

,,,,}

Nearest General Shops

,,}

Nearest Grocery shops

,,}

Nearest Supermarkets

,,}

Nearest Religious buildings

,,}

Nearest Medical buildings

,,,}

Nearest Airports

,,}

Nearest Leisure Facilities

,,,,}

Nearest Tourist attractions

,,}

Nearest Train stations

,,,,}

Nearest Bus stations and stops

,,,,}

Nearest Hotels

,,}

Tags

Local Market Stats

AirBnB Data

Similar Properties

Meta

High Res Images

Compatible Images

Low res Images

Thumbnails

Raw Images

High Res Floorplan Images

Compatible Floorplan Images

Low res Floorplan Images

FloorplanImages Thumbnail

Raw Floorplan Images