**Standout Features:**
- Half-acre plot with planning permission for a 6,000+ sq ft home
- Highly sought-after location in prestigious Arkley, North London
- Strong connectivity: 30 minutes to central London, close to M1 and M25
- Proximity to top-rated schools, including outstanding Ofsted-rated institutions
- Excellent mobile signal; potential for privacy with mature trees around the plot
**Potential Concerns:**
- Currently a fixer-upper with maintenance needed
- Slow broadband speeds may limit connectivity for modern needs
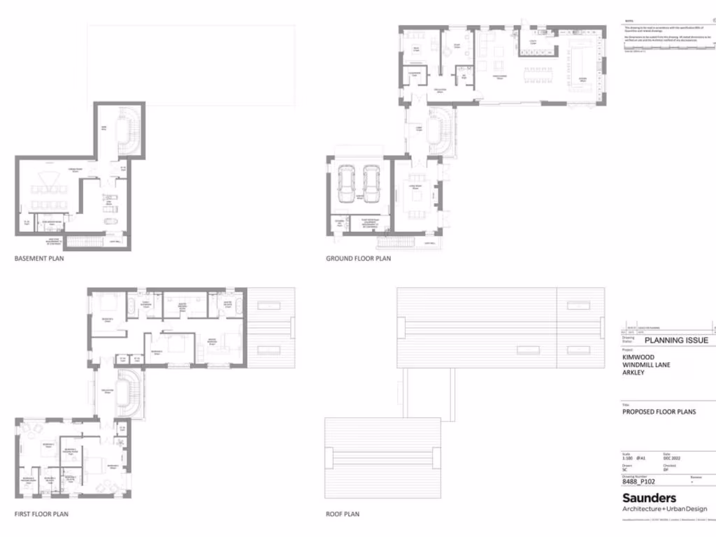
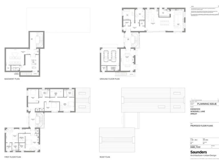
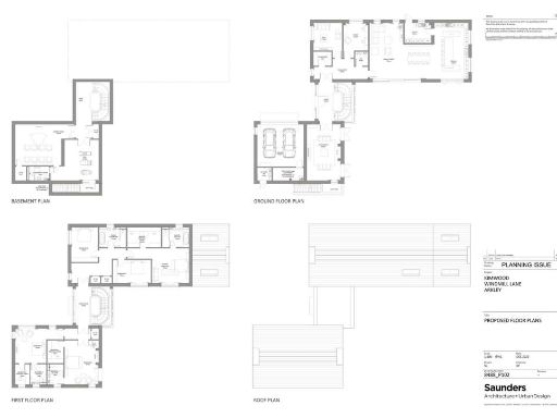
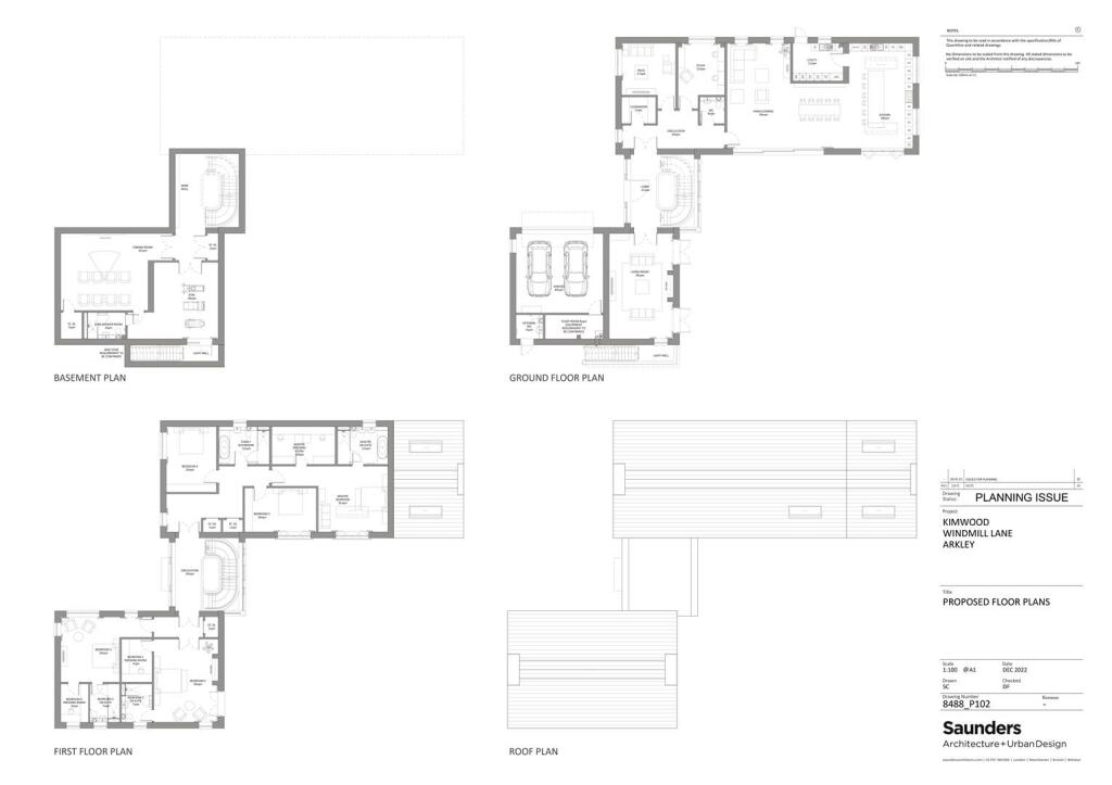
This unique half-acre plot on Windmill Lane in Arkley presents an extraordinary opportunity for aspirational buyers or investors seeking to build an expansive family home. With planning permission already secured for a spacious residence exceeding 6,000 sq ft across three floors, this property promises both exclusivity and comfort in one of the most coveted neighborhoods of North London. The surrounding area boasts excellent educational options, including several top-rated schools, making it appealing for families.
Enjoy the tranquility and seclusion that comes with mature trees enveloping the property, while still benefiting from quick access to major transport links for easy commuting. Whether you’re looking to create a luxurious retreat or a family-friendly abode, this plot can fulfill your vision with ample outdoor space and room to grow. Don't miss your chance to unlock the potential of this exceptional property; opportunities like this often don’t last long!
6 bedroom detached house for sale in Partingdale Lane, Mill Hill Village, NW7 — £3,450,000 • 6 bed • 6 bath • 7500 ft²
Plot for sale in Quinta Drive, Arkley, Hertfordshire, EN5 — £1,495,000 • 1 bed • 1 bath
Land for sale in Partingdale Lane, Mill Hill, London, NW7 — £3,650,000 • 1 bed • 1 bath • 7500 ft²
Land for sale in Quinta Drive, Barnet, EN5 — £1,500,000 • 1 bed • 1 bath • 5468 ft²
Plot for sale in Lye Lane, Bricket Wood, AL2 — £950,000 • 3 bed • 3 bath • 3196 ft²
House for sale in Park Avenue South, Harpenden, AL5 — £3,500,000 • 1 bed • 1 bath • 10000 ft²


































