Six-bedroom licensed HMO in central Headingley—immediate rental income and C4 use in place.
Let until 30 June 2026 generating £35,978 p.a. gross (ex bills)
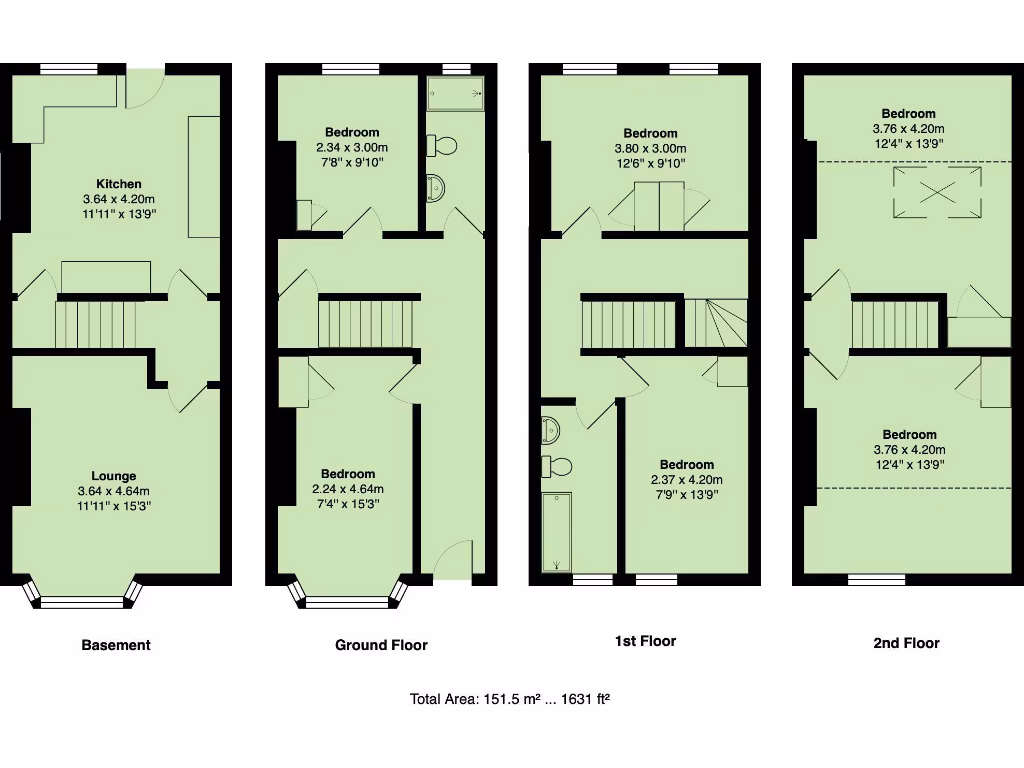
This six-bedroom mid-terrace in the heart of Headingley offers a high-yield HMO already let to 30 June 2026, producing a gross rent of £35,978 p.a. excluding bills. The property holds a lawful C4 certificate and an HMO licence in place until December 2029, allowing continued multi-let use without immediate planning change.
Period features—bay windows, high ceilings and stripped floorboards—combine with a modern fitted kitchen and tiled bathroom to appeal to quality student or young-professional lets. The property is freehold and comes with no lettings management tie-in, so buyers can self-manage or appoint their preferred agent.
Buyers should note practical considerations: the EPC is rated D and the site has a small rear yard rather than a garden. The property is sold subject to the existing tenancy, so possession transfers on sale are constrained by the licence and current agreements. The local area is a busy, cosmopolitan student neighbourhood with higher crime levels than average, which may affect insurance and management costs.
Overall this is a ready-made, centrally located HMO investment with strong rental income and lawful use in place. It suits investors seeking immediate returns from a prime Headingley address but who accept the need to manage tenancy, compliance and some location-linked operating costs.
5 bedroom semi-detached house for sale in St. Michaels Terrace, Leeds, LS6 — £365,000 • 5 bed • 2 bath • 1775 ft²
4 bedroom terraced house for sale in Trelawn Avenue, Leeds, LS6 — £269,950 • 4 bed • 2 bath • 1138 ft²
6 bedroom terraced house for sale in Headingley Avenue, Leeds, LS6 — £350,000 • 6 bed • 3 bath • 1388 ft²
7 bedroom terraced house for sale in Richmond Avenue, Leeds, LS6 — £400,000 • 7 bed • 3 bath • 1633 ft²
5 bedroom terraced house for sale in Norwood Road, Leeds, LS6 — £345,000 • 5 bed • 2 bath • 1455 ft²
6 bedroom terraced house for sale in HMO Investment - Beechwood Terrace, Leeds, LS4 — £295,000 • 6 bed • 3 bath • 1087 ft²


















































