Income-producing HMO with immediate rental return in a prime amenity-rich location.
Let until 30 June 2026 producing net rent £24,305 pa
C4 certificate and EPC rating C confirming lawful HMO use
Well-presented interior with large modern lower-ground dining kitchen
Four bedrooms and two bathrooms configured for HMO occupancy
Small plot and minimal external amenity; low-maintenance forecourt only
Sale requires taking on current lettings management until tenancy end
Located minutes from shops, bars, universities and transport links
Area records above-average crime — important landlord consideration
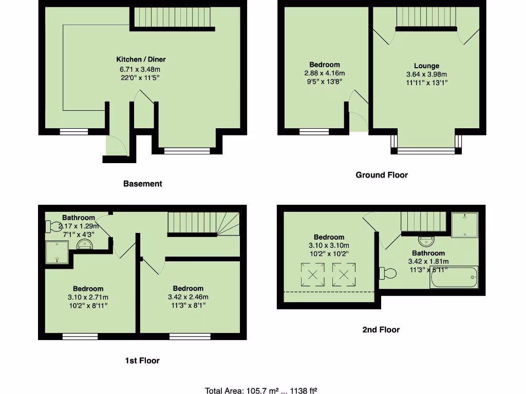
This four-bedroom back-to-back terraced house in central Headingley is arranged and operated as a purpose-built student HMO, offered to an investor as a going concern. It is let to 30 June 2026, producing a net rent of £24,305 pa (stated yield c.9% at the asking price), providing immediate income on completion. The property benefits from an EPC C rating and an existing C4 certificate confirming long-standing HMO use.
Internally the accommodation is in good decorative order and includes a large modern lower-ground dining kitchen, a ground-floor lounge and double bedroom, two first-floor bedrooms with a shower room, and a top-floor bedroom with a second bathroom. The layout and recent improvements make the house attractive to student tenants and straightforward to manage as a LET.
Externally the plot is small with a low-maintenance forecourt and limited external amenity. Prospective buyers should note the sale is conditional on taking on the current lettings management until at least the end of existing tenancy agreements, and the property is situated in an area with above-average recorded crime — both important operational considerations for landlords. Overall this is a compact, income-producing student investment in a prime, amenity-rich Headingley location.
3 bedroom terraced house for sale in Granby Terrace, Leeds, LS6 — £249,950 • 3 bed • 3 bath • 1018 ft²
7 bedroom terraced house for sale in St. Michaels Crescent, Leeds, LS6 — £445,000 • 7 bed • 3 bath • 1829 ft²
5 bedroom semi-detached house for sale in St. Michaels Terrace, Leeds, LS6 — £365,000 • 5 bed • 2 bath • 1775 ft²
6 bedroom terraced house for sale in Bennett Road, Leeds, LS6 — £410,000 • 6 bed • 2 bath • 1631 ft²
5 bedroom terraced house for sale in Norwood Road, Leeds, LS6 — £345,000 • 5 bed • 2 bath • 1455 ft²
6 bedroom terraced house for sale in HMO Investment - Beechwood Terrace, Leeds, LS4 — £295,000 • 6 bed • 3 bath • 1087 ft²






















































