Large garden, double garage and development potential on a popular Hinchley Wood road..
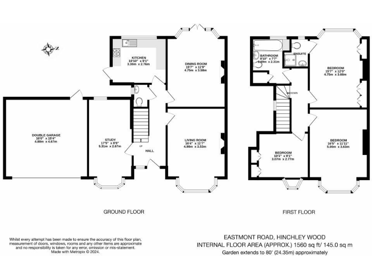
Three bedrooms with three reception rooms for flexible family living
Large corner plot with double garage and extensive garden
Off-road parking for four to five cars
Opportunity to extend or redevelop subject to planning consent
Double glazing and gas central heating installed
Property built 1950s–66; cavity walls assumed uninsulated (energy upgrade likely)
Medium flood risk in area — investigate insurance implications
Council tax rated expensive — higher running costs possible
Set on a large corner plot in sought-after Hinchley Wood, this spacious three-bedroom semi-detached house offers clear family appeal. The home includes three reception rooms, a modern kitchen, gas central heating and double glazing, with a substantial garden and a double garage providing strong practical space for everyday life.
The plot provides genuine scope for further development or extension, subject to the usual planning consents — an attractive prospect for buyers wanting to add value or reconfigure space. Off-road parking for four to five cars and an established lawn make the exterior immediately usable for families and car owners.
Buyers should note the property dates from the 1950s–60s and has cavity walls assumed without insulation, so energy improvements may be desirable. There is a medium flooding risk for the area and council tax is described as expensive, both factors to consider when weighing running costs. The house is offered chain-free, which can simplify and speed up completion.
5 bedroom detached house for sale in Hill Rise, Esher, KT10 — £1,195,000 • 5 bed • 3 bath • 3000 ft²
4 bedroom detached house for sale in Manor Road South, Hinchley Wood, KT10 — £1,500,000 • 4 bed • 1 bath • 2119 ft²
3 bedroom detached house for sale in Medina Avenue, Esher, KT10 — £895,000 • 3 bed • 1 bath • 1107 ft²
3 bedroom semi-detached house for sale in Manor Road North, Hinchley Wood, KT10 — £925,000 • 3 bed • 2 bath • 1243 ft²
3 bedroom detached house for sale in Hillmont Road, Esher, KT10 — £1,100,000 • 3 bed • 1 bath • 1334 ft²
4 bedroom semi-detached house for sale in Manor Road North, Esher, Surrey, KT10 — £1,395,000 • 4 bed • 2 bath • 2169 ft²










































































