Secluded large garden, parking and excellent school catchment near Hinchley Wood station.
Three-bedroom 1930s detached family home with classic bay-windowed reception rooms
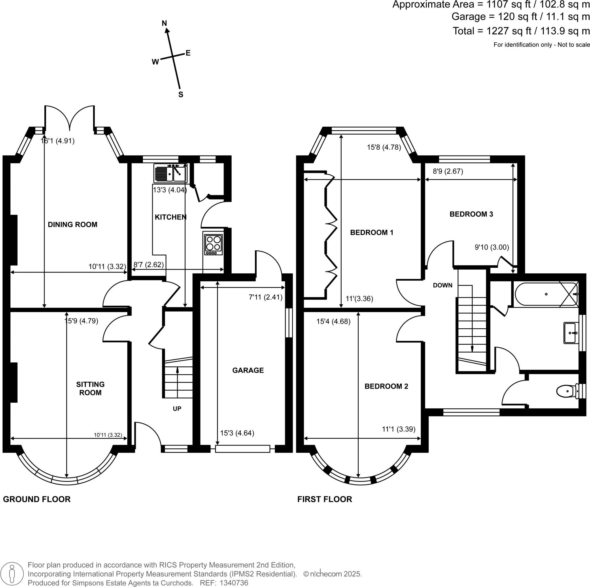
This attractive 1930s detached house offers a classic family layout with three bedrooms, bright bay-front reception rooms and a sizable, secluded rear garden. The property is well presented and ready to occupy, while retaining clear potential to extend to the side and rear (subject to planning permission) to create additional living space.
Practical strengths include off-street parking, a garage and a good connection to local transport — Hinchley Wood station and parade are close by. The house sits within the catchment for highly regarded Hinchley Wood School, making it particularly appealing for families with school-age children.
Buyers should note a few material points: the home dates from 1930 and the cavity walls are assumed to have no insulation, which may affect running costs and could require upgrading. There is a single bathroom only, council tax is described as expensive, and the site sits in a medium flood-risk area. These factors are balanced by the large plot and the scope for extension and improvement.
Overall this is a solid, characterful family home in an affluent area with excellent local schools and transport links. It will suit buyers seeking immediate occupancy with the option to renovate or extend to increase space and value over time.
3 bedroom detached house for sale in Hillcrest Gardens, Esher, KT10 — £950,000 • 3 bed • 1 bath • 1636 ft²
3 bedroom detached house for sale in Hillmont Road, Esher, KT10 — £1,100,000 • 3 bed • 1 bath • 1334 ft²
3 bedroom detached house for sale in Southmont Road, Esher, KT10 — £975,000 • 3 bed • 1 bath • 1377 ft²
3 bedroom semi-detached house for sale in Eastmont Road, Hinchley Wood, KT10 — £995,000 • 3 bed • 2 bath • 1560 ft²
4 bedroom detached house for sale in Southmont Road, Esher, Surrey, KT10 — £1,000,000 • 4 bed • 2 bath • 1940 ft²
4 bedroom detached house for sale in Hinchley Drive, Esher, KT10 — £1,150,000 • 4 bed • 1 bath • 1281 ft²


















































