Large freehold site with consent for two detached homes, ideal for builders..
Full planning permission for two chalet-style homes (WD/2021/0738/F).
Freehold large plot with generous garden space and development potential.
Plot 1 has footings in place and is self-build designated.
Plot 2 has CIL paid; GDV indicated at approximately £1.1m.
Existing mid-20th-century bungalow small with low ceilings; likely demolition.
No flood risk; excellent mobile signal and fast broadband.
Area described as comfortable suburbia with very low crime.
Further site works, construction costs and planning conditions remain.
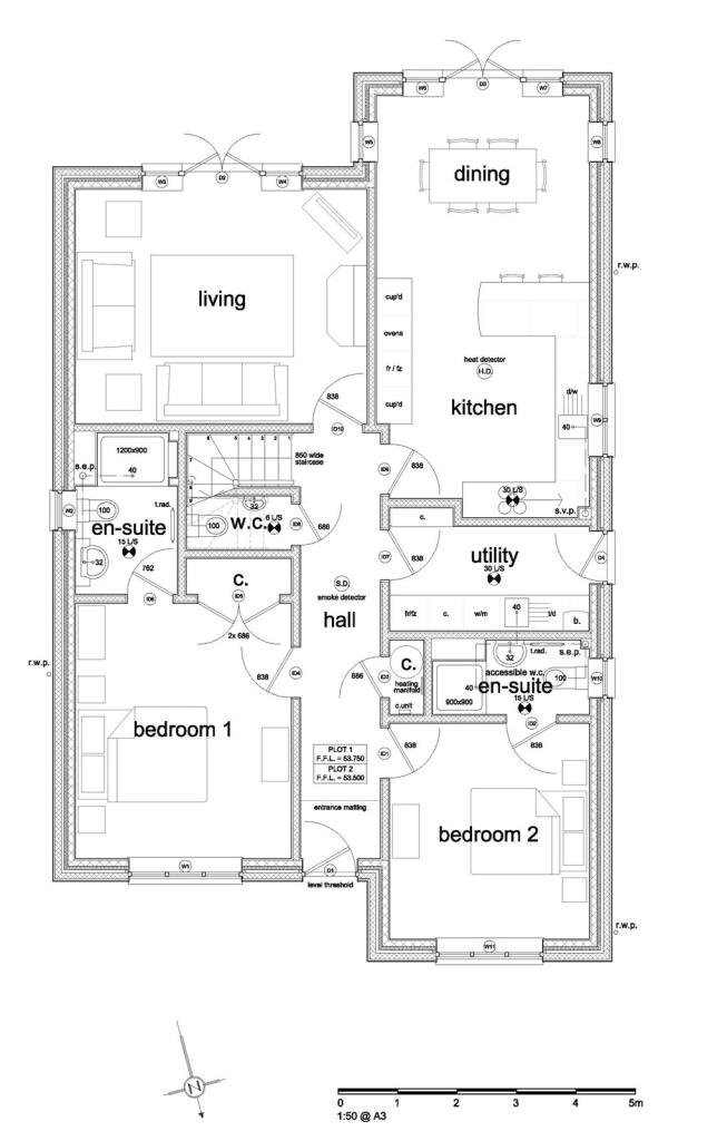
This large freehold plot on Dittons Road comes with full planning permission (WD/2021/0738/F) to build two detached chalet-style homes, presenting a clear development route for builders or buy-to-let investors. Plot 1 (west) already has footings in place and is designated self-build; Plot 2 (east) has Community Infrastructure Levy paid. The site sits in a comfortable suburban area of Pevensey with fast broadband, excellent mobile signal and very low crime, supporting strong rental or sales prospects.
An existing mid-20th-century bungalow occupies part of the land; it’s small with low ceilings and represents either demolition or extensive refurbishment. The planning consent anticipates well-proportioned dwellings set in generous gardens, and a projected GDV of around £1,100,000 has been indicated. Flooding risk is recorded as none, simplifying insurance and build considerations.
Buyers should note this is a development opportunity rather than a finished property: further site works, construction costs and statutory fees remain. Local schooling includes several Good-rated primaries and a mix of secondary options nearby. The plot’s large size and granted consent significantly reduce planning risk, but purchasers must confirm any outstanding conditions, connections and exact build costs before exchange.
Land for sale in Lower Dicker, Hailsham, BN27 — £750,000 • 1 bed • 1 bath
Plot for sale in Sutton Drove, Seaford, BN25 — £595,000 • 1 bed • 1 bath
Land for sale in Lower Dicker, Hailsham, BN27 — £750,000 • 1 bed • 1 bath
Land for sale in WIllingford Farm, South Lane, Dallington, Heathfield, TN21 — £290,000 • 1 bed • 1 bath • 1139 ft²
Land for sale in Windmill Hill, Hailsham, East Sussex, BN27 — £400,000 • 1 bed • 1 bath
Land for sale in Lower Dicker, Hailsham, BN27 — £750,000 • 1 bed • 1 bath


































