**Standout Features:**
- Large development land with planning permission for a detached Eco-style holiday cottage
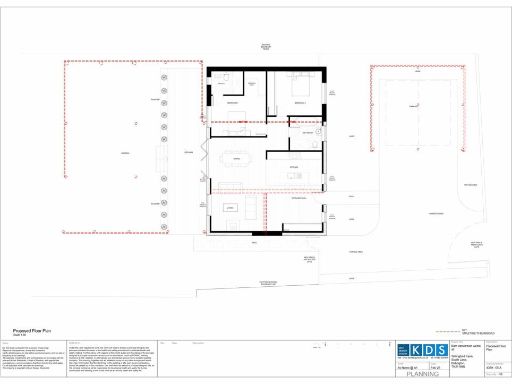
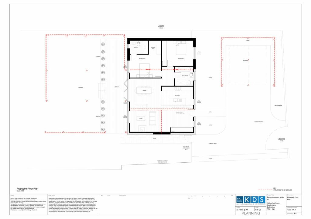
- Spacious layout of 1,139 sq ft, including two double bedrooms with an ensuite and family bathroom
- Generous front and rear gardens with ample off-street parking
- Quiet rural setting with views of grazing paddocks and woodlands
- High rental potential, estimated at circa £1,500 per week during peak season
**Concerns:**
- Current planning only allows for a holiday cottage and may not easily convert to residential use
- Development would require future planning rule changes for residential conversion
Nestled in the tranquil hamlet of Dallington, this unique development opportunity offers approved plans for a beautifully designed Eco-style holiday cottage. Covering 1,139 square feet, the layout features a welcoming reception hall, a spacious open-plan living area, two well-proportioned double bedrooms, and generous gardens both front and rear. With planning permission already secured, future owners can anticipate strong rental yields from holiday lettings, particularly appealing for those seeking both investment potential and a serene getaway.
The setting is ideal for nature lovers, backing onto lush paddocks and wooded areas, while ensuring ease of access to local amenities, including the charming Swan Inn, shops, and great primary schools. Dallington is also conveniently located near Heathfield and Battle, with easy links to the south coast beaches. Don’t miss this exclusive opportunity to secure a piece of rural paradise with the potential for high-yield holiday rentals—properties like this seldom stay on the market for long!
Land for sale in Ninfield Road, Lunsford Cross, Bexhill On Sea, East Sussex, TN39 — £1,175,000 • 1 bed • 1 bath • 2152 ft²
Plot for sale in Chitcombe Road, Broad Oak, TN31 — £225,000 • 1 bed • 1 bath • 1214 ft²
Plot for sale in Whatlington Road, Battle, TN33 — £400,000 • 1 bed • 1 bath • 2680 ft²
Plot for sale in Chitcombe Road, Broad Oak, TN31 — £275,000 • 1 bed • 1 bath • 2088 ft²
2 bedroom detached bungalow for sale in Telham Lane, Battle, TN33 — £575,000 • 2 bed • 1 bath • 651 ft²
Plot for sale in Coldharbour Lane, Punnetts Town, Nr Heathfield, TN21 — £350,000 • 3 bed • 1 bath






























