LN2 2TX - Land for sale in Development Land, Scothern Road, Nettleham…

View on Property Piper

Land for sale in Development Land, Scothern Road, Nettleham, Lincoln, Lincolnshire, LN2

Summary - 4 SCOTHERN ROAD NETTLEHAM LINCOLN LN2 2TX

1 bed 1 bath Land

**Standout Features:**
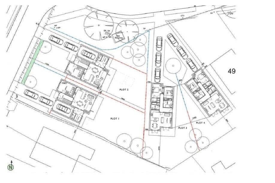
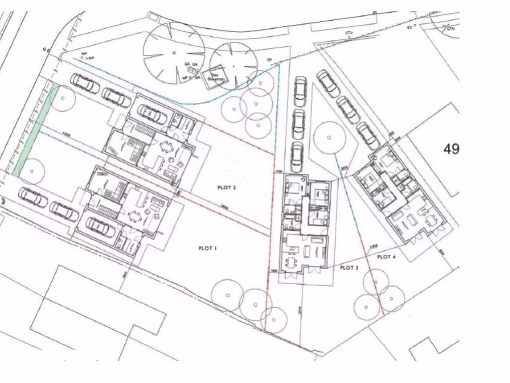
- Full planning permission granted for four detached dwellings (2 houses and 2 bungalows)
- Prime corner site location on a 0.45-acre cleared plot
- Services available; Certificate of Lawful Use of Development in place
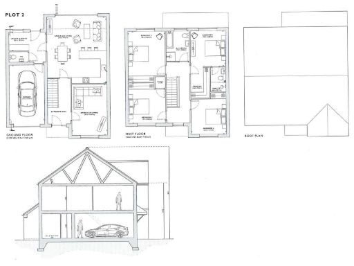
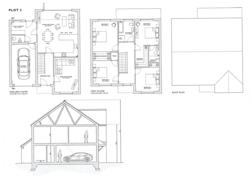
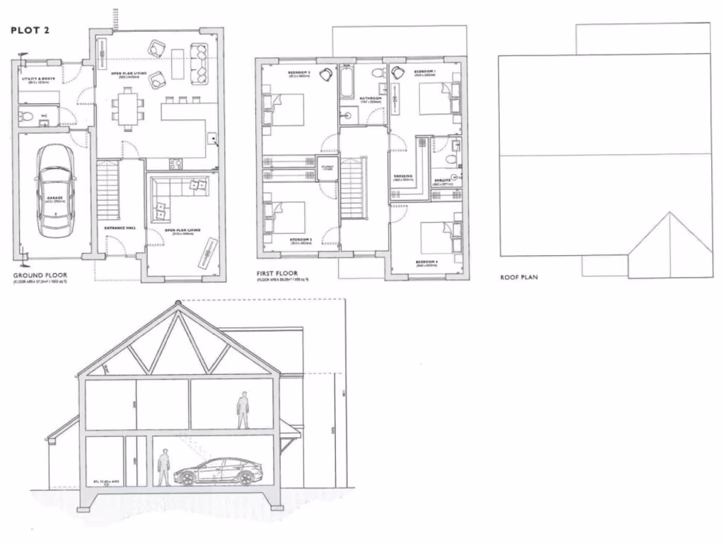
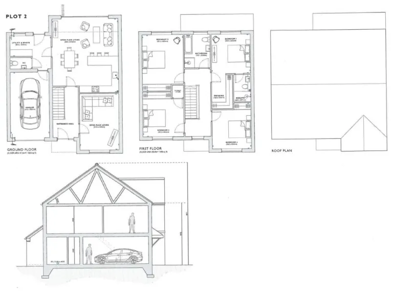
- Proposed layout includes 2 x 4-bedroom houses (approx. 1,786 sq.ft each) and 2 x 3-bedroom bungalows (approx. 901 sq.ft each)
- Access from both Scothern Road and Highfields for convenient entry points
- Located in the desirable village of Nettleham, near Lincoln

This exceptional residential development land offers a rare opportunity to realize your vision in an affluent community. With full planning permission secured for two spacious four-bedroom detached houses and two charming three-bedroom bungalows, this large 0.45-acre site is primed for construction. Positioned in the coveted village of Nettleham, the property benefits from convenient access points and essential services nearby, making it an attractive prospect for families or investors looking to capitalize on the area’s expanding market.

While the site is currently vacant and cleared of the previous bungalow, potential buyers should take note of the available services and conduct their due diligence regarding utility connections. This unique opportunity allows for creativity in development or the chance to create a multi-family residence in a peaceful rural setting, perfect for those seeking comfort and community living. Act quickly, as this development potential may not last long.

Property Details

Brochure Descriptions

Image Descriptions

Textual Property Features

Detected Visual Features

Nearby Schools

Nearest Bars And Restaurants

,,,,}

Nearest General Shops

,,}

Nearest Grocery shops

,,}

Nearest Supermarkets

,,}

Nearest Religious buildings

,,}

Nearest Medical buildings

,,,}

Nearest Airports

}

Nearest Leisure Facilities

,,,,}

Nearest Tourist attractions

,,}

Nearest Train stations

,,,,}

Nearest Bus stations and stops

,,,,}

Nearest Hotels

,,}

Tags

AirBnB Data

Similar Properties

Meta

High Res Images

Compatible Images

Low res Images

Thumbnails

Raw Images