Large four-bedroom property with south garden and superior German kitchen in Bearsden.
Approx. 3,034 sq ft across seven principal rooms
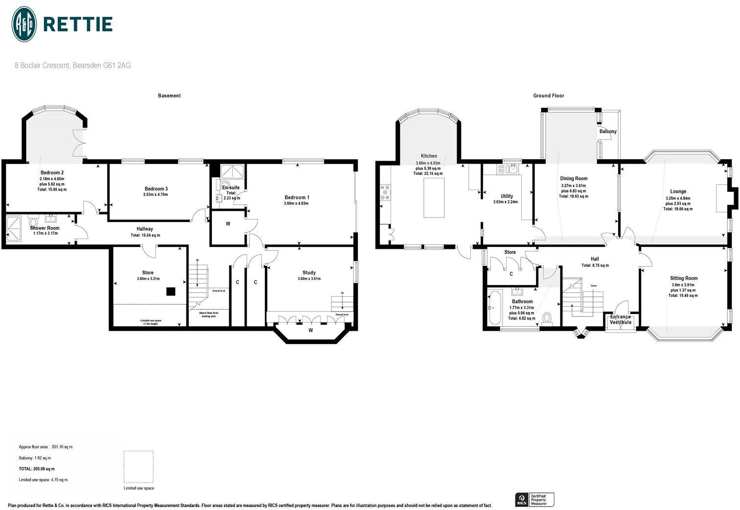
This substantial four-bedroom detached home occupies a generous plot in a highly regarded Bearsden Crescent. At around 3,034 sq ft the property delivers seven principal rooms across split levels, combining period character with contemporary interventions and a high standard of finish throughout.
The heart of the house is the Pronorm German kitchen with integrated Siemens and Bosch appliances and an adjoining utility. Accommodation includes a ground-floor reception suite, cloakroom, and a lower level that opens directly onto the south-facing rear garden, where the principal bedroom benefits from a walk-in dressing closet and en-suite shower room.
Practical strengths include off-street parking with newly laid monobloc driveway, gas central heating, fast broadband and excellent mobile signal. The setting is convenient for Killermont Primary and Boclair Academy and close to Hillfoot railway station and local shops and services.
Notable drawbacks are factual: the property carries an EPC rating of D and sits in Council Tax Band G (relatively expensive). Area-level data supplied also flags deprivation despite the local reputation for affluence. The site slopes from front to rear, which affects levels between street and garden.
4 bedroom town house for sale in Annan Drive, Bearsden, G61 — £360,000 • 4 bed • 4 bath • 1765 ft²
4 bedroom detached house for sale in Cluny Avenue, Bearsden, G61 — £479,000 • 4 bed • 2 bath • 1980 ft²
5 bedroom detached house for sale in Boclair Brae, Bearsden, G61 — £665,000 • 5 bed • 5 bath • 2433 ft²
4 bedroom detached house for sale in Lomond Road, Bearsden, G61 — £440,000 • 4 bed • 2 bath • 1932 ft²
4 bedroom detached villa for sale in Cairnhill Road, Bearsden, G61 1AU, G61 — £499,999 • 4 bed • 3 bath • 1763 ft²
5 bedroom semi-detached house for sale in 21 Allander Road, Bearsden, G61 1LT, G61 — £385,000 • 5 bed • 3 bath • 1679 ft²






























































































































































































