Spacious family house with private south-facing garden.
Four double bedrooms across two levels
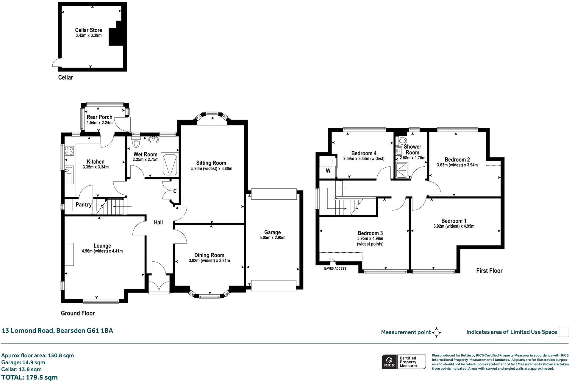
Set on a quiet street in Bearsden’s sought-after Switchback district, this four-bedroom detached home offers substantial family accommodation across two stories. The property, built in the 1950s with a full-width dormer extension, provides three generous reception rooms, a breakfasting kitchen and four double bedrooms — a flexible layout for growing families.
The rear garden is south-facing, private and well maintained, with lawn and mature planting that will suit family life and outdoor play. Off-street parking and a single garage add practical convenience. Broadband speeds are fast and mobile signal is excellent, supporting home working and connectivity.
The house has been well loved but shows scope for updating and personalisation; original features such as a fireplace and cast-iron radiators remain. EPC is Band C. Council Tax is Band G and described as quite expensive. Prospective buyers should note the local area classification flags “very deprived” for area deprivation, which may be relevant for long-term resale considerations.
Location benefits include proximity to Westerton Primary and Boclair Academy catchments, Westerton rail services into Glasgow, local shops and new leisure facilities. The property offers immediate family comfort with clear potential for redesign and improvement subject to taste and budget.
4 bedroom detached house for sale in Birnam Crescent, Bearsden, G61 — £410,000 • 4 bed • 2 bath • 1636 ft²
4 bedroom detached house for sale in Kelvin Crescent, Bearsden, G61 — £468,000 • 4 bed • 3 bath • 1389 ft²
4 bedroom detached house for sale in Fernlea, Bearsden, G61 — £395,000 • 4 bed • 2 bath • 1450 ft²
4 bedroom link detached house for sale in Westbourne Crescent, Bearsden, Glasgow, East Dunbartonshire, G61 — £315,000 • 4 bed • 2 bath • 1199 ft²
4 bedroom detached house for sale in Ravelston Road, Bearsden, G61 — £450,000 • 4 bed • 2 bath • 1642 ft²
4 bedroom town house for sale in Annan Drive, Bearsden, G61 — £360,000 • 4 bed • 4 bath • 1765 ft²


































































































































































































































































