**Standout Features:**
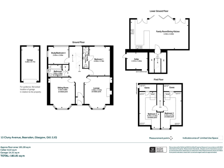
- Newly renovated 4-bedroom detached house with 1980 sq ft of living space.
- Unique blend of traditional 1930s front facade and modern rear extension.
- Impressive open-plan kitchen/dining/living area with bi-fold doors leading to a private garden.
- Includes a garage and ample parking for up to four cars.
- Located in an affluent community, near excellent schools and parks.
- Chain-free and freehold ownership.
**Concise Summary:**
This stunningly reimagined 1930s bungalow has been transformed into an impressive detached family home, encompassing 4 bedrooms and 2 bathrooms across 1980 sq ft. The eye-catching traditional front facade leads to a chic modern rear extension featuring a spacious open-plan kitchen, dining, and living area, complete with bi-fold and French doors that open seamlessly to a large, private garden. Perfect for families or investors, the property boasts a versatile layout that allows for both entertaining and comfort, while the meticulous renovation ensures excellent condition throughout.
Conveniently located in the sought-after area of Bearsden, this property sits within the catchment of top schools and offers easy access to local amenities, parks, and transport links into Glasgow. While council tax is on the more expensive side, the investment potential here is significant, especially with its chain-free status. Don’t miss the opportunity to own this unique and stylish home that perfectly balances classic charm with contemporary living. Act fast; homes like this in such a desirable location won’t last long!
2 bedroom detached house for sale in Gray Drive, Bearsden, G61 — £445,000 • 2 bed • 1 bath • 1318 ft²
4 bedroom detached house for sale in Abercrombie Drive, Bearsden, G61 — £479,000 • 4 bed • 2 bath • 1980 ft²
3 bedroom detached house for sale in Lochaber Road, Bearsden, G61 — £460,000 • 3 bed • 2 bath
4 bedroom detached bungalow for sale in 22 Lochaber Road, Bearsden, G61 2JU, G61 — £515,000 • 4 bed • 2 bath • 1615 ft²
4 bedroom detached house for sale in Boclair Crescent, Bearsden, G61 — £795,000 • 4 bed • 3 bath • 3034 ft²
4 bedroom detached house for sale in Kelvin Crescent, Bearsden, G61 — £468,000 • 4 bed • 3 bath • 1389 ft²










































































































































































