Auction-ready infill site with positive pre-app and worthwhile GDV potential.
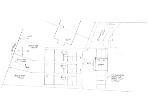
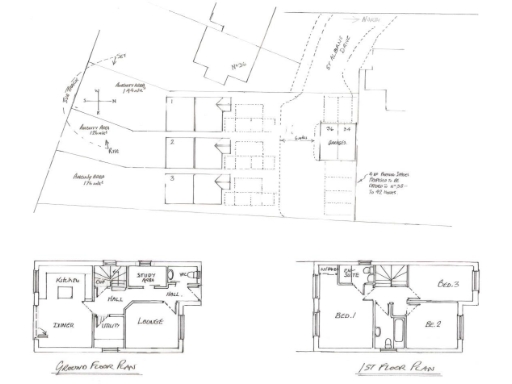
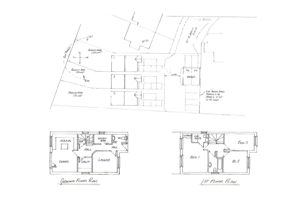
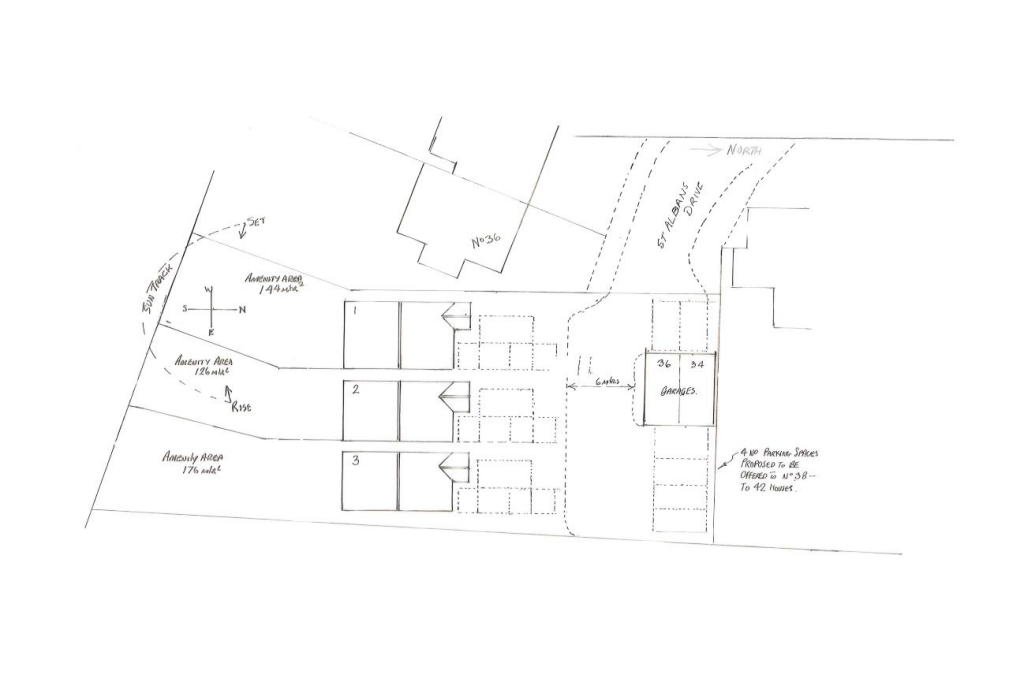
Freehold 0.28 acre development plot with vehicular access from St Aldams Drive
Positive 2025 pre-application for 3 detached 3-bed houses
Indicative GDV circa £1.125m based on submitted scheme
Vacant possession; previously used as compound/hardstanding
Sold at auction — buyer’s premium £1,500 + VAT payable on exchange
No full planning consent; final design and scale purchaser’s responsibility
Site remediation, drainage and utilities connection likely necessary
Completion target eight weeks; check legal pack and service details
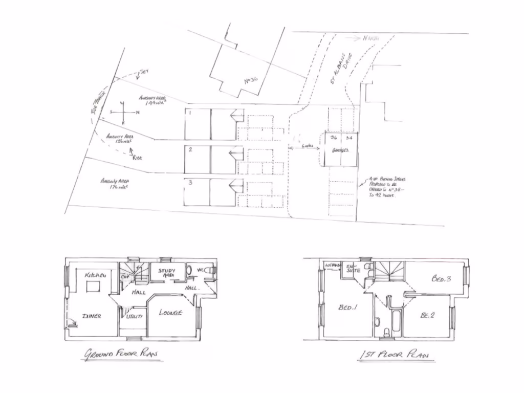
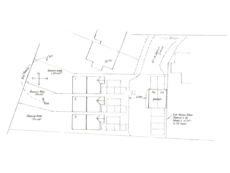
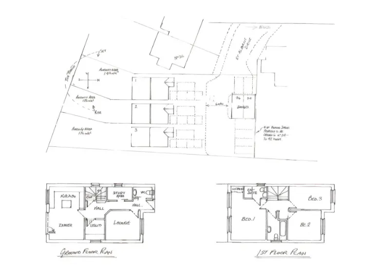
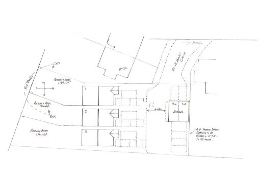
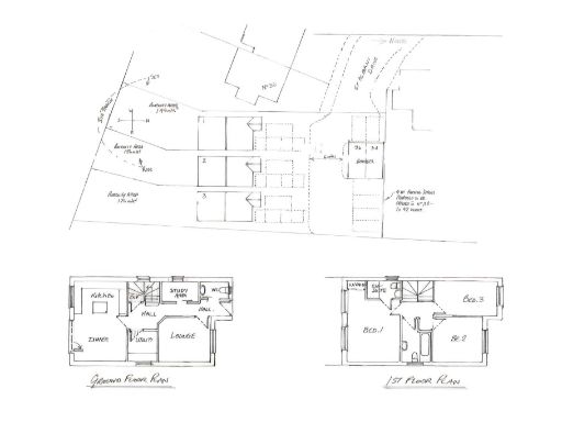
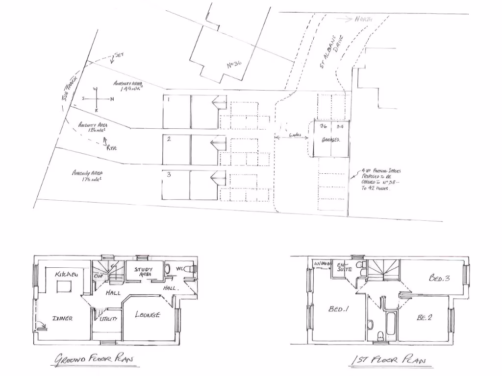
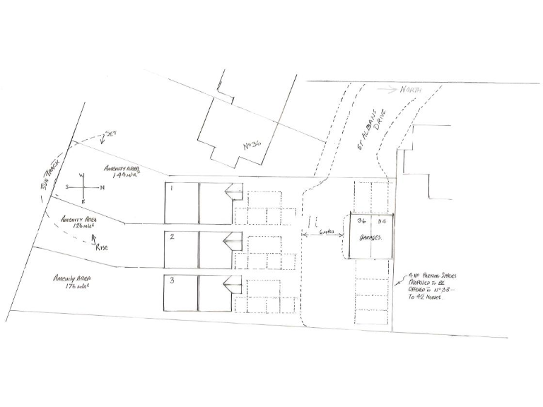
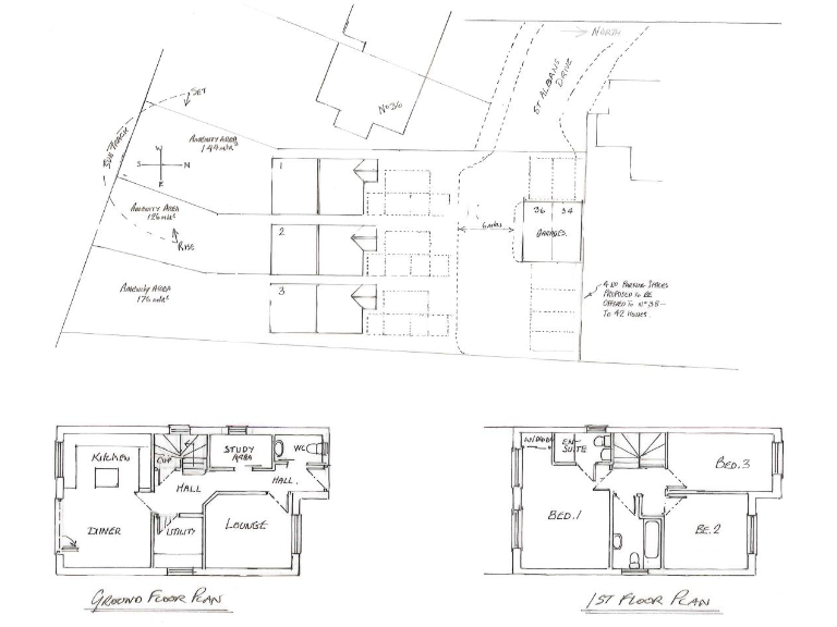
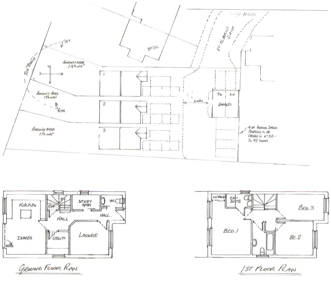
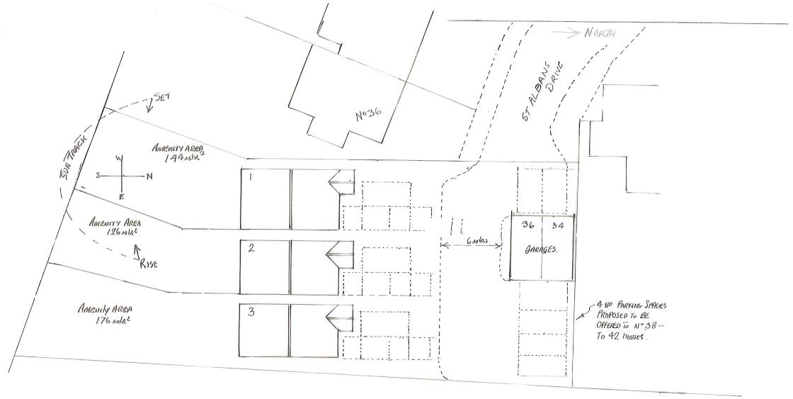
A freehold 0.28-acre development parcel in Pucklechurch, offered for sale by live online auction with vacant possession. South Gloucestershire Council has given a positive response to a 2025 pre-planning application for three detached 3‑bed houses; final design, scale and any third‑storey proposals will be for the purchaser to secure. The vendor’s scheme indicates a combined GDV of circa £1.125m.
The site has existing hardstanding and vehicular access from St Aldams Drive, with neighbouring houses on two sides and tree/vegetation to the rear. These features may reduce initial clearance but will require drainage, remediation and garden/boundary works. Utilities, exact service connections and easements are detailed in the legal pack and should be checked prior to bidding.
This lot is sold at auction. Bidders must allow for the buyer’s premium (£1,500 + VAT), a holding deposit and a swift completion timetable (completion target eight weeks). Full planning consent is not granted; the pre‑application was positively received but final consent, detailed design and any change to number of units (including potential 4‑bed designs with a third storey) remain subject to South Gloucestershire Council approval.
For developers and investor-builders the site offers a near-Bristol infill opportunity with clear redevelopment potential and an indicative GDV that may support profit after costs. Risks include planning uncertainty, site preparation and services connection costs, and standard auction purchase obligations — all of which should be validated via the free legal pack and professional surveys.
Plot for sale in Plots | Planning | Rangeworthy, GL12 — £190,000 • 8 bed • 4 bath • 3850 ft²
Plot for sale in Site | Planning Granted | Fishponds, BS16 — £675,000 • 33 bed • 22 bath
Land for sale in Highridge Road, Bishopsworth, Bristol, BS13 — £90,000 • 1 bed • 1 bath
Land for sale in Courtney Road, Bristol, BS15 — £180,000 • 1 bed • 1 bath • 1076 ft²
Plot for sale in Plot | Planning Granted | Southmead, BS10 — £153,000 • 3 bed • 3 bath • 1157 ft²
Plot for sale in Planning | 6 X 2 Bed | Horfield, BS10 — £510,000 • 12 bed • 12 bath • 5100 ft²






















































































