**Standout Features:**
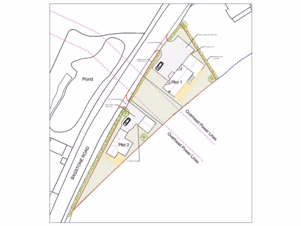
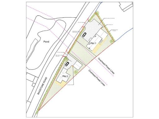
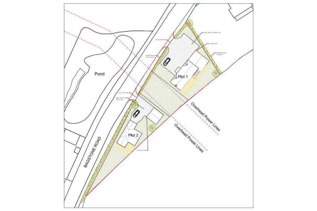
- Freehold development site on a generous 0.34 acres.
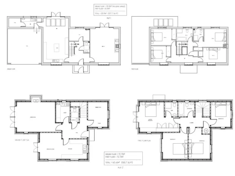
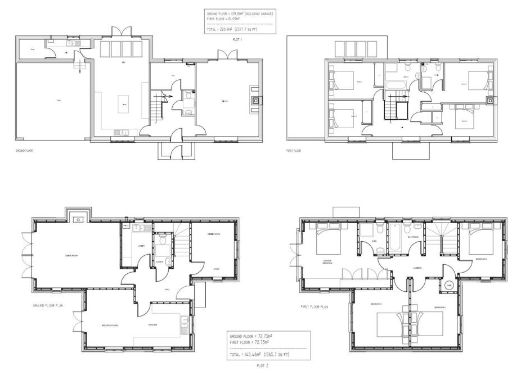
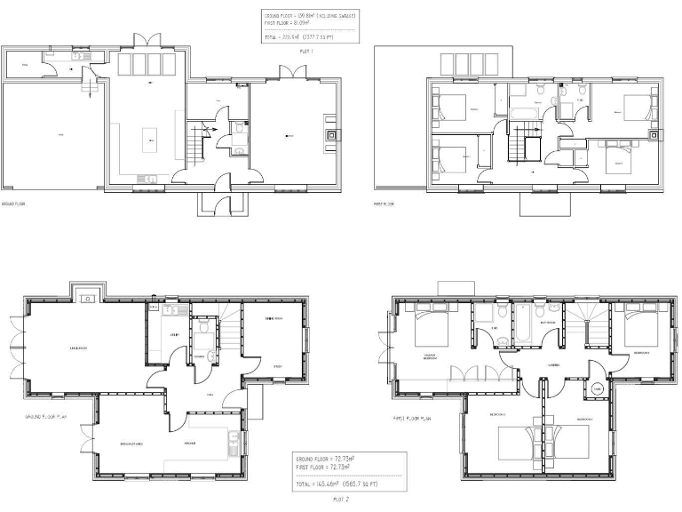
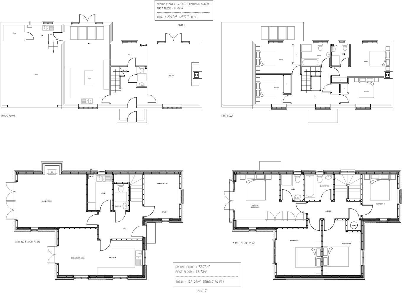
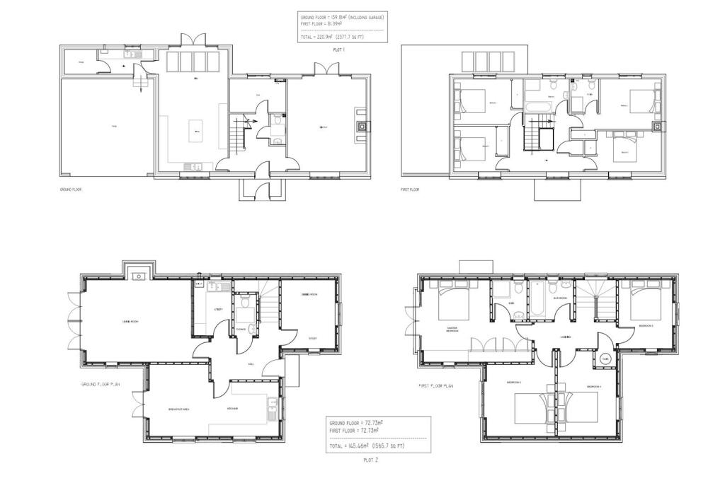
- Planning permission approved for two detached 4-bedroom family homes, each including a double garage.
- Potential GDV of approximately £1.3 million.
- Beautiful semi-rural setting with scenic countryside views.
- Close proximity to local amenities in Thornbury and Wotton-under-Edge.
**Summary:**
Introducing a compelling investment opportunity in the heart of Rangeworthy with this expansive freehold development site. Covering 0.34 acres, the plot comes complete with approved planning for the construction of two spacious 4-bedroom detached homes, each designed to include double garages, private gardens, and modern, family-friendly layouts. Set amidst the tranquil Gloucestershire countryside, this property offers both the charm of village life and convenient access to urban centers such as Bristol, Bath, and Gloucester, all within a 10-mile radius.
While this undeveloped land allows for significant flexibility in design, buyers should be aware that the site is currently classified as having contamination, which may necessitate Land Remediation Relief and could potentially impact CIL bills. Future residents will enjoy a neighborhood with an average crime rate, fast broadband access, and essential amenities, suitable for families or investors looking to create a lucrative development. With a guide price starting at £190,000, this exceptional opportunity is set to be sold at the live online auction on June 18, 2025—don't miss your chance to secure a piece of promising land in this thriving area!
Land for sale in Middle Road, Kingswood, Bristol, BS15 — £325,000 • 1 bed • 1 bath
Plot for sale in Development Site | Westerleigh, BS37 — £192,000 • 4 bed • 4 bath • 2392 ft²
Plot for sale in Development Site | BS5 — £400,000 • 6 bed • 4 bath • 1000 ft²
Plot for sale in Plot | Planning Granted | Southmead, BS10 — £153,000 • 3 bed • 3 bath • 1157 ft²
Land for sale in Courtney Road, Bristol, BS15 — £180,000 • 1 bed • 1 bath • 1076 ft²
Land for sale in Woodland & River | Frampton Cottrell, BS36 — £10,000 • 1 bed • 1 bath • 28314 ft²


















































