Four approved plots for substantial family homes on Lanark’s edge.
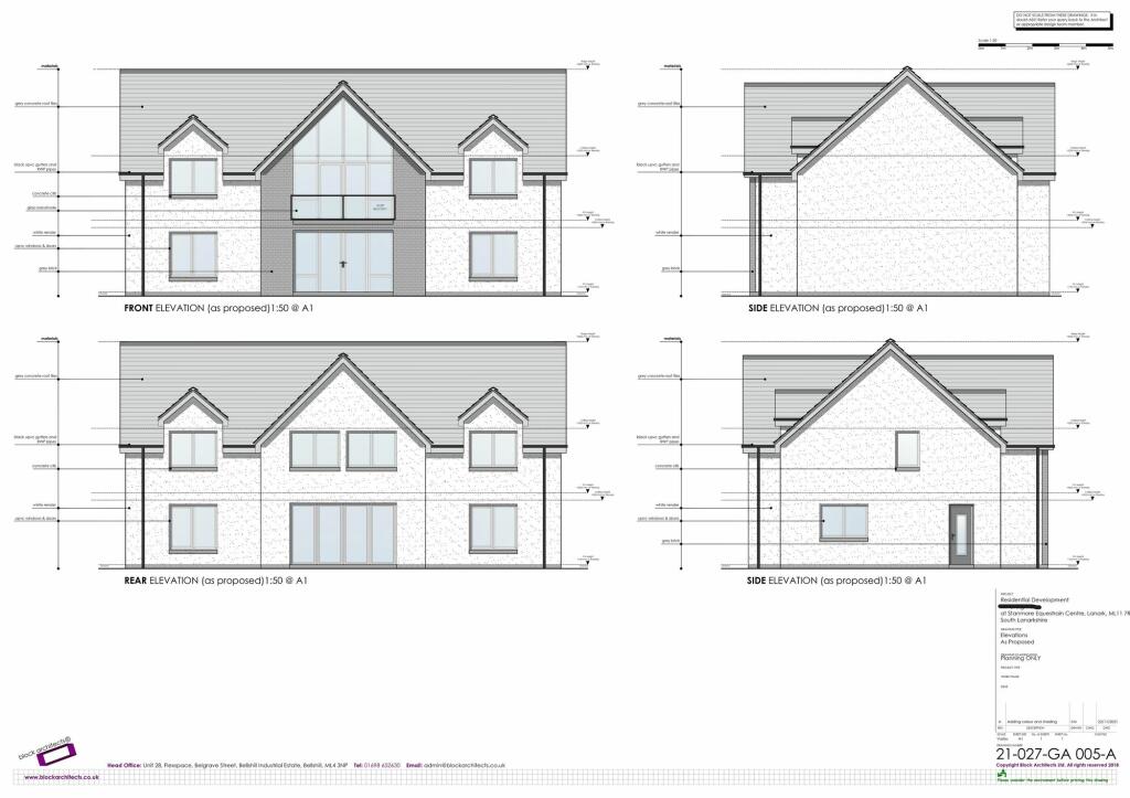
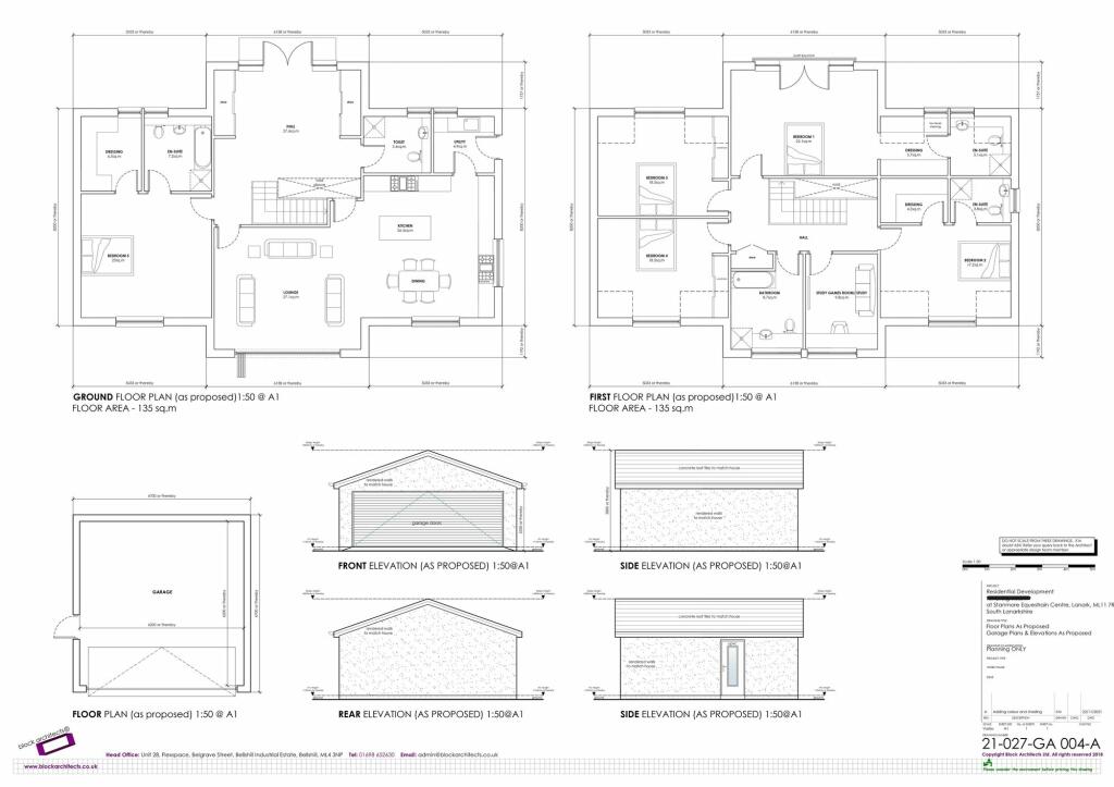
Detailed planning permission granted for four detached five‑bedroom villas (P/21/0915)
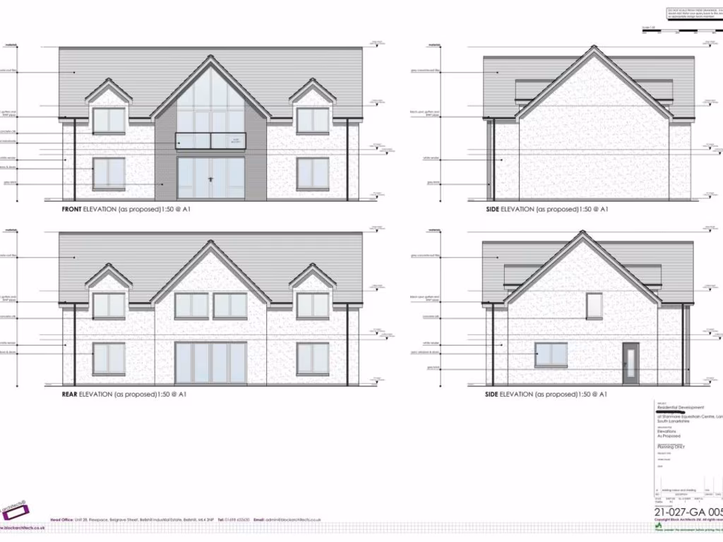
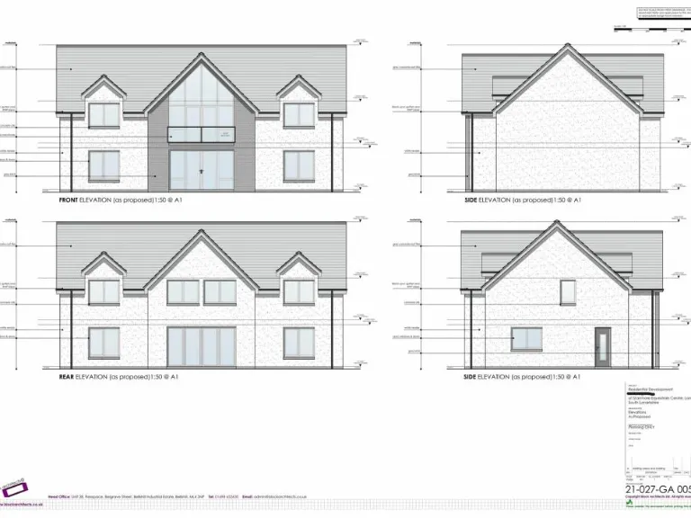
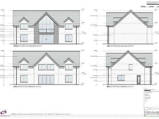
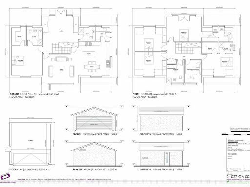
These four adjoining plots on Stanmore Road, Lanark are offered with detailed planning permission (P/21/0915) for four detached five‑bedroom villas, each about 270 m². The consented homes include five bathrooms, a study, open‑plan living/dining/kitchen, utility room, large garden and separate garage — a clear package for a small development or private builder aiming for family homes on the edge of town.
The setting combines modern suburban design with rural traits: large windows and double gables are shown on the elevations, and each plot includes space for substantial gardens and private driveways. Practical advantages for future occupants include excellent mobile signal, fast broadband and no identified flood risk, making the site suitable for contemporary family living.
There are material considerations to factor into any purchase and build programme. The wider area records high deprivation, which may affect local market values and demand. Tenure is not specified, so legal checks are required. Planning and engineers’ reports are available from the planning portal (P/21/0915) and should be reviewed for groundworks, services connections and build conditions.
For an investor or developer this lot provides permitted development for four large family homes close to Lanark’s amenities — leisure, sports facilities, woods and local schools — allowing a relatively quick start on a suburban‑edge new build scheme. For a private buyer, the plots also present opportunity to commission a single substantial family villa using the approved designs, subject to confirming tenure and service arrangements.
Plot for sale in Stanmore Road, Lanark, ML11 — £99,000 • 1 bed • 1 bath
Plot for sale in Stanmore Road, Lanark, ML11 — £99,000 • 1 bed • 1 bath • 2906 ft²
Plot for sale in Stanmore Road, Lanark, ML11 — £99,000 • 1 bed • 1 bath • 2905 ft²
Plot for sale in St Patricks Road, Lanark, ML11 — £150,000 • 4 bed • 4 bath
Land for sale in Sandilands Road, Sandilands, ML11 — £85,000 • 1 bed • 1 bath
Land for sale in Sandilands Road, Sandilands, ML11 — £85,000 • 1 bed • 1 bath


















