Four approved building plots for spacious modern family homes close to town.
Detailed planning permission for four detached five-bedroom homes
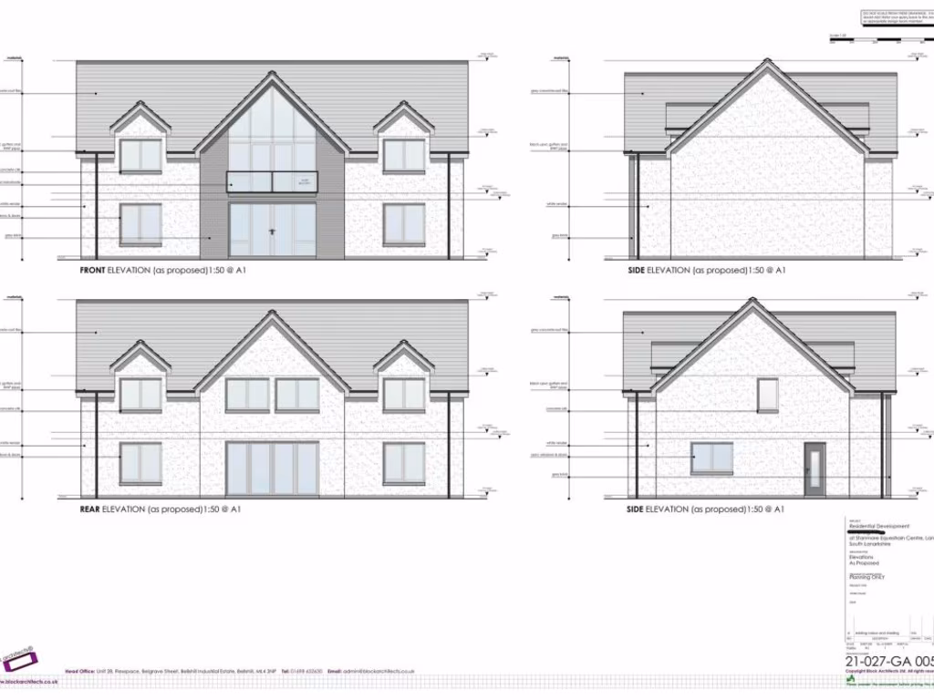
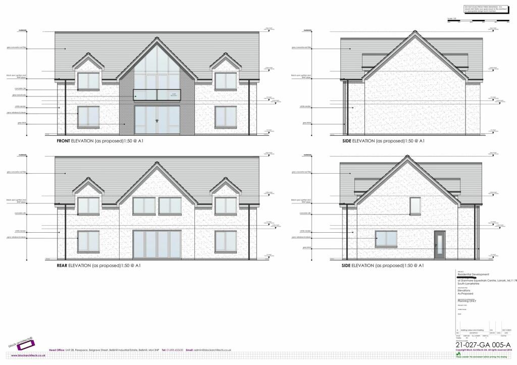
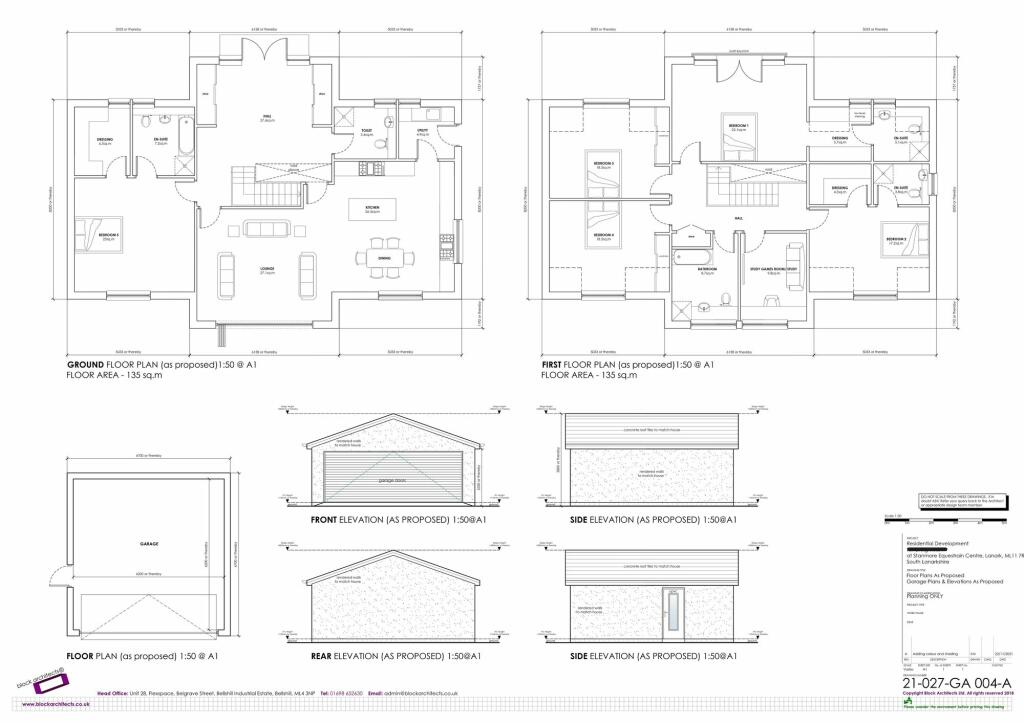
Situated on the edge of historic Lanark, this development plot comes with detailed planning permission for four substantial detached family homes, each c.270 m² with five bedrooms, five bathrooms, study, open-plan living and separate garage. The proposals show generous private gardens and modern two-storey designs, making this a rare opportunity to deliver large new-build family homes close to local amenities and countryside.
The planning consent (South Lanarkshire ref. P/21/0915) removes much of the upfront planning risk; full drawings and engineering reports are available for review. The site benefits from excellent mobile reception and fast broadband, supporting modern family and home-working needs. Its location provides easy access to town facilities, leisure and equestrian amenities while sitting at the suburban edge with a rural feel.
Important practical points: the plots are undeveloped land sold with detailed permission, so purchasers should budget for construction, services connections and build costs. The local area records a very deprived classification and the tenure is unknown, which may affect funding, grant availability or sales values — buyers should satisfy themselves on finance and local market conditions. All technical documentation should be obtained and reviewed before committing.
For a builder, developer or family buyer seeking to deliver high-spec, spacious homes, this plot offers clear permissions and strong digital connectivity. The project suits those prepared to manage a new-build scheme and to engage with the necessary construction and infrastructure works.
Plot for sale in Stanmore Road, Lanark, ML11 — £99,000 • 1 bed • 1 bath
Plot for sale in Stanmore Road, Lanark, ML11 — £99,000 • 1 bed • 1 bath
Plot for sale in Stanmore Road, Lanark, ML11 — £99,000 • 1 bed • 1 bath
Land for sale in Sandilands Road, Sandilands, ML11 — £85,000 • 1 bed • 1 bath
Plot for sale in Craigenhill Road, Kilncadzow, ML8 — £110,000 • 1 bed • 1 bath • 7646 ft²
Land for sale in Sandilands Road, Sandilands, ML11 — £85,000 • 1 bed • 1 bath


















