Four approved family villa plots near Lanark town centre.
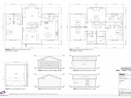
Planning permission granted for four detached villas (P/21/0915)
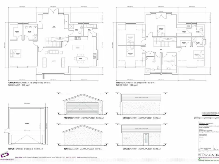
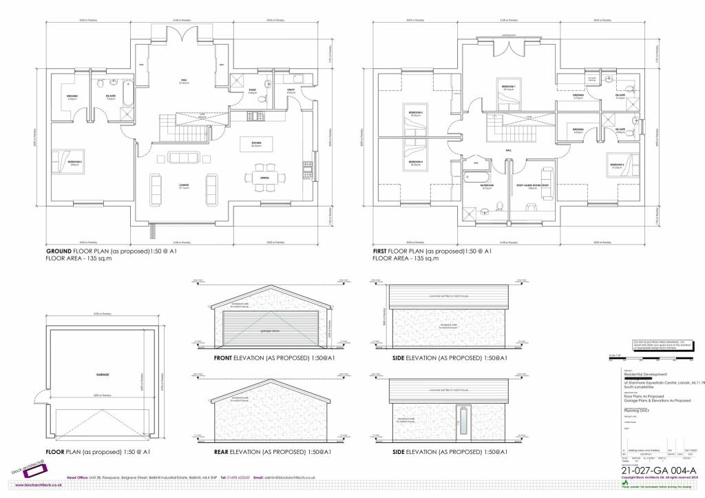
Each house designed at 270 m²: five beds, five baths, study
Separate garages and large private gardens for each plot
Excellent mobile signal and fast broadband available
Edge-of-town location with schools, sports and equestrian nearby
Tenure not specified — buyer should verify before exchange
Area recorded as very deprived — consider market and resale impacts
Sale is plot-only; build costs and timelines additional
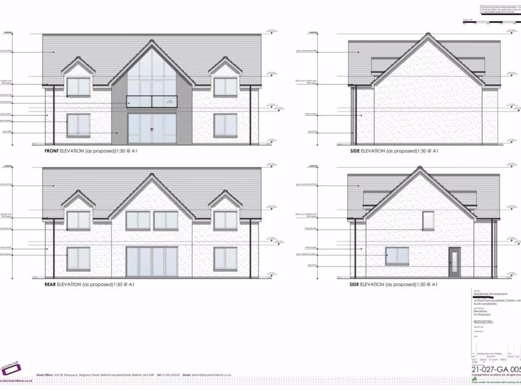
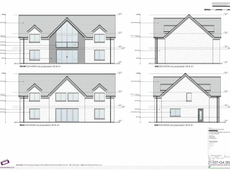
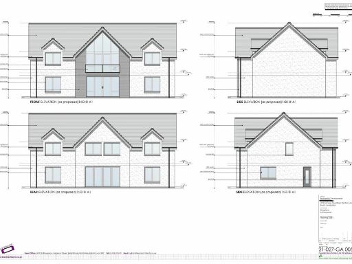
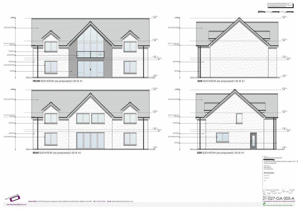
A rare opportunity to build four substantial family homes on the edge of historic Lanark. Detailed planning permission (South Lanarkshire ref. P/21/0915) has been granted for four detached villas of 270 m² each, designed with five bedrooms, five bathrooms, a separate study, open-plan living/dining/kitchen, utility and separate garage. The site benefits from generous garden areas and good digital connectivity (excellent mobile, fast broadband).
The location offers semi-rural calm with quick access to town amenities — sports centre, schools, equestrian facilities and woodland — making the plots suitable for buyers seeking space and family-focused living. The contemporary designs promise energy-efficient, large-windowed homes that suit modern family lifestyles.
Important practical notes: the sale is for the building plot with planning permission; the tenure is not specified in the listing and should be confirmed before purchase. The immediate area is recorded as very deprived and may affect resale values or rental yields; consider local market conditions when assessing investment or build budgets. Detailed plans and engineers’ reports are available via the planning portal or on request.
Plot for sale in Stanmore Road, Lanark, ML11 — £99,000 • 1 bed • 1 bath
Plot for sale in Stanmore Road, Lanark, ML11 — £99,000 • 1 bed • 1 bath • 2905 ft²
Plot for sale in Stanmore Road, Lanark, ML11 — £99,000 • 1 bed • 1 bath • 2905 ft²
Plot for sale in Craigenhill Road, Kilncadzow, ML8 — £110,000 • 1 bed • 1 bath • 7646 ft²
Plot for sale in St Patricks Road, Lanark, ML11 — £150,000 • 4 bed • 4 bath
Land for sale in Sandilands Road, Sandilands, ML11 — £85,000 • 1 bed • 1 bath


















