Four permitted five‑bed villas on Lanark’s edge — planning ready for delivery.
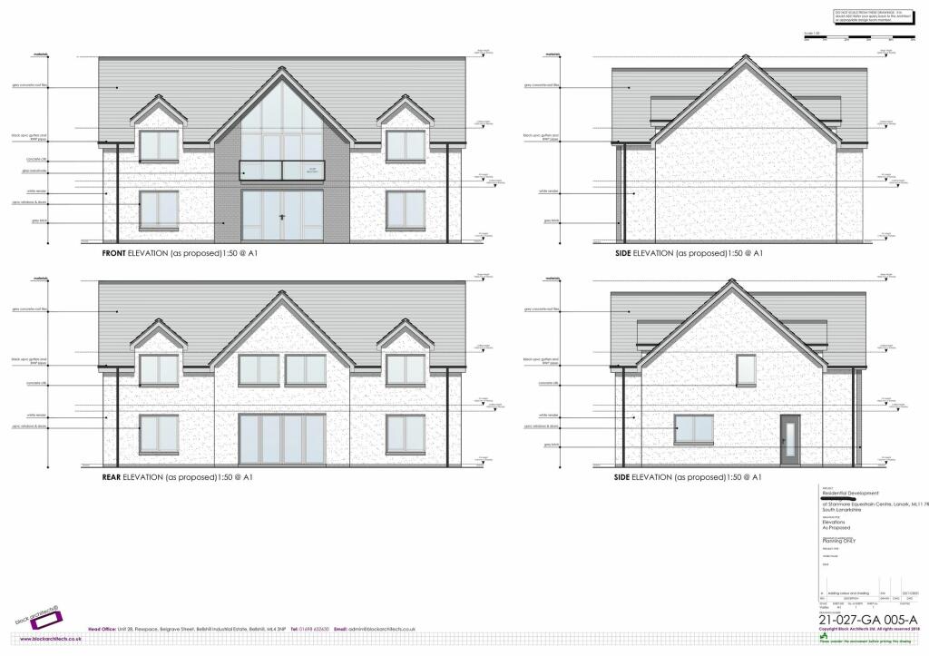
Detailed permission for four five-bed detached villas (circa 270m2 each) (P/21/0915).
Large private gardens and separate garages planned for each house.
Open-plan living, separate study and five bathrooms shown in plans.
Excellent mobile signal and fast broadband to the site.
Situated near schools, leisure, equestrian facilities and woodland.
Site in an area classified as very deprived — affects local demand.
Tenure recorded as unknown; buyers should confirm legal title.
Sold as land; buyer responsible for services and groundworks.
A rare development opportunity on the edge of historic Lanark: four building plots with detailed planning permission for sizeable five-bedroom detached villas (circa 270m2 each). The proposals show generous open-plan living, separate studies, five bathrooms, utility rooms, large gardens and separate garages — a clear match for owner-occupier families or a small-scale residential developer.
Planning permission (South Lanarkshire ref. P/21/0915) is already granted, reducing early-stage risk and speeding delivery. The site benefits from excellent mobile signal and fast broadband, and sits close to schools, leisure facilities, equestrian amenities and woodland — useful selling points for future buyers or tenants.
Important considerations: the plots sit in an area classified as very deprived and tenure is listed as unknown; purchasers should factor local economic context into valuations. This is a land sale — the vendor provides detailed planning and engineering reports, but buyers must satisfy themselves on services, ground conditions and any outstanding planning or technical requirements before proceeding.
Overall the opportunity suits a developer or investor aiming to build high-spec family homes, or a buyer wanting to deliver a bespoke detached villa. The detailed permission and layout simplify delivery, but allow for specialist due diligence on site infrastructure, service connections and local market dynamics.
Plot for sale in Stanmore Road, Lanark, ML11 — £99,000 • 1 bed • 1 bath • 2906 ft²
Plot for sale in Stanmore Road, Lanark, ML11 — £99,000 • 1 bed • 1 bath • 2905 ft²
Plot for sale in Stanmore Road, Lanark, ML11 — £99,000 • 1 bed • 1 bath • 2905 ft²
Land for sale in Sandilands Road, Sandilands, ML11 — £85,000 • 1 bed • 1 bath
Land for sale in Sandilands Road, Sandilands, ML11 — £85,000 • 1 bed • 1 bath
Plot for sale in Craigenhill Road, Kilncadzow, ML8 — £110,000 • 1 bed • 1 bath • 7646 ft²


















