**Standout Features:**
- Approved planning permission for a luxurious 4-bedroom, 4-bathroom family home
- Contemporary design with high ceilings and large rooms
- Spacious garden and large driveway with a garage
- Stunning countryside views in a tranquil setting
- Chain-free freehold property
**Concerns:**
- Broadband speeds are currently slow
- Located in an area classified as very deprived
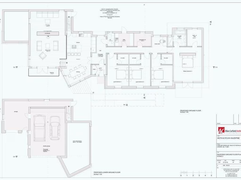
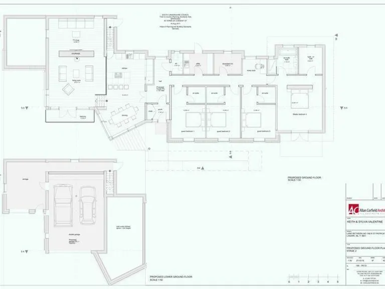
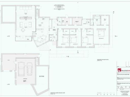
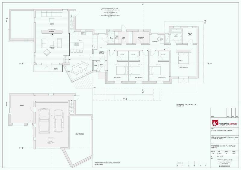
Discover an exceptional opportunity to own a plot of land in the stunning countryside of Lanark, approved for a luxurious 4-bedroom, 4-bathroom family home. With a contemporary architectural design that features expansive windows and a modern stone and wood exterior, this property promises a sophisticated living experience. The generous garage, spacious garden, and large driveway highlight the home's potential for family gatherings and outdoor relaxation.
Enjoy breathtaking views over the rolling hills while being only a stone's throw from local amenities. The property represents a rare opportunity for those seeking a modern sanctuary away from the hustle and bustle. While the area may experience slow broadband speeds and is classified as very deprived, the potential here is boundless—ideal for growing families or savvy investors looking to capitalize on the burgeoning charm of rural living. Don’t miss out on this unique chance to shape your future home with the promise of comfort and exclusivity in a picturesque setting.
Plot for sale in Stanmore Road, Lanark, ML11 — £99,000 • 1 bed • 1 bath • 2905 ft²
Plot for sale in Stanmore Road, Lanark, ML11 — £99,000 • 1 bed • 1 bath • 2905 ft²
Plot for sale in Plot Eight Hawksland, Greenrig Road, Lesmahagow, Lanark, ML11 — £500,000 • 1 bed • 1 bath • 3875 ft²
Plot for sale in Plot Three Hawksland, Greenrig Road, Lesmahagow, Lanark, ML11 — £87,500 • 1 bed • 1 bath • 3399 ft²
Plot for sale in Plot Eight Hawksland, Greenrig Road, Lesmahagow, Lanark, ML11 — £79,995 • 1 bed • 1 bath • 14192 ft²
Land for sale in Stanmore Road, Lanark, ML11 — £130,000 • 1 bed • 1 bath • 4456 ft²






























