Ready-for-build site with planning in a well-regarded Lincolnshire village.
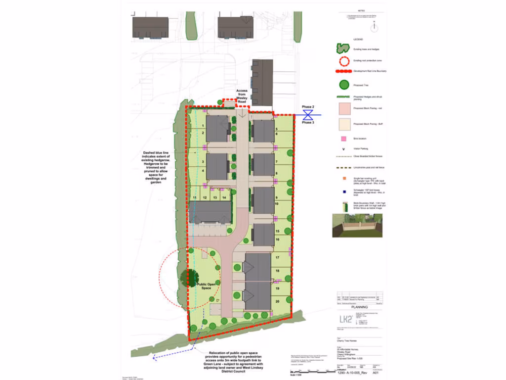
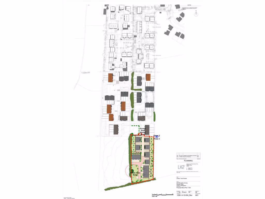
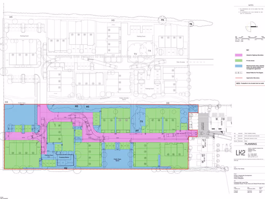
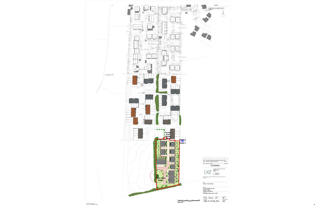
1. Level, regular-shaped land parcel extending to 1.14 acres
2. Full planning permission for 20 affordable residential units
3. Development conditional on completion of S.106 Agreement
4. Vehicular access from Wesley Road/Hawthorn Road; near Lincoln bypass
5. Adjacent to completed residential scheme; established neighbourhood context
6. Mains supplies available nearby but connection points untested
7. Vendor-built pumping station available for drainage connection
8. Village location with good schools, low crime and fast broadband
A level, regular-shaped parcel of 1.14 acres on the north‑western edge of Cherry Willingham, offered with full planning permission for 20 affordable residential units. The site sits adjacent to a recently completed residential scheme and benefits from vehicular and pedestrian access off Wesley Road and Hawthorn Road, with straightforward links to the Lincoln Eastern Bypass.
All mains services (water, drainage, electricity and gas) are available in the immediate vicinity with connection points in the roadway to the north; there is also a vendor‑built pumping station to the north‑east that a purchaser may connect into for site drainage. Note that services have not been tested and buyers should satisfy themselves with the relevant utility providers.
Planning is granted but development is subject to completion of a S.106 Agreement prior to build commencement — this is a material condition and will need resolving. The estate roads have been constructed to an adoptable standard and the subject land forms the final phase of the scheme, offering a clear route to completion once obligations are discharged.
This site will suit housebuilders or investor‑developers looking for a straightforward, affordable housing opportunity close to Lincoln. The setting provides rural views and village amenities within walking distance, while ease of access and proximity to existing development reduce infrastructure unknowns. Buyers should allow for S.106 obligations, statutory approvals and verification of utility connections in their development programme and costings.
Land for sale in Development Site, Hawthorn Road, Cherry Willingham, Lincoln, Lincolnshire, LN3 — £600,000 • 1 bed • 1 bath
Land for sale in Waterford Lane, Cherry Willingham, LN3 — £140,000 • 3 bed • 2 bath
Land for sale in Waterford Lane, Cherry Willingham, LN3 — £280,000 • 3 bed • 2 bath
Land for sale in Waterford Lane, Cherry Willingham, LN3 — £150,000 • 3 bed • 2 bath
Land for sale in Waterford Lane, Cherry Willingham, Lincoln, Lincolnshire, LN3 4AN, LN3 — £199,500 • 1 bed • 1 bath • 11761 ft²
Land for sale in Land At Barlings Lane, Langworth, Lincolnshire, LN3 5DF, LN3 — £1,350,000 • 1 bed • 1 bath


























