Two approved three‑bed homes on a large, semi‑rural plot ideal for small developers.
- Detailed planning permission for two detached three‑bed houses
- Building regulation approval currently being sought
- Large cleared/partially wooded plot with mature boundary vegetation
- Allocated off‑street parking for both houses
- Semi‑rural outlook backing onto open greenspace
- EPC listed as N/A; energy ratings to be assessed later
- Access via minor residential lane; informal track currently visible
- Confirm services, exact plot area and planning conditions before purchase
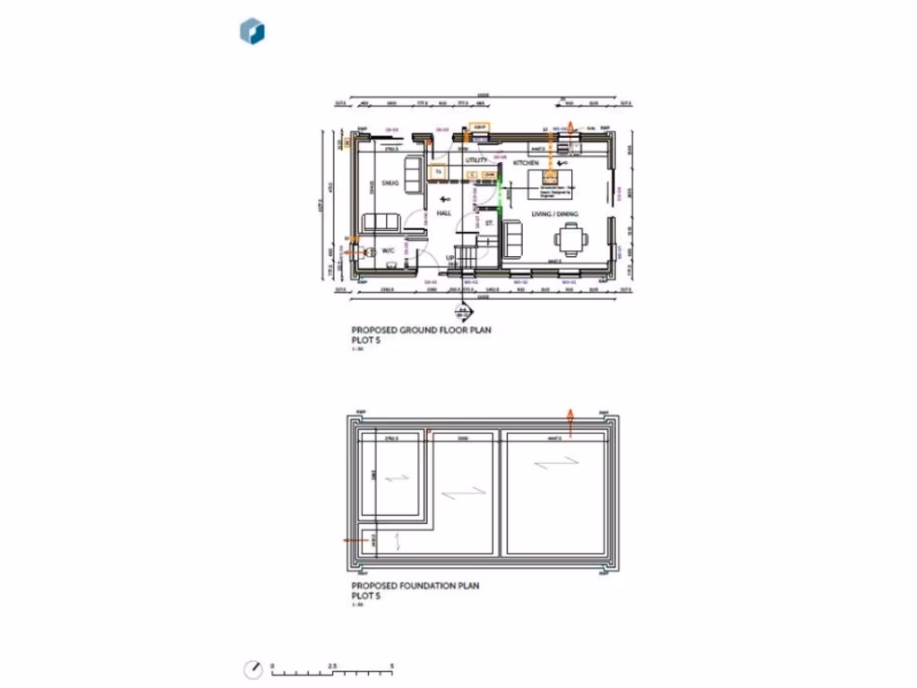
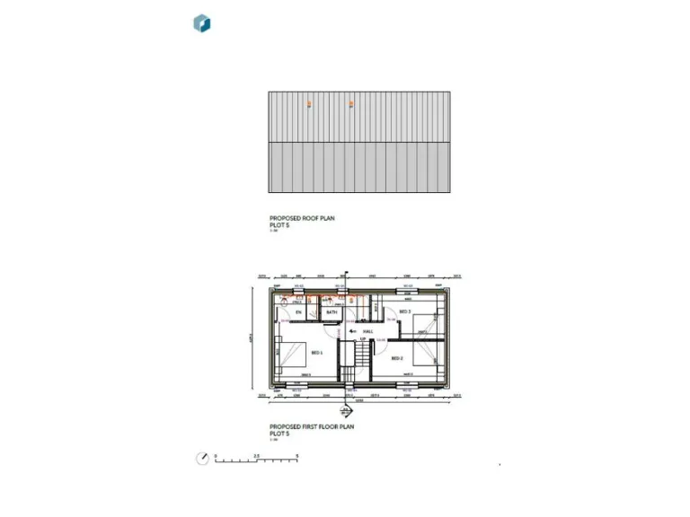
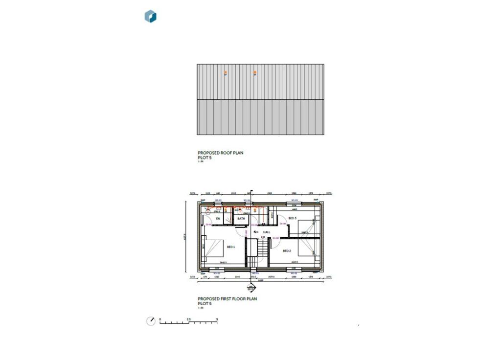
A rare residential development parcel on Waterford Lane with detailed planning permission for two detached three‑bed houses. The cleared/partially wooded plot offers a sheltered, semi‑rural aspect and established boundary vegetation that helps deliver privacy and a pleasant outlook backing onto open greenspace.
Planning permission is in place; building regulation approval is currently being sought. The scheme includes allocated off‑street parking for each house. Key transactional points for buyers: confirm services/connectivity, access specification from the lane, exact plot area, and any planning conditions or obligations before exchange.
This opportunity suits investors or small developers seeking a modest scheme in a popular village location with good local amenities, schools rated good, and easy access to the Eastern Bypass. EPC is listed as N/A and the site is offered freehold at the stated price. Buyers should allow for final statutory approvals, potential tree works or site clearance, and confirmation of utility connections.
Land for sale in Waterford Lane, Cherry Willingham, Lincoln, Lincolnshire, LN3 4AN, LN3 — £199,500 • 1 bed • 1 bath • 11761 ft²
Land for sale in Residential Development Site, Wesley Road, Cherry Willingham, Lincoln, Lincolnshire, LN3 4GT, LN3 — £400,000 • 1 bed • 1 bath
Land for sale in Development Site, Hawthorn Road, Cherry Willingham, Lincoln, Lincolnshire, LN3 — £600,000 • 1 bed • 1 bath
3 bedroom detached house for sale in Waterford Lane, Cherry Willingham, Lincoln, LN3 — £250,000 • 3 bed • 2 bath • 1191 ft²
End of terrace house for sale in High Street, Cherry Willingham, LN3 — £325,000 • 1 bed • 1 bath • 983 ft²
3 bedroom semi-detached house for sale in High Street, Cherry Willingham, LN3 — £325,000 • 3 bed • 1 bath • 983 ft²


































