Freehold plot with planning for modern family houses near woodland and local amenities.
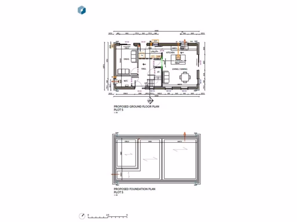
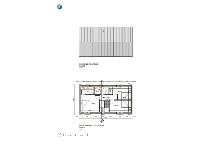
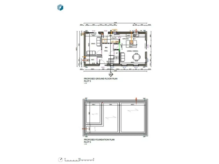
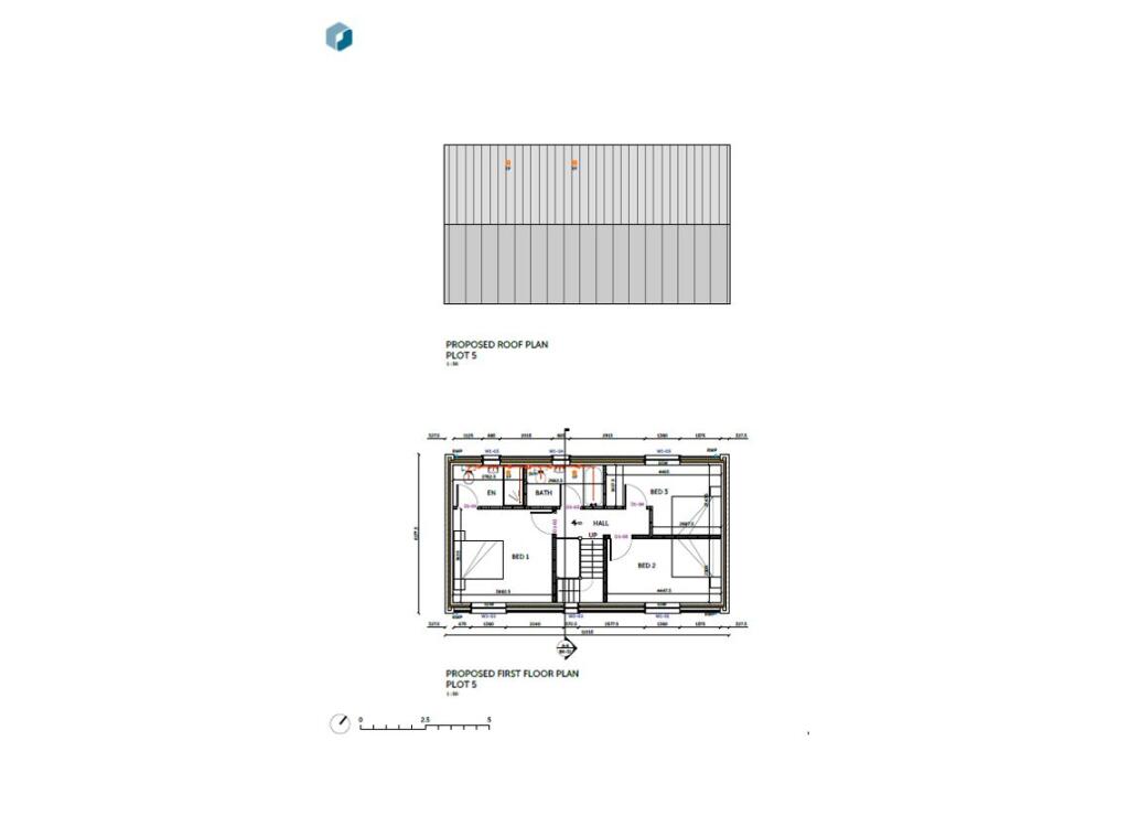
Detailed planning permission for two detached three‑bed homes
A rare residential development plot in popular Cherry Willingham with detailed planning for two detached three‑bed houses. The site is freehold and benefits from allocated off‑street parking, a large semi‑wooded plot and pleasant green outlooks to nearby woodland, making it well suited to buyers seeking village living with good local amenities.
Planning permission is in place for two modern two‑storey homes; building regulation approval is currently being sought. The parcel will suit a small developer or investor looking to complete a staged build and retain or sell family homes in an affluent, low‑crime area with fast broadband and good primary and secondary schools nearby.
Buyers should note the planning stage is detailed but building regulation approval is not yet granted. The site will require contractor mobilisation, likely tree/ground clearance and standard connection of services. Access is via a lane and there are no existing buildings or EPCs; purchasers must allow for on‑site works, statutory fees and any landscaping or tree‑work costs.
Overall this is a straightforward, village‑edge development opportunity with planning in place, strong local demand indicators and scope to add value through completion and finish specification.
Land for sale in Waterford Lane, Cherry Willingham, Lincoln, Lincolnshire, LN3 4AN, LN3 — £199,500 • 1 bed • 1 bath • 11761 ft²
Land for sale in Development Site, Hawthorn Road, Cherry Willingham, Lincoln, Lincolnshire, LN3 — £600,000 • 1 bed • 1 bath
Land for sale in Residential Development Site, Wesley Road, Cherry Willingham, Lincoln, Lincolnshire, LN3 4GT, LN3 — £400,000 • 1 bed • 1 bath
End of terrace house for sale in High Street, Cherry Willingham, LN3 — £325,000 • 1 bed • 1 bath • 983 ft²
3 bedroom semi-detached house for sale in High Street, Cherry Willingham, LN3 — £325,000 • 3 bed • 1 bath • 983 ft²
3 bedroom detached house for sale in Waterford Lane, Cherry Willingham, Lincoln, LN3 — £250,000 • 3 bed • 2 bath • 1191 ft²


































