Consented four‑home residential site in a popular village setting with parking.
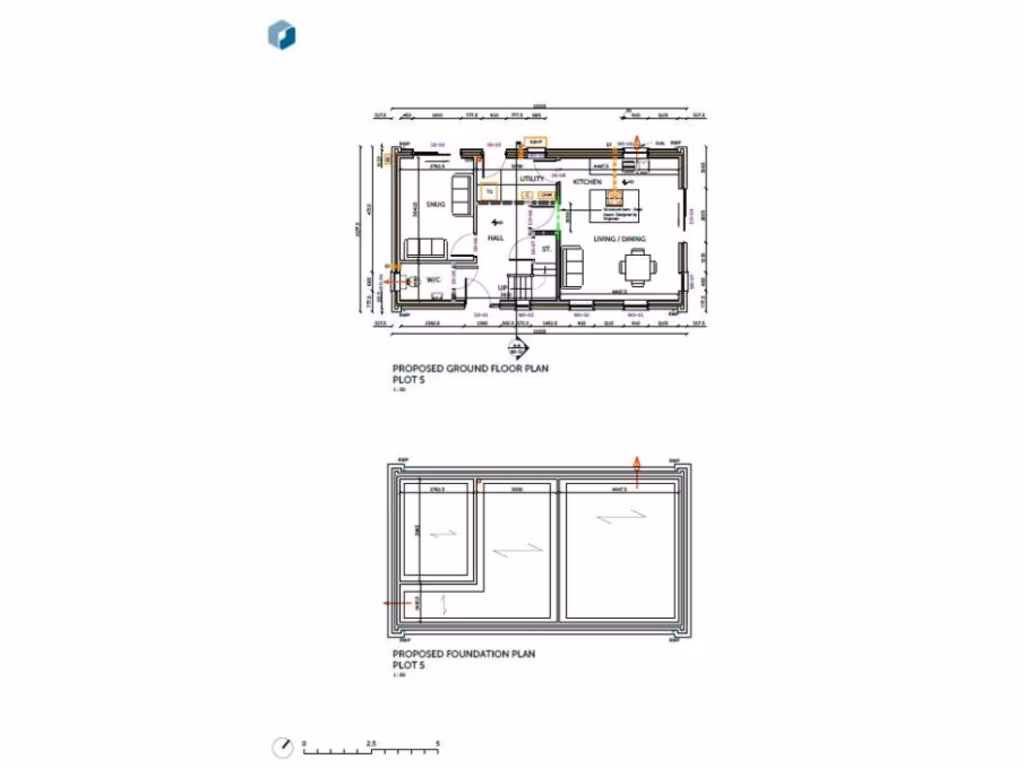
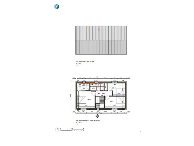
Detailed planning permission for four detached three-bedroom houses
A ready-to-develop parcel on Waterford Lane with detailed planning permission for four detached three-bedroom houses offers a clear route to delivery in a desirable Cherry Willingham location. The site is level, well-screened by mature boundary trees and hedgerow, and benefits from semi-rural outlooks and an allocated parking provision for each plot.
This is primarily a residential investment proposition: planning consent materially reduces entitlement risk and supports a staged build for resale or rental of compact detached homes. Local amenities, good primary and secondary schools, fast broadband and low crime levels add rental and resale appeal in a very affluent local catchment.
Important practical points are straightforward: building regulation approval is still being sought, tenure is not specified, and individual garden sizes are modest—plots read as infill rather than large estate gardens. Services availability and access details will affect build costs and programme, so buyers should confirm utilities and adoptable road arrangements before exchange.
Overall, the site presents a deliverable, mid-sized development opportunity in a sought-after village setting. It will suit a developer or investor comfortable completing the remaining regulatory checks and managing construction to maximise value from four three-bed detached homes.
Land for sale in Waterford Lane, Cherry Willingham, Lincoln, Lincolnshire, LN3 4AN, LN3 — £199,500 • 1 bed • 1 bath • 11761 ft²
Land for sale in Development Site, Hawthorn Road, Cherry Willingham, Lincoln, Lincolnshire, LN3 — £600,000 • 1 bed • 1 bath
Land for sale in Residential Development Site, Wesley Road, Cherry Willingham, Lincoln, Lincolnshire, LN3 4GT, LN3 — £400,000 • 1 bed • 1 bath
Land for sale in Development Land, Scothern Road, Nettleham, Lincoln, Lincolnshire, LN2 — £525,000 • 1 bed • 1 bath • 1786 ft²
3 bedroom detached house for sale in Waterford Lane, Cherry Willingham, Lincoln, LN3 — £250,000 • 3 bed • 2 bath • 1191 ft²
Land for sale in Land At Barlings Lane, Langworth, Lincolnshire, LN3 5DF, LN3 — £1,350,000 • 1 bed • 1 bath






















































