Compact period apartment with private outdoor space and strong transport links.
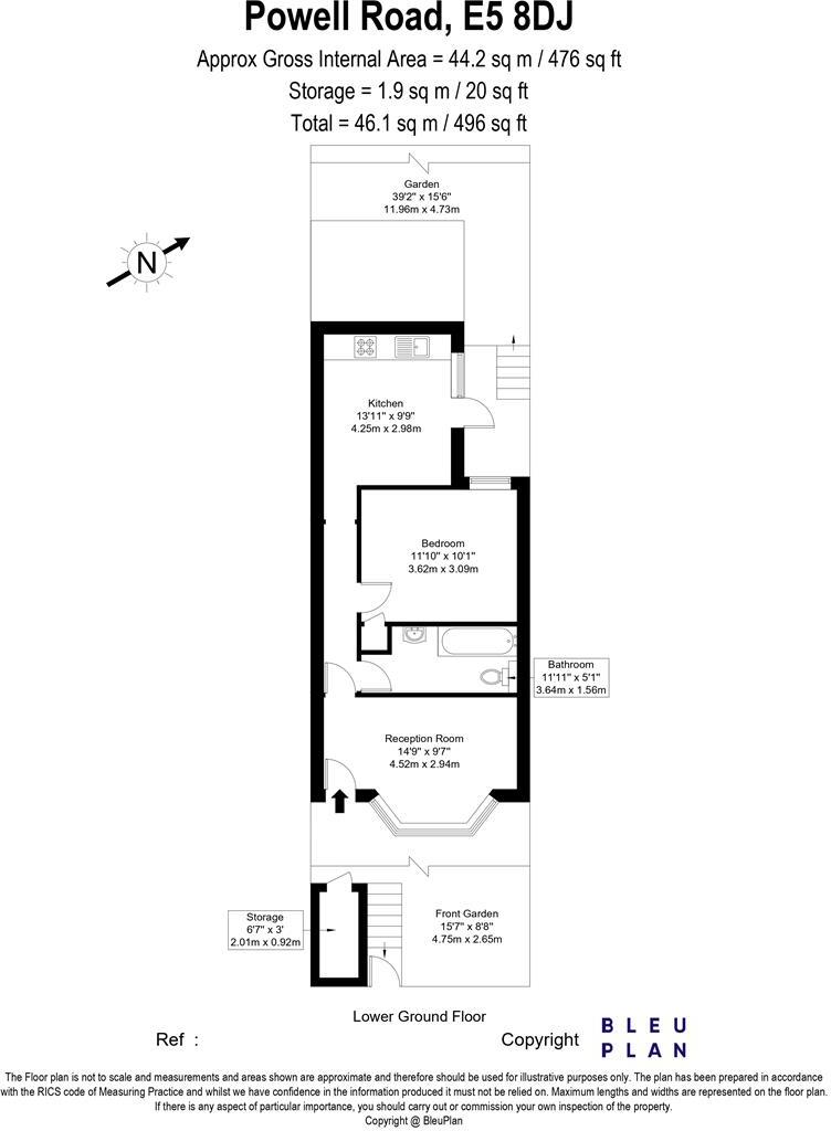
- Private rear garden with direct kitchen access
- Bay‑front reception and high ceilings feel spacious
- 476 sq ft lower‑ground/garden flat, one double bedroom
- Share of freehold; 125 years remaining on lease
- Double glazing fitted before 2002 (may need updating)
- Solid brick walls likely lack insulation
- Area records higher crime and relative deprivation
- Excellent mobile signal and fast broadband speeds
This lower‑ground one‑bedroom garden flat occupies a charming Victorian terrace in Lower Clapton, offering private outdoor space and generous ceiling heights that feel larger than the footprint suggests. The bay‑front reception room and large double bedroom both benefit from natural light, while a separate kitchen opens directly onto the paved rear garden — a rare private outdoor area for this part of Hackney.
The property is available as a share of freehold with 125 years remaining on the lease, making ownership straightforward for a first‑time buyer. Practical benefits include mains gas heating, double glazing (installed before 2002) and reliable mobile and broadband connectivity — useful for home working. The flat’s 476 sq ft layout suits a single occupant or couple seeking a compact urban home with easy access to independent cafés, shops and several Overground stations.
Buyers should note a few material points: the building’s solid brick walls are likely uninsulated, and the glazing is older, so further thermal upgrades may be needed to cut bills. The local area records higher crime and relative deprivation compared with some neighbouring parts of Hackney; readers should weigh location trade‑offs against lifestyle benefits and rental potential. Overall, this is a characterful period apartment that offers private garden access and good transport links — a pragmatic, well‑positioned choice for first‑time buyers or buy‑to‑let investors prepared to manage modest improvement works.
1 bedroom flat for sale in Newick Road, Clapton, E5 — £500,000 • 1 bed • 1 bath • 538 ft²
2 bedroom flat for sale in Downs Road, Hackney, E5 — £475,000 • 2 bed • 2 bath • 612 ft²
1 bedroom flat for sale in Dunlace Road, Hackney, E5 — £425,000 • 1 bed • 1 bath • 484 ft²
1 bedroom apartment for sale in Mount Pleasant Lane, London, E5 — £460,000 • 1 bed • 1 bath • 678 ft²
1 bedroom ground floor flat for sale in Dunlace Road, E5 — £425,000 • 1 bed • 1 bath • 524 ft²
1 bedroom ground floor flat for sale in Sach Road, London, E5 — £425,000 • 1 bed • 1 bath • 533 ft²


























































