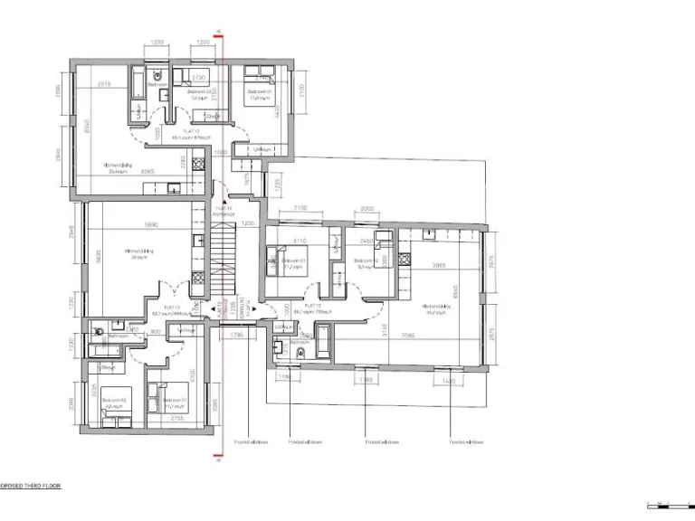
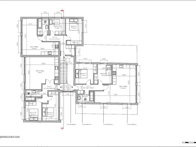
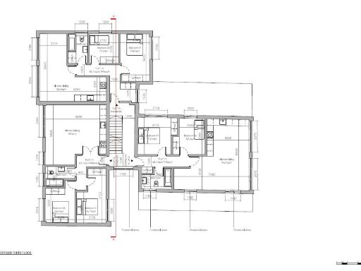
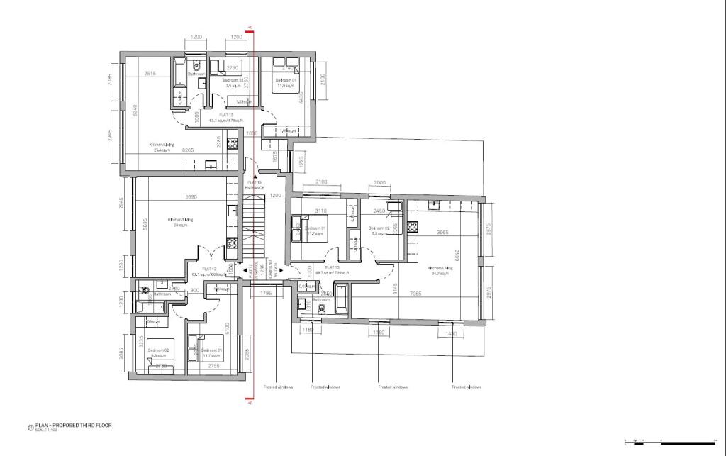
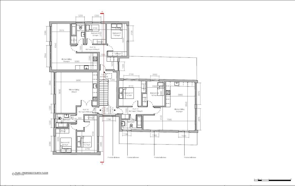
Planning agreed for six two-bedroom apartments above an existing block, close to station and park.
Freehold sale including airspace and rooftop development rights
A rare freehold and airspace opportunity in Chingford with planning already agreed for two additional storeys. The consent covers the creation of six two-bedroom apartments, making this plot attractive to developers and buy-to-let investors seeking a rooftop extension in a well-connected suburb.
The site sits within easy walking distance of Highams Park station and local green space, with several well-rated primary and secondary schools nearby. The plot is very large and benefits from fast broadband and excellent mobile signal, with no identified flood risk.
Buyers should allow for the full build and associated costs: construction, building regulations, party wall agreements, and ongoing management or sales strategy for six new units. Council tax and some service details are unspecified and will require confirmation prior to purchase.
Land for sale in 60-74 Sewardstone Road, Chingford, London, E4 — £2,500,000 • 1 bed • 1 bath • 17424 ft²
Land for sale in 64-70 Sewardstone Road, Chingford, London, E4 7PR, E4 — £2,500,000 • 1 bed • 1 bath • 10172 ft²
Land for sale in 480 - 506 Larkshall Road, Chingford, London, E4 9HH, Investment / Development Opportunity, E4 — £5,000,000 • 1 bed • 1 bath • 29621 ft²
Land for sale in Essex Road South, London, E11 — £500,000 • 1 bed • 1 bath • 3701 ft²
Residential development for sale in Chingford Mount Road, London, E4 — £1,400,000 • 1 bed • 1 bath • 12197 ft²
Residential development for sale in 48 Eagle Lane, Wanstead, London, E11 — £1,000,000 • 1 bed • 1 bath • 5885 ft²






















