Prominent corner plot with consent for mixed-use delivery in Chingford.
- Planning permission REF: 220957 for 40 flats and 422.5 sqm commercial space
- Freehold sale with vacant possession, ready for next-stage delivery
- Highly visible corner site on major arterial routes and junction
- Only seven car parking spaces for 40 flats; constrained parking provision
- 9 affordable units included, affecting sales/rental mix and income
- Suitable for alternative uses (EV charging, hotel, trade counter) subject to consent
- Not in a conservation area and no adjacent listed buildings
- Local area classified as deprived; consider demand and funding impacts
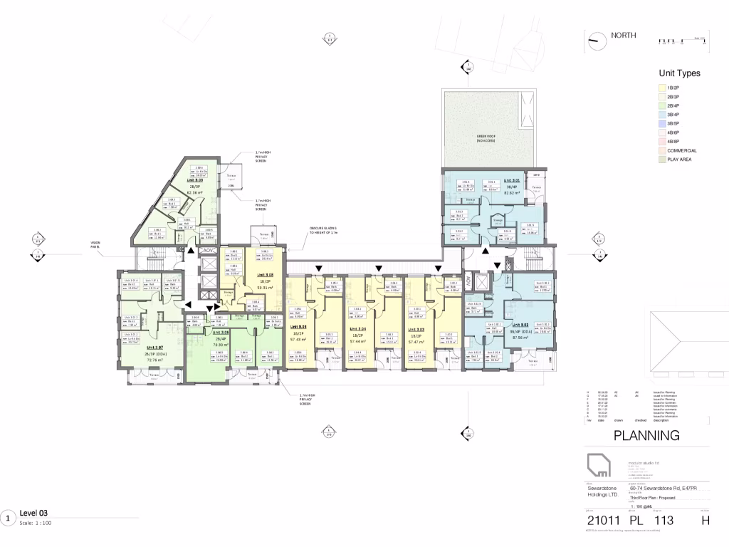
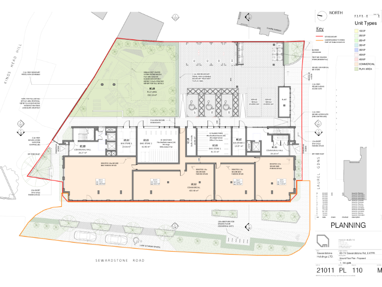
A prominent development plot on Sewardstone Road with consent for a mixed-use scheme, ready for delivery or alternative repurposing. Planning permission (REF: 220957) already granted for a part 3/5/8 storey building delivering 40 apartments (9 affordable) and 422.5 sqm commercial space, offering a clear route to construction and early value realisation.
The site occupies a highly visible corner at a key junction with excellent road links and strong public transport connections into central London. Its position adjacent to Epping Forest and nearby local amenities supports residential demand and enhances rental or sales appeal. The permission includes communal gardens, cycle/refuse storage and seven off-street parking spaces (one disabled).
Known constraints are factual and material: the scheme provides only seven parking spaces for 40 units, the area scores as relatively deprived, and any change from the existing consent (including alternative uses such as EV charging, hotel or trade counter) will require fresh planning approvals. The consent includes nine affordable units, which affects sales mix and revenue assumptions.
This freehold plot is offered with vacant possession, making it suitable for a developer or investor able to proceed under the existing consent or to pursue alternative uses subject to necessary consents. The site is not in a conservation area and has no listed buildings nearby, simplifying delivery compared with constrained heritage sites.
Land for sale in 60-74 Sewardstone Road, Chingford, London, E4 — £2,850,000 • 1 bed • 1 bath • 17424 ft²
Land for sale in 480 - 506 Larkshall Road, Chingford, London, E4 9HH, Investment / Development Opportunity, E4 — £5,000,000 • 1 bed • 1 bath • 29621 ft²
Land for sale in 36 Hickman Avenue, London, 36 Hickman Avenue, London, E4 — £3,250,000 • 1 bed • 1 bath
Land for sale in Land, Howard Road, Chafford Hundred, Grays, RM16 6YJ, RM16 — £5,900,000 • 1 bed • 1 bath
Land for sale in Station Lane, Hornchurch, RM12 — £500,000 • 1 bed • 1 bath • 11761 ft²
Residential development for sale in 120 Hertford Road, Enfield, Greater London, EN3 — POA • 1 bed • 1 bath • 10890 ft²














































