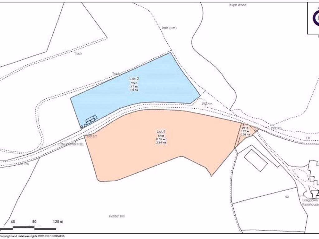
Surrounded by woodland, 3.7 acres of pasture with bridleway access — ideal for private equestrian use..
3.7 acres (1.5 ha) of road-fronted permanent pasture
Elevated, well-screened by hedges and adjacent woodland
Includes tin store; wooden stables excluded from sale
No mains services known to be connected on site
No mobile phone signal; broadband reported fast nearby
Good access to bridleways, Ridgeway and National Trust land
Freehold sale with vacant possession on completion
Suitable for equine or amenity uses; planning checks recommended
A well-situated 3.7-acre paddock on Longdown Hill, offered as a single freehold parcel with immediate scope for equine or amenity use. The land sits elevated and road-fronted, bounded by hedges and mature woodland, providing privacy, shelter and attractive riding and walking access to nearby National Trust and bridleway networks.
The parcel is currently permanent pasture, with shallow lime-rich soils over chalk — favourable for grazing and low-maintenance pasture management. A tin store is included, but the wooden stables on site belong to the occupier and are excluded from the sale. There are clear access points from Longdown Hill and good connectivity to Princes Risborough, Great Missenden, Wendover and Aylesbury.
Practical considerations include no known mains services connected and no mobile signal at the site; broadband is reported fast in the area but on-site connections should be confirmed. Viewings are unaccompanied and taken at the viewer’s risk. The price and plot size present a rare, affordable entry to Chilterns countryside holding suitable for private equestrian use, small-scale grazing or recreational amenity.
This lot will suit buyers seeking private, scenic pasture with riding access and woodland shelter, or investors looking for low-intensity rural land in a highly affluent, low-crime area. Planning or change-of-use ambitions should be verified with the local authority before purchase.
Equestrian facility for sale in Cadsden Road, Princes Risborough, Buckinghamshire, HP27 — £100,000 • 1 bed • 1 bath
Land for sale in Buckland Common, HP23 — £150,000 • 1 bed • 1 bath
Land for sale in Aston Abbotts, Aylesbury, Buckinghamshire, HP22 — £840,000 • 1 bed • 1 bath
Land for sale in Pophley Barn, Stokenchurch, HP14 3EW, HP14 — £160,000 • 1 bed • 1 bath • 581 ft²
Land for sale in Dinton, Aylesbury, Buckinghamshire, HP17 — £330,000 • 1 bed • 1 bath
Equestrian facility for sale in Tring, Buckinghamshire, HP23 — £1,500,000 • 1 bed • 1 bath • 4700 ft²






















