6.73 acres of Chilterns pasture—equine, grazing or long‑term land investment..
6.73 acres of elevated, hedged permanent pasture ideal for equine use
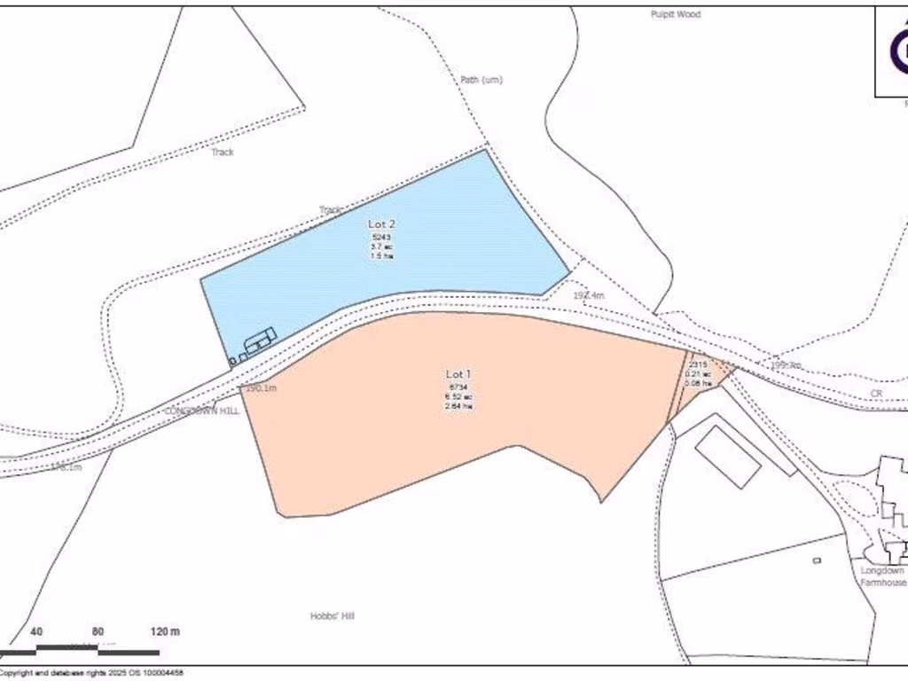
Road frontage with gated access onto Longdown Hill
Adjoins Pulpit Wood; direct access to bridleways and scenic riding routes
Shallow, lime‑rich chalk soils suited to grazing and mowing
Sold freehold with vacant possession; sporting/timber/mineral rights included
No services known to be connected; additional cost to provide utilities
Public footpath crosses eastern boundary; right of way to Longdown Farmhouse
Very slow broadband and average mobile signal; rural hamlet setting
Set on an elevated spot in the Chilterns National Landscape, Lot 1 at Longdown Hill delivers 6.73 acres of well‑screened permanent pasture ideal for equine, agricultural or amenity uses. The parcel benefits from hedged and fenced boundaries, direct road frontage to Longdown Hill and immediate adjacency to Pulpit Wood and local bridleways, offering excellent riding and recreational access.
The land is largely undeveloped pasture with shallow, lime‑rich soils over chalk or limestone — a positive for grazing and hay production. It is sold freehold with vacant possession and includes existing sporting, timber and mineral rights insofar as owned. The elevated position provides attractive countryside views and strong natural shelter from surrounding woodland.
Practical considerations are straightforward and should be noted: no services are known to be connected, a public footpath crosses the eastern boundary, and a right of way across the property serves Longdown Farmhouse. Broadband is very slow locally and mobile signal is only average. Any change of use or built development would require planning consent; the land is being offered as a whole by private treaty.
This lot suits buyers seeking a substantial, secluded block for grazing, equestrian activities, private amenity land or a long‑term land investment in a very affluent, low‑crime area. Its landscape setting and connectivity to regional centres make it especially attractive to those prioritising outdoor access and rural tranquillity, while buyers wanting immediate serviced facilities or development-ready plots should factor in additional cost and consent timelines.
Equestrian facility for sale in Cadsden Road, Princes Risborough, Buckinghamshire, HP27 — £75,000 • 1 bed • 1 bath
Land for sale in Buckland Common, HP23 — £150,000 • 1 bed • 1 bath
Land for sale in Aston Abbotts, Aylesbury, Buckinghamshire, HP22 — £840,000 • 1 bed • 1 bath
Land for sale in Pophley Barn, Stokenchurch, HP14 3EW, HP14 — £160,000 • 1 bed • 1 bath • 581 ft²
Equestrian facility for sale in Tring, Buckinghamshire, HP23 — £1,500,000 • 1 bed • 1 bath • 4700 ft²
Land for sale in Dinton, Aylesbury, Buckinghamshire, HP17 — £330,000 • 1 bed • 1 bath






















