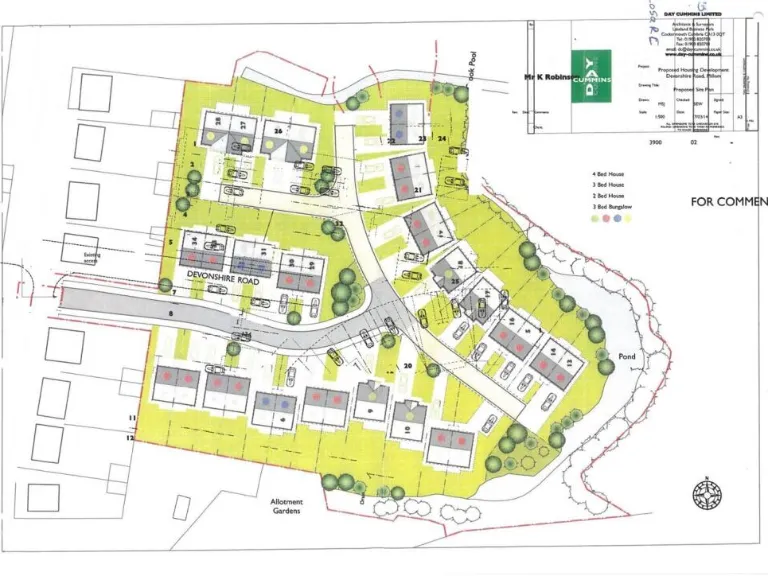
**Standout Features:**
- Prime 3-acre freehold land on Devonshire Road, Millom
- Established access with potential for residential development
- Previously lapsed planning permission (Ref: 4/76/0771/003)
- Ideal for developers or investors seeking a promising site
- Close proximity to local amenities, including schools and leisure facilities
- Recognized as a significant development opportunity
This expansive 3-acre parcel of freehold land off Devonshire Road in Millom presents an exceptional opportunity for developers and investors alike. Previously holding planning permission for housing, the land's future potential remains vibrant, pending new consent. With its ideal positioning—boasting established access and proximity to local amenities including parks, schools, and leisure facilities—this site offers a unique blend of accessibility and serenity.
Although the local area has its challenges, including above-average crime rates and slow broadband speeds, the shifting demographics and development-friendly landscape present a favorable context for long-term investment. Families and social renters will benefit from the proximity to well-rated educational institutions, making it an attractive option for a future residential development.
Don't miss out on this significant opportunity to reshape the community—properties like this with the potential for development don't stay on the market for long. Envision the possibilities today!
Land for sale in Holborn Hill, Millom, Cumbria, LA18 — £175,000 • 1 bed • 1 bath
Plot for sale in Millom Road, Millom, LA18 — £600,000 • 1 bed • 1 bath
Commercial property for sale in Residential Development, 86 Wellington Street, MILLOM, LA18 — £75,000 • 1 bed • 1 bath • 2458 ft²
Land for sale in Ulverston Road, Swarthmoor, Ulverston, LA12 — £300,000 • 1 bed • 1 bath
Land for sale in Cartmel Road, Grange-over-Sands, LA11 — £595,000 • 1 bed • 1 bath
Plot for sale in Land @Port Haverigg, Haverigg,, LA18 — £3,500,000 • 1 bed • 1 bath


