**Standout Features:**
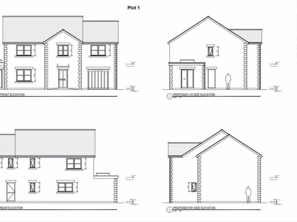
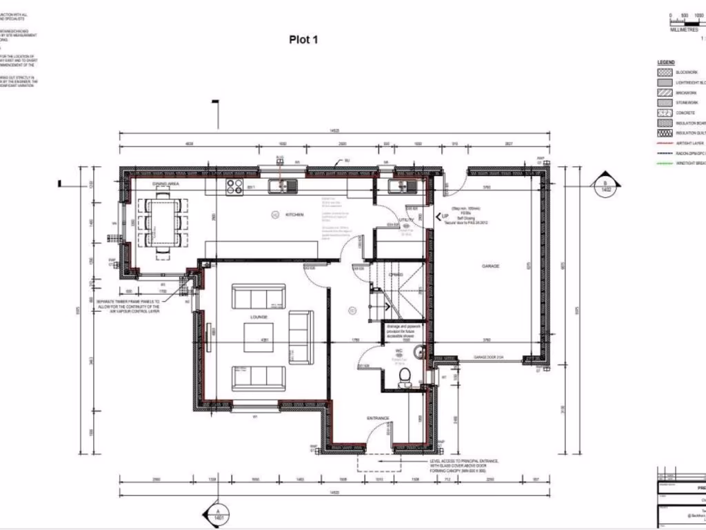
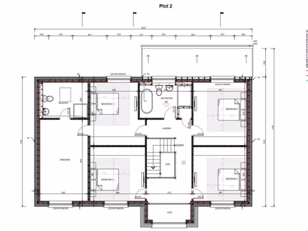
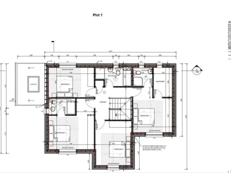
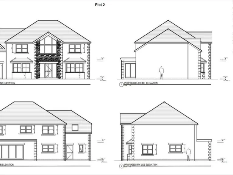
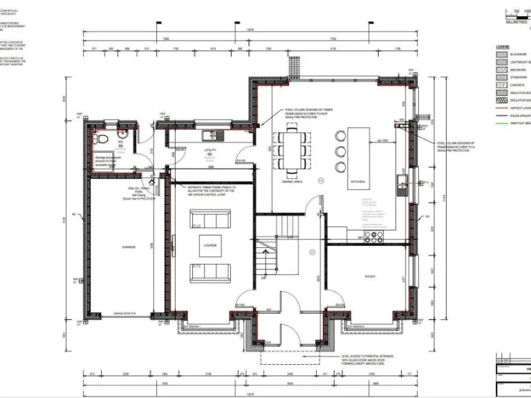
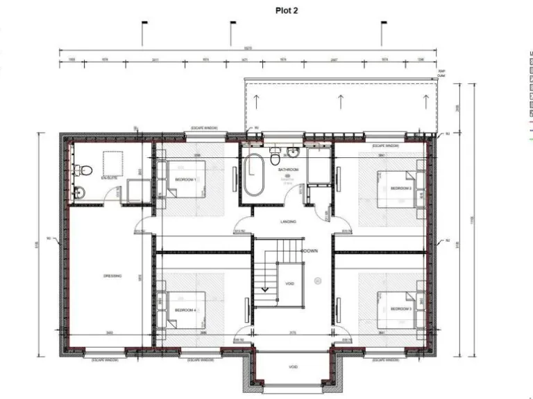
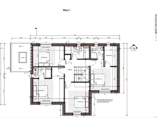
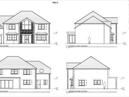
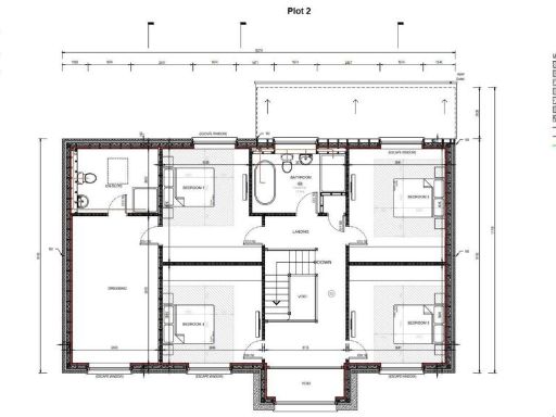
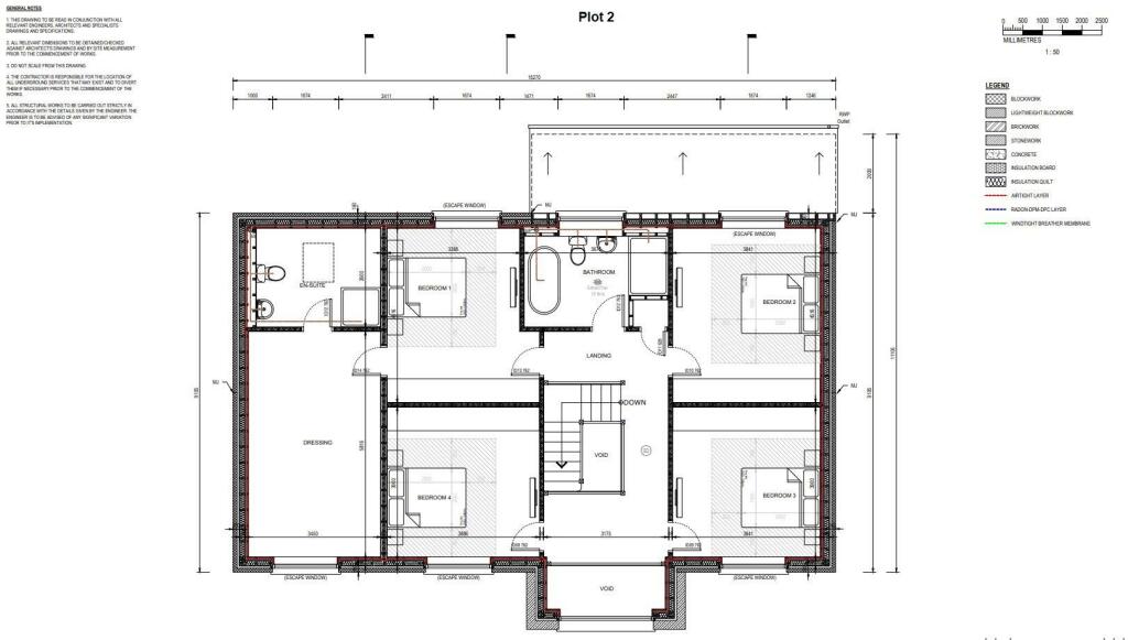
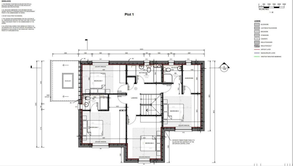
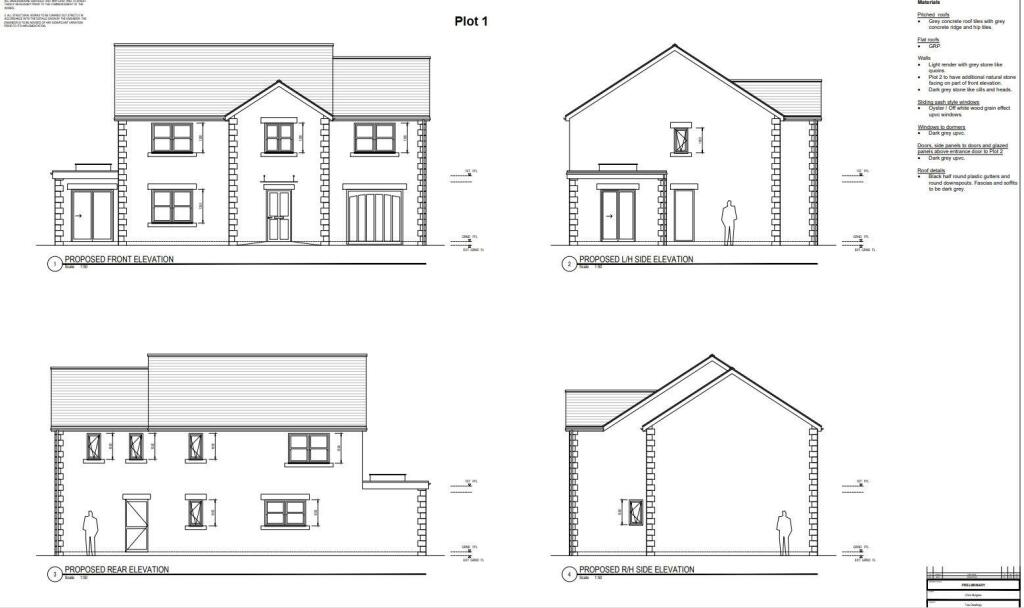
- Freehold land with planning permission (Ref: SL/2021/0571) for two detached 4-bedroom dwellings.
- Spacious plot with potential for large gardens, parking, and garages.
- Scenic views with a semi-rural setting and mature trees.
- Conveniently located near village amenities.
- Current infrastructure includes water, septic tank, and electric services.
- Area known for low crime and affluence.
**Potential Downsides:**
- Undeveloped land requiring initial investment before construction.
- Access setup via a private road may need consideration.
---
Discover a remarkable opportunity to purchase freehold land on Ulverston Road, Swarthmoor, featuring approved planning permission for two contemporary four-bedroom homes. This generously sized, privately accessed plot not only boasts striking open views and the potential for expansive gardens but also includes essential services—water, septic tank, and electricity—streamlining your development process.
Nestled in an affluent and tranquil area, this land offers an ideal balance of rural charm and urban convenience, situated conveniently close to local amenities, schools, and recreational facilities. With its serene surroundings and low crime rate, it promises a secure environment for families and investors alike. Don't miss out on this unique opportunity to create your dream project in a sought-after location—potential like this doesn't last long!
Land for sale in Ulverston Road, Swarthmoor, Ulverston, LA12 — £140,000 • 1 bed • 1 bath
Land for sale in Ulverston Road, Swarthmoor, Ulverston, LA12 — £180,000 • 1 bed • 1 bath
Plot for sale in 2 Woodland Road, Ulverston, LA12 0DX, LA12 — £400,000 • 1 bed • 1 bath • 850 ft²
Land for sale in Yarlside Road, Barrow-In-Furness, LA13 — £240,000 • 1 bed • 1 bath
Plot for sale in Daltongate, Ulverston, LA12 — £725,000 • 1 bed • 1 bath
Land for sale in Residential Development Site, Ulverston, LA12 — £1,100,000 • 1 bed • 1 bath






































































