EN6 1TL - 1 bed spacious industrial unit in Hertsmere, EN6 1TL

View on Property Piper

Light industrial facility for sale in Station Close, Potters Bar, EN6

Summary - 14, STATION CLOSE EN6 1TL

1 bed 1 bath Light Industrial

Freehold warehouse with offices close to Potters Bar station and town centre.
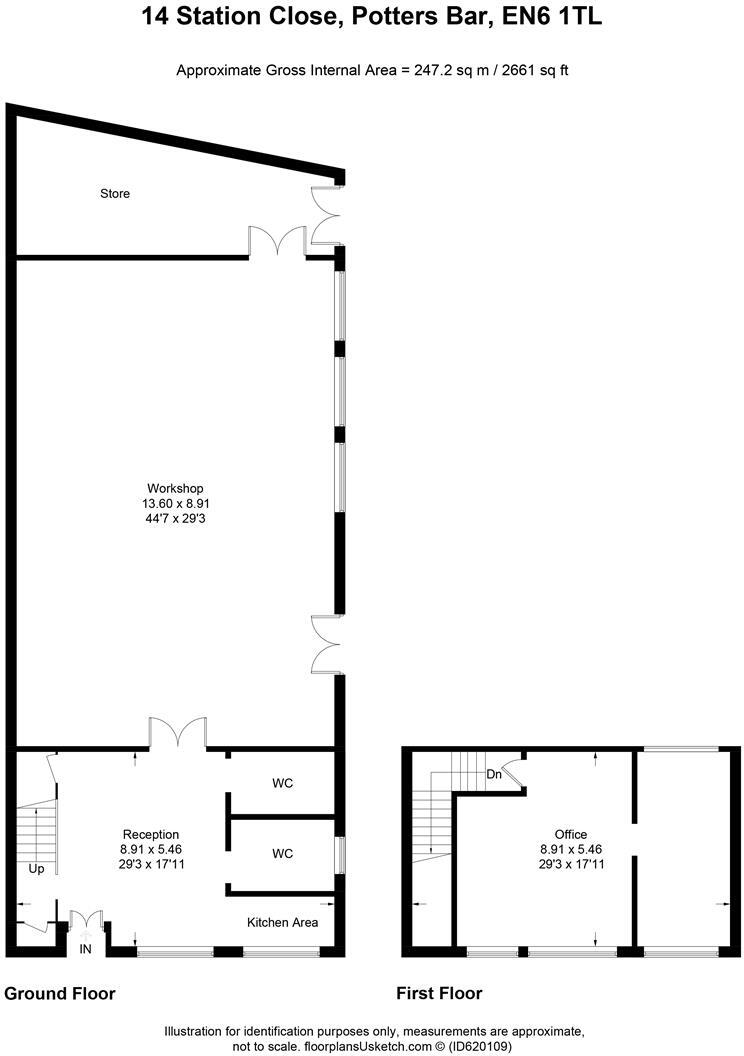
244 sqm / 2,626 sqft industrial storage and distribution unit
A substantial freehold light-industrial unit in Potters Bar, offered as a practical base for trade, storage or small-scale distribution. The main double-height warehouse provides flexible layout options, with large barn-style doors and vehicular access suitable for deliveries and workshop use. First-floor offices and a reception area give immediate administrative space without additional fit-out.

The building benefits from mains gas and electric services, on-site parking and excellent pedestrian access to Potters Bar town centre and the mainline railway. The modern internal finishes, vaulted ceilings and extractor systems make the unit ready for continued commercial use.

Buyers should note local conditions: recorded high crime levels in the area and slow broadband speeds may affect certain occupiers. The property has no flood risk and presents an opportunity for continued owner-occupation or rental to businesses requiring storage plus office accommodation. Some buyers may see potential to reconfigure or improve digital connectivity depending on operational needs.

Property Details

Brochure Descriptions

Image Descriptions

Floorplan Description

Rooms

Textual Property Features

Target Audience

AI Tags

Detected Visual Features

Nearby Schools

Nearest Bars And Restaurants

,,,,}

Nearest General Shops

,,}

Nearest Grocery shops

,,}

Nearest Supermarkets

,,}

Nearest Religious buildings

,,}

Nearest Medical buildings

,,,}

Nearest Airports

,,}

Nearest Leisure Facilities

,,,,}

Nearest Tourist attractions

,,}

Nearest Train stations

,,,,}

Nearest Bus stations and stops

,,,,}

Nearest Hotels

,,}

Tags

Local Market Stats

AirBnB Data

Similar Properties

Meta

High Res Images

Compatible Images

Low res Images

Thumbnails

Raw Images

High Res Floorplan Images

Compatible Floorplan Images

Low res Floorplan Images

FloorplanImages Thumbnail

Raw Floorplan Images