Full planning consent for sizeable new-build homes with elevated countryside vistas.
Full planning consent for three detached houses (ref 23/01824/FULL).
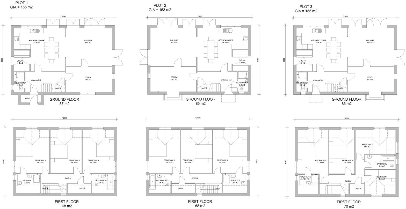
Vulscombe Farm is offered with full planning consent (Mid Devon ref 23/01824/FULL) for three detached new-build homes set in an elevated rural position about four miles west of Tiverton. The approved scheme comprises two 155m² houses and one 153m² house, each arranged over two storeys with generous living spaces, studies, and garden-facing lounges. The site totals approximately 1.1 acres and benefits from far-reaching easterly valley views.
This is a development-minded opportunity: the consent requires removal of an existing large agricultural barn and office to make way for the three dwellings. Mains services are not fully connected — electricity is understood to be on site but water, drainage and full utility connections will need arranging. Access is from an unmetalled road which continues as a public bridleway into the valley.
Buyers can proceed to build the approved three houses or explore alternatives (for example retaining or reusing the barn, subject to planning). The site’s size, elevated outlook and new-build specification will appeal to small developers, builders or owner-occupiers seeking a substantial home in open countryside. Note: council tax details and some service connections remain to be confirmed.
Plot for sale in Pennymoor, Tiverton, Devon, EX16 — £450,000 • 1 bed • 1 bath • 1668 ft²
Land for sale in Zeal Monachorum, Crediton, Devon, EX17 — £450,000 • 1 bed • 1 bath • 17000 ft²
4 bedroom detached house for sale in Cheriton Farm, Honiton, EX14 — £325,000 • 4 bed • 4 bath • 2433 ft²
Plot for sale in SUPERB BUILDING PLOT IN c. 2 ACRES, Nr. Cullompton, Devon, EX15 — £550,000 • 1 bed • 1 bath • 3768 ft²
Land for sale in Doddiscombsleigh, Exeter, EX6 — £275,000 • 5 bed • 2 bath • 9583 ft²
Land for sale in Lower Cheriton Barns, Honiton, EX14 — £535,000 • 1 bed • 1 bath • 2583 ft²










































































































































