EX17 6LH - 1 bed large rural development in Central Devon, EX17 6LH

View on Property Piper

Land for sale in Zeal Monachorum, Crediton, Devon, EX17

Summary - Zeal Monachorum, Crediton, Devon, EX17 EX17 6LH

1 bed 1 bath Land

Prime site for a small-scale new homes scheme in peaceful Mid Devon countryside.
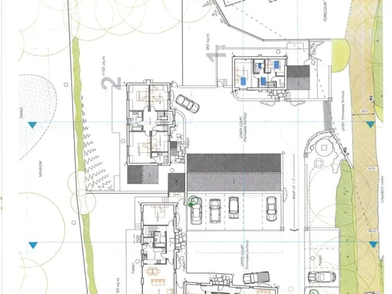
Planning permission for 3 detached houses (2 x 4-bed, 1 x 3-bed)
Lower Newton Farm Buildings present a substantial residential development opportunity in a quiet Mid Devon hamlet. The site extends to about 17,000 sq ft of built footprint on a plot approaching 2.5 acres, with planning permission (Mid Devon District Council Application No. 23/00264) to demolish the existing agricultural buildings and erect three detached two-storey houses (2 x four-bedroom, 1 x three-bedroom).

Services are available on or close to site (mains water and electricity). The location is rural and peaceful, with very low crime and straightforward road links to Zeal Monachorum, North Tawton, Bow and Crediton. The recent reform to permitted development (May 2024) also creates potential to retain and convert the existing steel-framed buildings — subject to planning — increasing flexibility for a greater number of units under those rights.

Buyers should allow for demolition and build costs, road and drainage works, and any conversion refurbishment if choosing to retain structures. Broadband speeds are very slow and the site is in a remote community, which may affect desirability for some occupiers. The sale is offered freehold with vacant possession, and the property is sold subject to existing rights of way, easements and the boundaries as shown.

Property Details

Brochure Descriptions

Image Descriptions

Textual Property Features

Target Audience

AI Tags

Detected Visual Features

Nearby Schools

Nearest Bars And Restaurants

,,,,}

Nearest General Shops

,,}

Nearest Grocery shops

,,}

Nearest Supermarkets

,,}

Nearest Religious buildings

,,}

Nearest Medical buildings

,,,}

Nearest Airports

}

Nearest Leisure Facilities

,,,,}

Nearest Tourist attractions

,,}

Nearest Train stations

,,,,}

Nearest Bus stations and stops

,,,,}

Nearest Hotels

,,}

Tags

Local Market Stats

Similar Properties

Meta

High Res Images

Compatible Images

Low res Images

Thumbnails

Raw Images