1.1-acre elevated plot with outstanding easterly valley views and ready-approved plans.
Full planning consent for three detached houses (ref 23/01824/FULL)
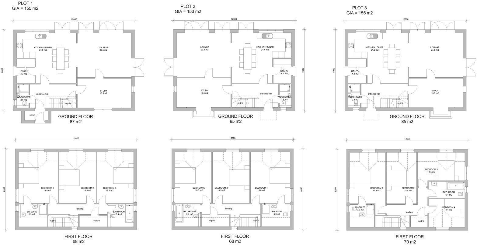
This 1.1-acre site at Vulscombe Farm has full planning consent (Mid Devon ref 23/01824/FULL) for three detached new-build homes — two c.155m² and one c.153m² — each arranged as large 3‑ and 4‑bedroom dwellings with generous living spaces, studies and garden access. The elevated rural setting delivers outstanding easterly valley views while remaining about 4 miles west of Tiverton, offering a countryside lifestyle without total isolation.
The approved scheme is ready to build out: plots are shown as stone ‘barn‑style’ houses with garages and private driveways. Electricity is present on site, but mains connections for other services will need to be provided. The planning requires removal of an existing agricultural barn and office to accommodate the three houses; alternatively a buyer could explore building a single house and retaining the barn (subject to planning).
Access is via an unmetalled road that continues as a bridleway into the valley — attractive for walkers but liable to be less convenient in poor weather. This is a substantial development opportunity for a private buyer or small developer who wants to deliver contemporary rural homes with strong views; purchasers should allow budget for service connections, barn removal and access improvements.
The site is offered freehold at a guide price of £450,000 with full plans available on request. Buyers should check remaining planning conditions, confirm service connection costs and consider potential garden extensions offered by the vendor. Council tax information is not yet confirmed.
Property for sale in Pennymoor, Tiverton, Devon, EX16 — £450,000 • 1 bed • 1 bath • 4983 ft²
Plot for sale in SUPERB BUILDING PLOT IN c. 2 ACRES, Nr. Cullompton, Devon, EX15 — £550,000 • 1 bed • 1 bath • 3768 ft²
Land for sale in Zeal Monachorum, Crediton, Devon, EX17 — £450,000 • 1 bed • 1 bath • 17000 ft²
Land for sale in Doddiscombsleigh, Exeter, EX6 — £275,000 • 5 bed • 2 bath • 9583 ft²
Land for sale in Lower Cheriton Barns, Honiton, EX14 — £535,000 • 1 bed • 1 bath • 2583 ft²
4 bedroom detached house for sale in Cheriton Farm, Honiton, EX14 — £325,000 • 4 bed • 4 bath • 2433 ft²






































































































































