Bright family living with garden and strong local schools nearby.
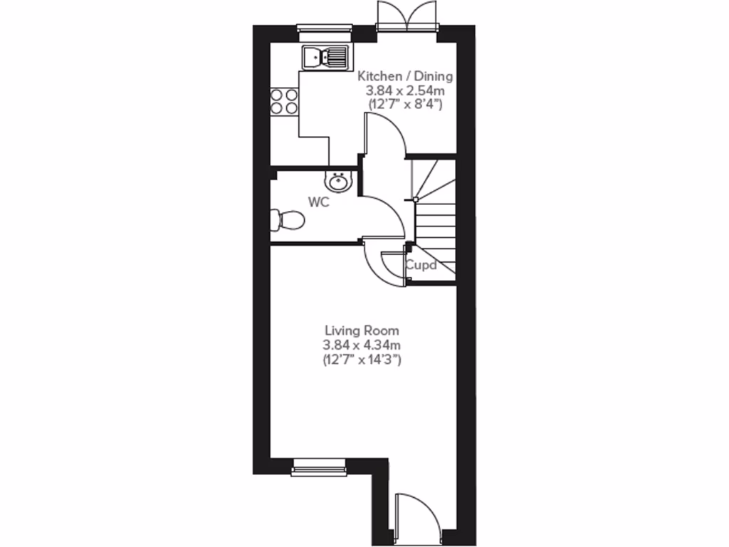
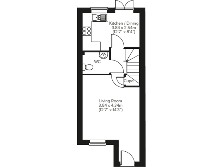
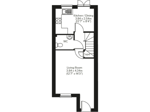
- Three-storey terraced freehold with 1,216 sq ft of accommodation
- Open-plan kitchen/diner with French doors to enclosed garden
- Principal bedroom on top floor with en suite
- Downstairs WC plus three handy storage cupboards
- New-build construction; modern fixtures and integrated kitchen
- Council tax band not available until after occupation
- Local crime reported above average — consider security measures
- Average overall size; traditional stacked layout rather than loft plan
This smart three-storey terraced home offers practical family living across 1,216 sq ft. A bright open-plan kitchen/dining room opens through French doors to an enclosed rear garden, while a front-aspect living room and a downstairs WC add everyday convenience. Built as a new build and offered freehold, the Saunton layout uses storage well with three cupboards and an enclosed porch.
The top-floor principal bedroom is spacious and benefits from an en suite; two further bedrooms sit on the middle floor. Room sizes are straightforward and adaptable for a growing family, home office or guest space. The house sits in a comfortable suburbia within a very affluent area and is close to several well-rated primary and secondary schools, making it well-suited to households prioritising local schooling.
Practical points to note: crime is reported above average locally, and the council tax band will not be available until post-occupation. The overall property size is average for a three-bedroom home, and the internal layout follows a traditional stacked plan rather than an open-plan loft style. Parking and other external details are not specified in the information provided.
Overall, this is a tidy, modern family-orientated house with usable outdoor space and sensible storage. It will appeal to buyers seeking a move-in-new home near good schools in Eaglescliffe, and to investors looking for a straightforward, low-maintenance three-bedroom property in a desirable postcode.
3 bedroom end of terrace house for sale in Hunters Edge,
Urlay Nook Road,
Eaglescliffe,
Stockton-on-Tees,
County Durham,
TS16 0QA, TS16 — £187,960 • 3 bed • 1 bath • 1216 ft²
3 bedroom end of terrace house for sale in Hunters Edge,
Urlay Nook Road,
Eaglescliffe,
Stockton-on-Tees,
County Durham,
TS16 0QA, TS16 — £194,000 • 3 bed • 1 bath • 1102 ft²
3 bedroom semi-detached house for sale in Welwyn Road, Ingleby Barwick, Stockton-on-Tees, County Durham, TS17 0FA, TS17 — £259,950 • 3 bed • 1 bath • 656 ft²
3 bedroom semi-detached house for sale in Welwyn Road, Ingleby Barwick, Stockton-on-Tees, County Durham, TS17 0FA, TS17 — £259,950 • 3 bed • 1 bath • 656 ft²
3 bedroom semi-detached house for sale in Claxton Farm, Hartlepool, County Durham, TS22 5PT, TS22 — £209,950 • 3 bed • 1 bath • 393 ft²
4 bedroom detached house for sale in Hunters Edge,
Urlay Nook Road,
Eaglescliffe,
Stockton-on-Tees,
County Durham,
TS16 0QA, TS16 — £410,000 • 4 bed • 1 bath • 2523 ft²


































































































