Energy-efficient three-bed ideal for first-time buyers near good schools.
New-build three-storey semi-detached house, freehold
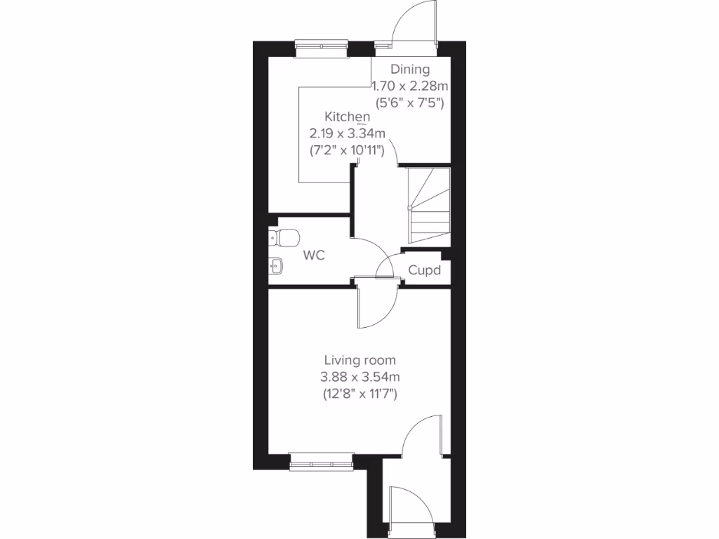
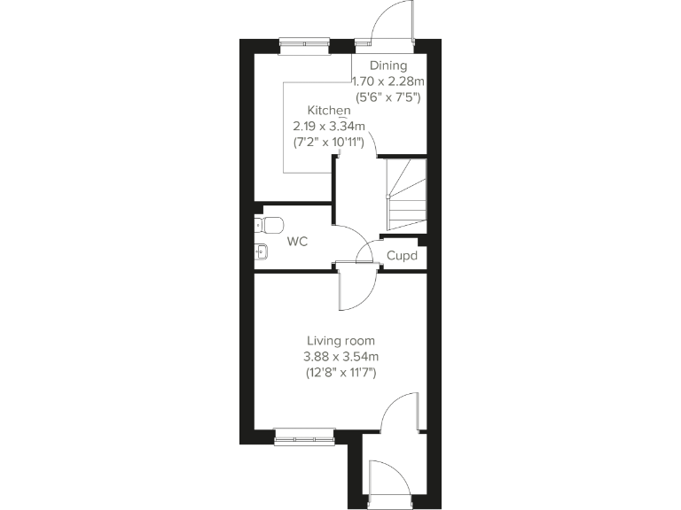
A compact three-storey semi-detached new build offering practical family accommodation in Claxton Farm, Hartlepool. The Saunton layout places an open-plan kitchen/dining room with outside access at the heart of the home and a front-aspect living room for everyday sitting. The top-floor main bedroom includes an en suite, and there is a ground-floor WC plus three useful storage cupboards.
The home is energy efficient and comes with a private driveway, detached garage and an enclosed garden — uncommon conveniences for a small-footprint property. Room sizes are modest throughout (total about 393 sq ft), so the house suits first-time buyers or a small family seeking low-maintenance living rather than generous living space. The plot is described as large, which suggests outdoor potential despite the compact interior.
Practical points to note: broadband speeds in the area are reported very slow, which may affect home working or streaming. Council tax banding is not yet available until post-occupation. The location has good local secondary schools rated Good by Ofsted and no flood risk. Overall this is a well-specified, efficient new home that trades generous internal space for modern conveniences and low upkeep.
3 bedroom semi-detached house for sale in Claxton Farm, Hartlepool, County Durham, TS22 5PT, TS22 — £229,950 • 3 bed • 1 bath • 656 ft²
3 bedroom semi-detached house for sale in Claxton Farm, Hartlepool, County Durham, TS22 5PT, TS22 — £229,950 • 3 bed • 1 bath • 656 ft²
3 bedroom semi-detached house for sale in Welwyn Road, Ingleby Barwick, Stockton-on-Tees, County Durham, TS17 0FA, TS17 — £259,950 • 3 bed • 1 bath • 656 ft²
3 bedroom semi-detached house for sale in Claxton Farm, Hartlepool, County Durham, TS22 5PT, TS22 — £224,950 • 3 bed • 1 bath • 576 ft²
3 bedroom semi-detached house for sale in Welwyn Road, Ingleby Barwick, Stockton-on-Tees, County Durham, TS17 0FA, TS17 — £259,950 • 3 bed • 1 bath • 656 ft²
3 bedroom semi-detached house for sale in Claxton Farm, Hartlepool, County Durham, TS22 5PT, TS22 — £214,950 • 3 bed • 1 bath • 1732 ft²






























































































































































