Contemporary, energy-efficient three-bed with garden and driveway — ideal for first-time buyers..
Three-storey modern semi-detached home with energy-efficient construction
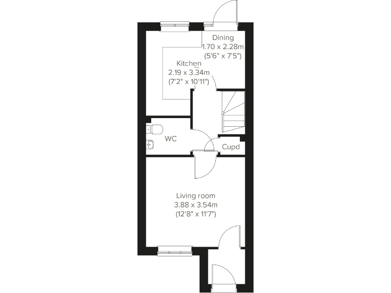
Open-plan kitchen/dining room with direct garden access
Top-floor principal bedroom with en suite bathroom
Front-aspect living room plus downstairs WC and enclosed porch
Three built-in storage cupboards for practical storage
Driveway off-street parking; enclosed garden included
Compact overall size (~656 sq ft); rooms are modest in scale
Council tax band not yet assigned; post-occupation determination needed
A compact three-storey semi-detached home arranged for practical modern living. The open-plan kitchen/dining room opens to the garden, while a front-aspect living room provides a separate sitting space. The top-floor main bedroom includes an en suite, and two further bedrooms sit on the first floor — a layout that suits young families or first-time buyers seeking a low-maintenance home.
The property delivers useful storage with three cupboards, an enclosed porch and a downstairs WC, plus off-street parking on the driveway. Built as a new home, it benefits from energy-efficient construction and contemporary fixtures throughout, including a modern kitchen and family bathroom.
Buyers should note the overall size is small (approximately 656 sq ft) and rooms are compact — the kitchen/dining and some bedrooms are modest in scale. Council tax banding is not yet confirmed; room dimensions are provided and show limited living footprint. The property is freehold and has no flood risk.
Set in an established, affluent village environment with good local schools and fast broadband, this home offers a convenient, low-upkeep base with potential for efficient family use or rental investment. The compact footprint keeps running costs lower but may limit large-family living and storage needs.
3 bedroom semi-detached house for sale in Welwyn Road, Ingleby Barwick, Stockton-on-Tees, County Durham, TS17 0FA, TS17 — £259,950 • 3 bed • 1 bath • 656 ft²
3 bedroom semi-detached house for sale in Claxton Farm, Hartlepool, County Durham, TS22 5PT, TS22 — £209,950 • 3 bed • 1 bath • 393 ft²
3 bedroom semi-detached house for sale in Hunters Edge,
Urlay Nook Road,
Eaglescliffe,
Stockton-on-Tees,
County Durham,
TS16 0QA, TS16 — £205,000 • 3 bed • 1 bath • 1613 ft²
3 bedroom end of terrace house for sale in Hunters Edge,
Urlay Nook Road,
Eaglescliffe,
Stockton-on-Tees,
County Durham,
TS16 0QA, TS16 — £194,000 • 3 bed • 1 bath • 1216 ft²
3 bedroom end of terrace house for sale in Hunters Edge,
Urlay Nook Road,
Eaglescliffe,
Stockton-on-Tees,
County Durham,
TS16 0QA, TS16 — £194,000 • 3 bed • 1 bath • 1102 ft²
3 bedroom semi-detached house for sale in Hunters Edge,
Urlay Nook Road,
Eaglescliffe,
Stockton-on-Tees,
County Durham,
TS16 0QA, TS16 — £205,000 • 3 bed • 1 bath • 1215 ft²


























































































































































