Modern new-build with garden and nearby top-rated schools, ideal for growing families.
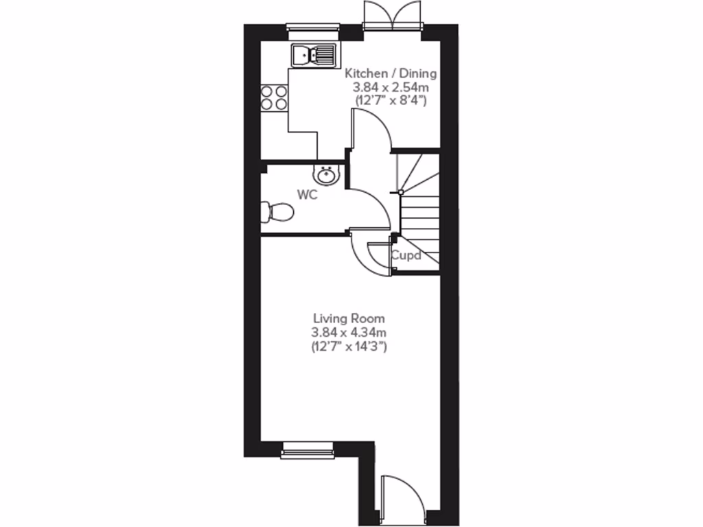
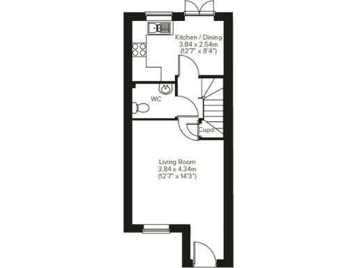
Three-storey end-of-terrace with 1,102 sq ft of living space
A bright three-storey end-of-terrace newly built home offering practical family space across 1,102 sq ft. The open-plan kitchen/dining room opens through French doors to an enclosed rear garden, and a front-aspect living room gives a separate reception for everyday living. An enclosed porch and downstairs WC add convenience for arrivals and guests.
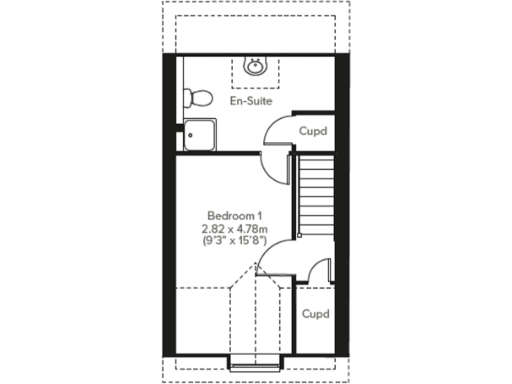
The top-floor principal bedroom includes an en suite; two further bedrooms sit on the first floor alongside handy built-in storage cupboards on the second floor landing. The layout suits parents who want bedrooms separated from the main living space and families who value storage and flow between kitchen and garden.
Located in an affluent Eaglescliffe neighbourhood with several highly rated nearby schools, the house is freehold and classed as average overall size for the area. It is a new-build property in a comfortable suburb, with no recorded flooding risk. Note practical points plainly: local crime levels are above average, and the council tax band won’t be confirmed until after occupation.
This property suits buyers seeking modern, low-maintenance living with easy access to good schools and transport links. The straightforward condition and new-construction status reduce immediate refurbishment needs, though purchasers should confirm final service charges, parking arrangements and council tax details during pre-contract enquiries.
3 bedroom terraced house for sale in Hunters Edge,
Urlay Nook Road,
Eaglescliffe,
Stockton-on-Tees,
County Durham,
TS16 0QA, TS16 — £190,000 • 3 bed • 1 bath • 1216 ft²
3 bedroom end of terrace house for sale in Hunters Edge,
Urlay Nook Road,
Eaglescliffe,
Stockton-on-Tees,
County Durham,
TS16 0QA, TS16 — £187,960 • 3 bed • 1 bath • 1216 ft²
3 bedroom semi-detached house for sale in Welwyn Road, Ingleby Barwick, Stockton-on-Tees, County Durham, TS17 0FA, TS17 — £259,950 • 3 bed • 1 bath • 656 ft²
3 bedroom semi-detached house for sale in Welwyn Road, Ingleby Barwick, Stockton-on-Tees, County Durham, TS17 0FA, TS17 — £259,950 • 3 bed • 1 bath • 656 ft²
3 bedroom semi-detached house for sale in Claxton Farm, Hartlepool, County Durham, TS22 5PT, TS22 — £209,950 • 3 bed • 1 bath • 393 ft²
4 bedroom detached house for sale in Hunters Edge,
Urlay Nook Road,
Eaglescliffe,
Stockton-on-Tees,
County Durham,
TS16 0QA, TS16 — £410,000 • 4 bed • 1 bath • 3053 ft²


































































































