Approved plans for three family houses with estuary views close to town amenities.
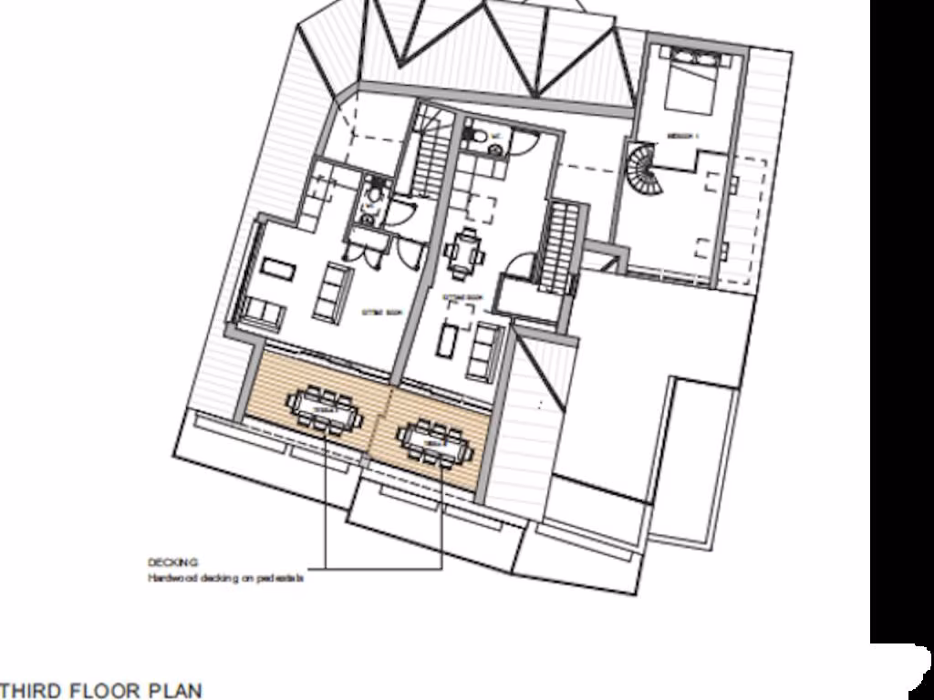
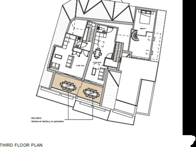
Planning consent for 3 x 4‑bed luxury family homes over three floors
Panoramic Thames Estuary views from second and third floors
Freehold plot in Leigh conservation area, central amenities nearby
Basement provides 3 parking spaces, refuse and cycle storage
Small urban plot; limited private garden space and parking
Requires full redevelopment/renovation; build costs and completion risk
Fast broadband and excellent mobile signal; low flood risk
Local crime rate above average; conservation controls may add cost
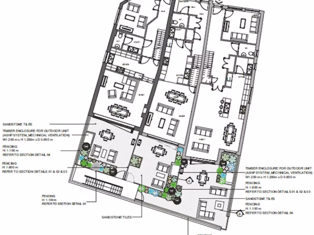
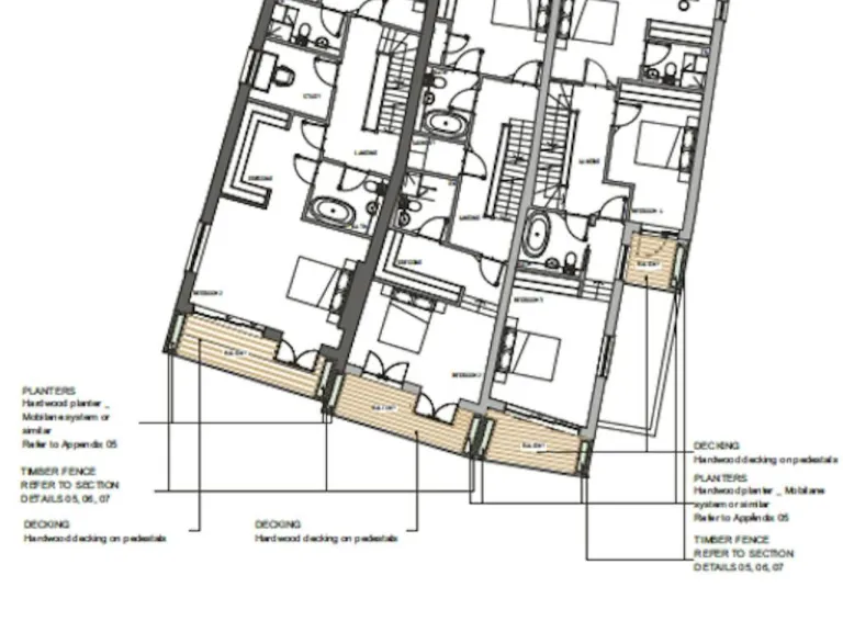
This is a rare central Leigh-on-Sea development plot with approved planning for three luxury family homes. The consent covers conversion and partial rebuild to form 3 x four‑bed, three‑storey houses with basement parking, refuse and cycle storage, and rear amenity space. Upper floors will enjoy panoramic Thames Estuary views, and the scheme is designed for generous internal layouts suited to family living.
The site sits within Leigh’s conservation area close to shops, cafés, transport and highly regarded schools, offering strong local appeal for owner‑occupier families. Practical advantages include freehold tenure, fast broadband and excellent mobile signal, plus a low flood risk. The scheme provides three off‑street parking spaces at basement level and private amenity directly off dining areas.
Buyers should plan for build and completion risk: the plot requires redevelopment and renovation work, and costs associated with constructing three new family homes will be material. The site is small for a town‑centre infill and parking is limited to three spaces, which may constrain some households. Conservation-area controls will influence materials and external detailing, potentially adding specification complexity and cost.
This opportunity suits a developer or family buyer seeking a central coastal address with approved consent for high‑quality homes. If you value location, elevated sea views from upper floors and a thoughtfully arranged three‑house scheme, this site offers clear development potential, but budget realistically for construction, conservation requirements and local parking constraints.
Land for sale in Leigh Hill, Leigh-On-Sea, SS9 — £1,000,000 • 1 bed • 1 bath • 3000 ft²
Land for sale in Leigh Hill, Leigh-on-sea, SS9 — £1,000,000 • 1 bed • 1 bath • 7642 ft²
Land for sale in 1-5 Woodside, Leigh On Sea, SS9 4SS, SS9 — £750,000 • 1 bed • 1 bath • 4214 ft²
Land for sale in 1 Clifton Mews, Southend-on-Sea, SS1 1FL, SS1 — £275,000 • 1 bed • 1 bath • 2500 ft²
Property for sale in London Road, Southend-On-Sea, SS1 — £1,050,000 • 1 bed • 1 bath
Land for sale in Woodside, Leigh-On-Sea, SS9 — £675,000 • 1 bed • 1 bath • 4213 ft²






























































