Rare front‑facing coastal plot with approved plans and panoramic estuary views.
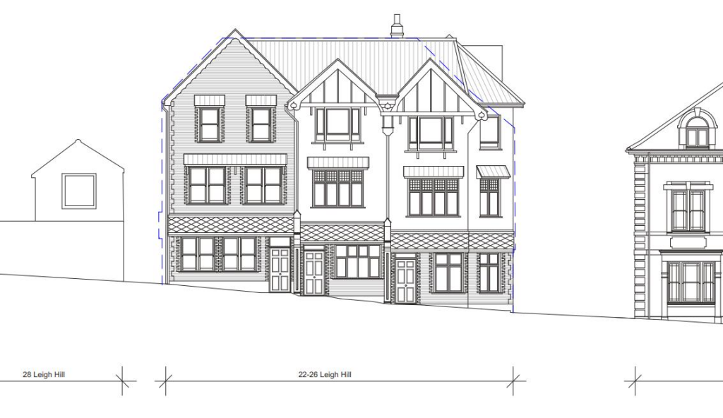
Full planning granted 2024 for three three‑storey dwellings (planning ref 24/00272/FUL)
Stunning estuary and Old Leigh sea views; south‑facing gardens and terraces
Largest unit up to c.3,000 sq ft; basement parking and cycle/refuse provision
Part demolition and rebuild required; existing buildings need renovation
CIL contribution approx. £65,297.83; verify other planning obligations
Plot described as relatively small for proposed scheme; check design implications
Local crime rate above average; buyers should factor security into plans
Vendor seeks unconditional offers; acquisition fee and VAT payable on exchange
An exceptionally rare front‑facing development plot on Leigh Hill with full planning permission (ref 24/00272/FUL) to deliver three large, three‑storey dwellings — the largest unit up to c.3,000 sq ft. The site benefits from commanding estuary and Old Leigh outlooks, south‑facing gardens, large terraces and enclosed balconies that maximise the coastal aspect. Parking, side access and basement-level refuse/cycle storage are included in the approved scheme.
The opportunity suits a small developer or investor seeking a near‑completed planning package in a high‑demand seaside town. The vendor’s GDV and build-cost indications (GDV £4.4m; approximate build cost £2.0m) provide headline project metrics; buyers should verify all costs and assumptions. Services are understood to be available from neighbouring properties, but prospective purchasers must confirm connections and capacities.
Material points to note: the scheme involves partial demolition and rebuild, CIL of £65,297.83 and an above‑average local crime rate. The plot is described as relatively small for the scale of development, and some existing buildings show worn/derelict condition requiring works. Offers are requested unconditionally; an acquisition fee and VAT are payable on exchange. These facts make the site a higher‑reward, higher‑work project best suited to those experienced with coastal renovations and redevelopment.
Land for sale in 22-26 Leigh Hill, Leigh-on-Sea, SS9 2DN, SS9 — £1,250,000 • 1 bed • 1 bath • 4356 ft²
Land for sale in Leigh Hill, Leigh-on-sea, SS9 — £1,000,000 • 1 bed • 1 bath • 7642 ft²
Land for sale in 1-5 Woodside, Leigh On Sea, SS9 4SS, SS9 — £750,000 • 1 bed • 1 bath • 4214 ft²
Land for sale in 1 Clifton Mews, Southend-on-Sea, SS1 1FL, SS1 — £275,000 • 1 bed • 1 bath • 2500 ft²
Land for sale in Woodside, Leigh-On-Sea, SS9 — £675,000 • 1 bed • 1 bath • 4213 ft²
3 bedroom detached house for sale in Clifton Mews, Southend-On-Sea, SS1 — £275,000 • 3 bed • 1 bath • 1500 ft²






















































