Freehold coastal plot in Leigh-on-Sea — renovation or redevelopment potential near Old Leigh..
Prime Leigh-on-Sea location near Old Leigh, beach and station
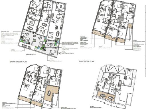
Substantial building area: 7,642 sq ft across three-unit layout description
Freehold tenure with garage parking included
Coastal and estuary views possible; fast broadband and excellent mobile signal
Described as partly dilapidated — needs renovation or redevelopment
Above-average local crime rate — consider security measures
Plot described as small despite large overall size; confirm boundaries
No flood risk reported
A rare freehold development plot in Leigh-on-Sea offering a substantial building footprint (7,642 sq ft) located within easy walking distance of Old Leigh’s cobbled streets, the beach and the train station. The site presents strong coastal appeal with potential for units designed to capture estuary and sea views — a compelling proposition for buyers seeking seaside living or short-stay rental demand.
The existing descriptions note Victorian character and seaside aspects alongside contemporary design concepts; this mix gives scope to deliver period-led homes with modern interiors or a clean new-build approach. Flooding risk is reported as none and the area is affluent with fast broadband and excellent mobile signal, supporting high-quality residential or holiday-use proposals.
Notable negatives are clear and should factor into acquisition planning: parts of the property are described as dilapidated and requiring renovation, and the immediate location reports above-average crime. The plot size is described as small despite a large overall built area, so check exact boundaries and site constraints before proceeding. Tenure is freehold and parking provision includes a garage, which will support family buyers or long-stay tenants.
This opportunity suits developers or investor-builders who can manage refurbishment or redevelopment work and who value proximity to strong local amenities and highly rated schools nearby. Due diligence on site condition, security measures and any planning or access limitations is advisable before committing.
4 bedroom detached house for sale in Leigh Park Road, Leigh-on-sea, SS9 — £700,000 • 4 bed • 1 bath • 1669 ft²
Land for sale in Leigh Hill, Leigh-On-Sea, SS9 — £1,250,000 • 1 bed • 1 bath • 3000 ft²
4 bedroom block of apartments for sale in Marine Parade, Leigh-on-Sea, SS9 2NA, SS9 — £1,100,000 • 4 bed • 2 bath • 2302 ft²
Commercial property for sale in Commercial, Leigh on Sea,, SS9 — £675,000 • 1 bed • 1 bath • 4222 ft²
Commercial development for sale in Lot, 22-26 Leigh Hill, Leigh-on-Sea SS9 2DN, SS9 — £1,250,000 • 1 bed • 1 bath • 4356 ft²
Property for sale in London Road, Southend-On-Sea, SS1 — £1,050,000 • 1 bed • 1 bath






























