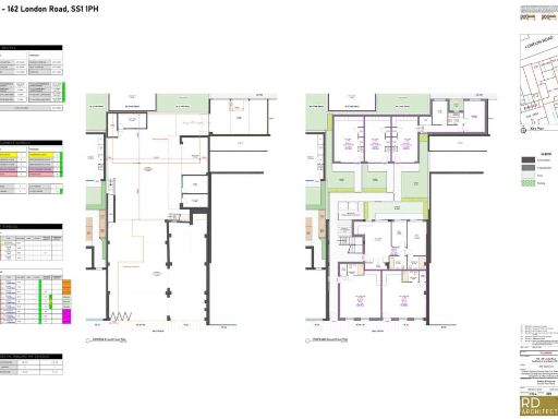
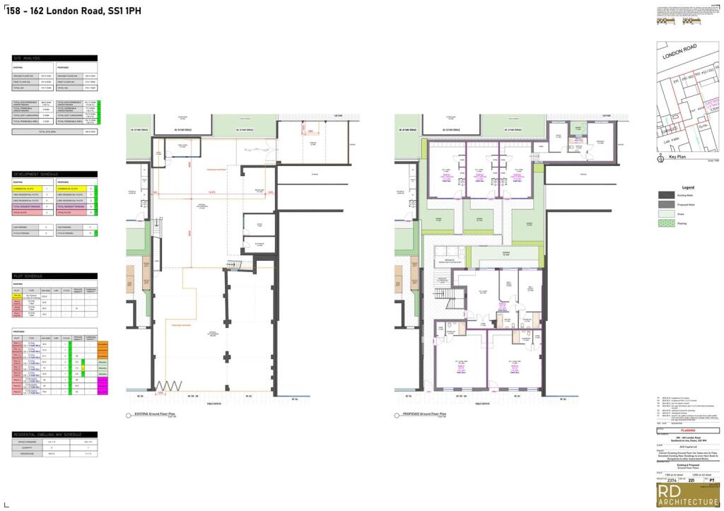
Permitted scheme for nine units in central Southend, ideal for investor/developer..
- Full planning for nine self-contained units (five 1-beds, three chalets, one 2-bed GF flat)
- Freehold site with a decent plot size near seafront and Southend Victoria
- No flood risk; excellent mobile signal and fast broadband reported
- Widely described area as deprived; above-average local crime rates
- No full address or internal photos provided; on-site inspection required
- Council tax and total floor areas not supplied; costs to verify
- Plans/CGIs illustrative; build costs, discharges and management needed
- Suitable for commuter lets or holiday-let market, subject to due diligence
A rare development parcel in central Southend-on-Sea with full planning permission for nine self-contained units: five one-bedroom flats, one two-bedroom ground-floor flat and three chalet-style units (two x two-bed, one x two/three-bed). The site is freehold and described as a decent-sized plot, within easy walking distance of the seafront, Southend Victoria station, local shops and bus routes — a strong location for commuter lettings or short-term holiday lets.
This opportunity is aimed at developers and investors who want a permitted scheme ready to move to site. The plans and CGI have been prepared (images illustrative) so the principal upfront risk of securing planning has been removed. Broadband and mobile signal are reported good, and the site has no reported flood risk — useful selling points for future tenants or buyers.
Buyers should note material negatives: the listing does not show a full residential address or internal photos, so on-site inspection is essential to confirm boundaries, condition and access. The wider area is described as deprived with above-average crime rates, which will influence rental demand, yields and insurance costs. Council tax and exact floor areas are not provided and will need confirming before purchase. The scheme will require construction budget, local authority discharges and management planning for multiple units.
In short: a permitted, freehold seaside development plot in a convenient town-centre location, suitable for an investor or developer prepared to manage construction, local services and let/marketing strategy. Visit the site to verify details and costings before exchange.
Land for sale in Alexandra Street, Southend-on-Sea, Essex, SS1 — £1,950,000 • 1 bed • 1 bath • 13939 ft²
Residential development for sale in West Road, Westcliff-on-Sea, SS0 — £795,000 • 1 bed • 1 bath • 12500 ft²
Land for sale in Development, Southend-on-sea,, SS1 — £275,000 • 1 bed • 1 bath • 1492 ft²
Land for sale in West Road, Westcliff-on-sea, SS0 — £900,000 • 1 bed • 1 bath • 12500 ft²
Commercial development for sale in Lot, 1 Clifton Mews, Southend-on-Sea SS1 1FL, SS1 — £275,000 • 1 bed • 1 bath • 2500 ft²
3 bedroom detached house for sale in Clifton Mews, Southend-On-Sea, SS1 — £275,000 • 3 bed • 1 bath • 1500 ft²


























