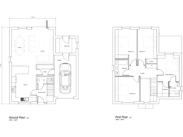
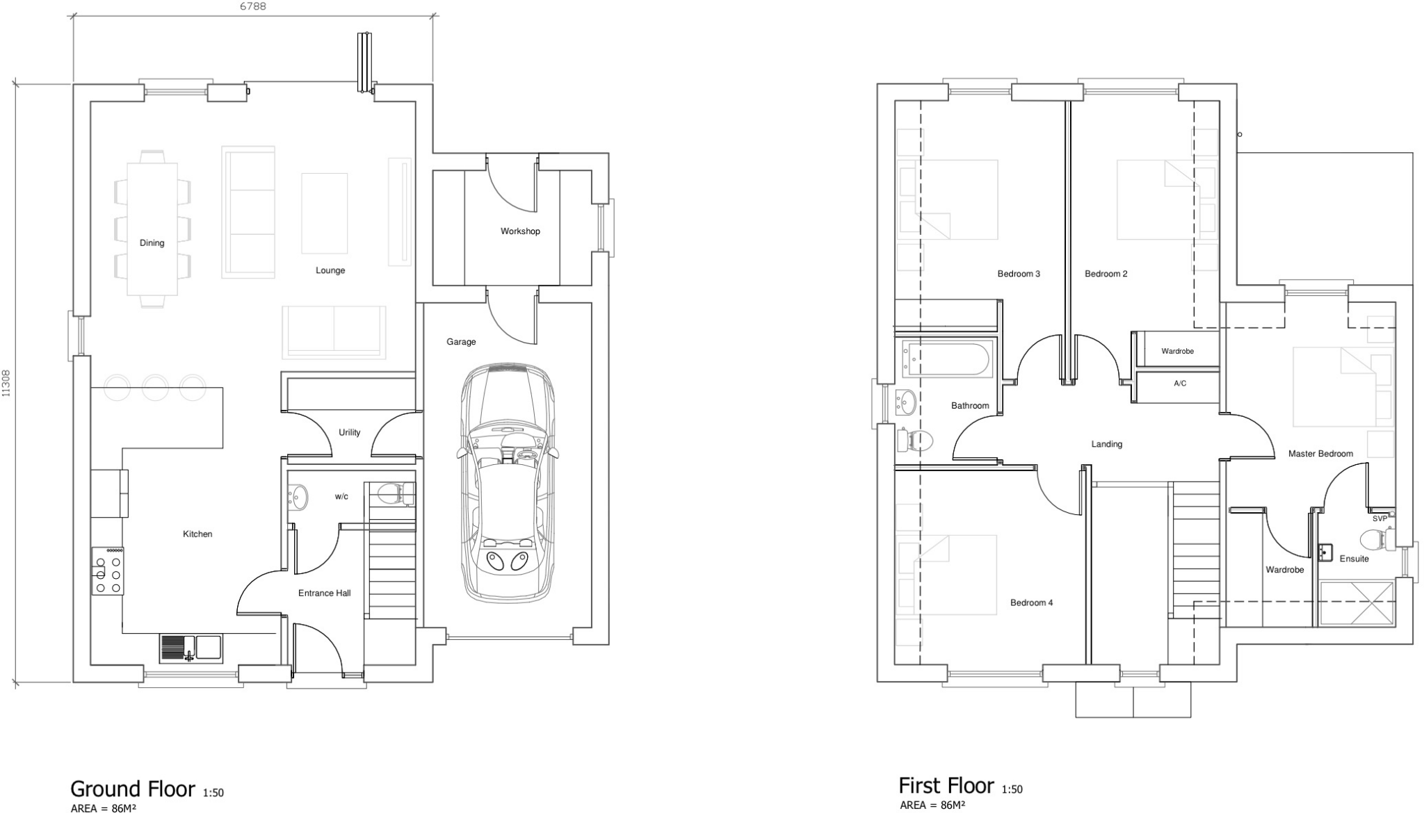
**Standout Features:**
- Full planning approval for a 165 m² modern family home
- Private, peaceful setting in the charming hamlet of Derril, North Devon
- Close proximity to Bude and Holsworthy, ideal for coastal access
- Eco-friendly design with solar panels, a battery storage system, and EV charging point
- Four spacious double bedrooms with ensuite options
- High-quality contemporary finish with German kitchen and integrated appliances
**Concise Summary:**
Discover an exceptional opportunity to build your dream home in the tranquil hamlet of Derril near Pyworthy. This well-positioned plot comes with full planning approval for a stunning 165 m² family residence, designed to blend modern comfort with sustainable living. Envision a spacious open-plan kitchen and living area, perfect for gatherings, combined with four generous bedrooms, including a principal suite for ultimate relaxation. The property is designed with eco-friendly features like solar panels and a battery storage system, ensuring energy efficiency and lower running costs.
Set in a picturesque rural landscape yet just 8 miles from the vibrant beaches of Bude, enjoy the benefits of countryside living without sacrificing convenience. This is more than just a plot; it's a chance to invest in a sustainable future tailored to your family’s needs. With no S106 contributions and all services provided to the boundary, the groundwork for your new home is already in place. Whether you are a family seeking a peaceful retreat or an investor looking to seize a unique opportunity, act now—this plot won't last long!
Land for sale in Derril, Nr. Pyworthy, EX22 — £125,000 • 1 bed • 1 bath • 1776 ft²
Land for sale in Derril, Nr. Pyworthy, EX22 — £115,000 • 4 bed • 2 bath • 1776 ft²
Land for sale in Derril, Holsworthy, EX22 — £195,000 • 5 bed • 4 bath • 2056 ft²
Plot for sale in SUPERB SINGLE PLOT IN c, 4 ACRES, Nr BRADWORTHY, EX22 — £300,000 • 1 bed • 1 bath • 4338 ft²
Land for sale in West Putford, Holsworthy, EX22 — £299,000 • 1 bed • 1 bath • 3552 ft²
Plot for sale in Old Drovers Way, Stratton, Bude, Cornwall, EX23 — £165,000 • 1 bed • 1 bath • 917 ft²


















































