**Standout Features:**
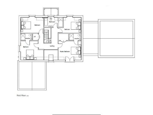
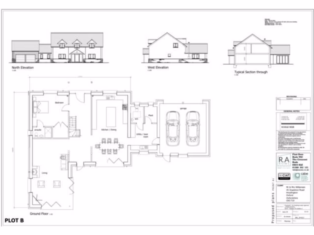
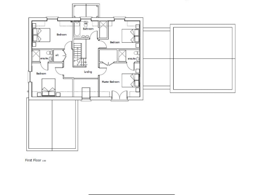
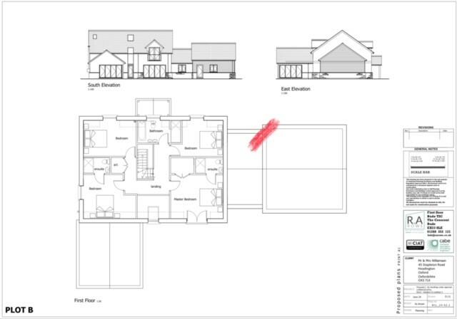
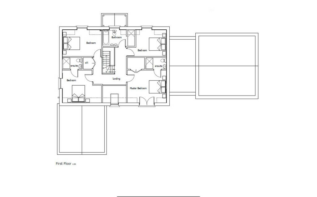
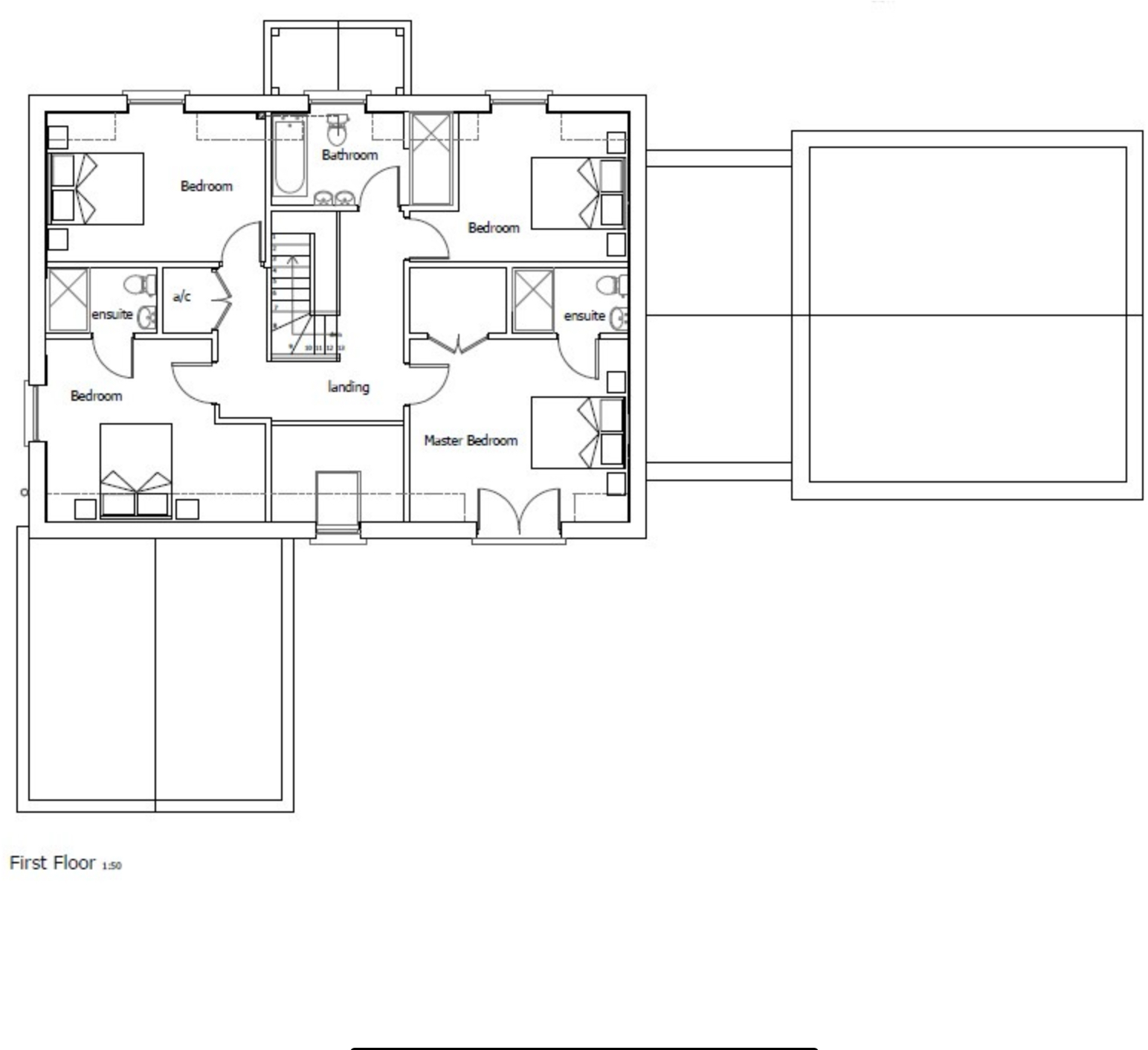
- 0.25-acre building plot with full planning approval for a 5-bedroom, 4.5-bathroom home
- Modern architectural design tailored for family living with spacious reception areas and a generous entrance
- Eco-friendly construction standards featuring solar panels, underfloor heating, and triple glazing
- Attached double garage and ample parking for 6-7 vehicles
- Located near Bude and Holsworthy, with picturesque countryside views
**Potential Downsides:**
- Surrounding area is remote, which may limit access to some amenities
- Plot is part of a larger development, which could impact privacy depending on future neighboring builds
**Summary:**
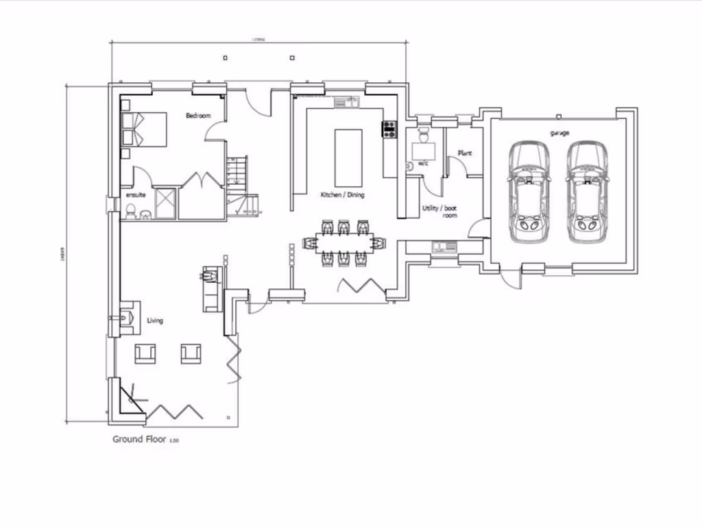
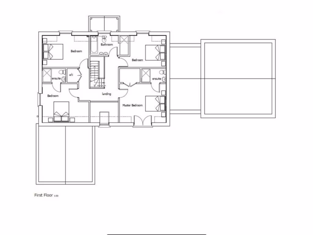
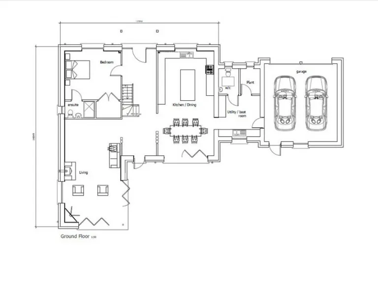
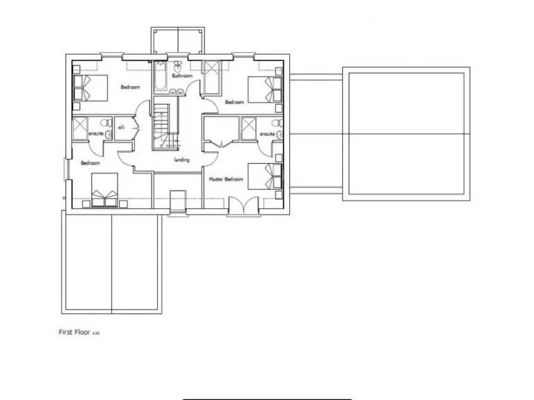
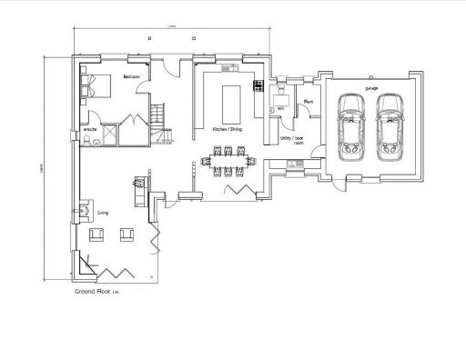
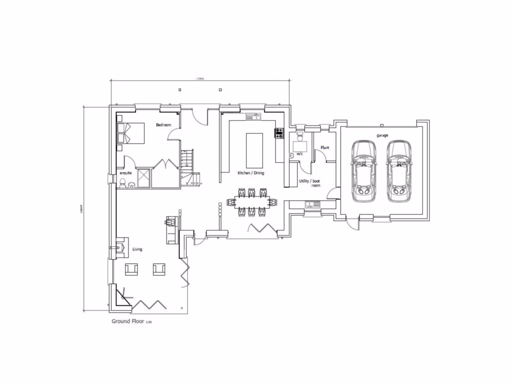
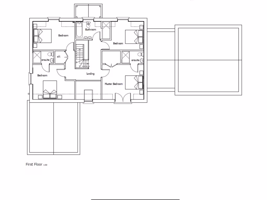
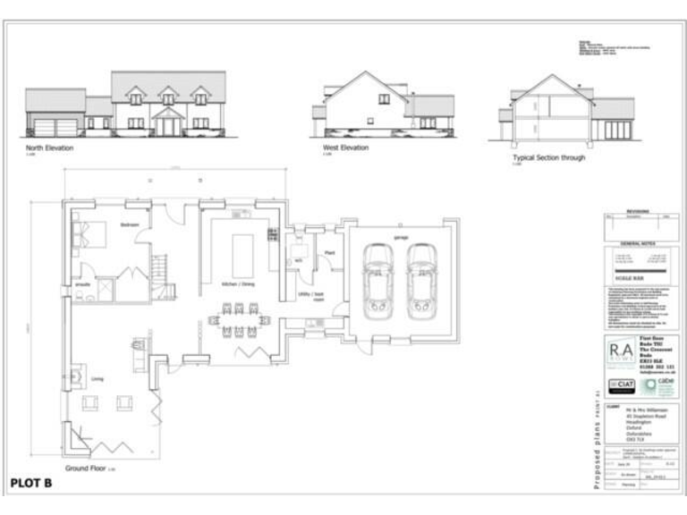
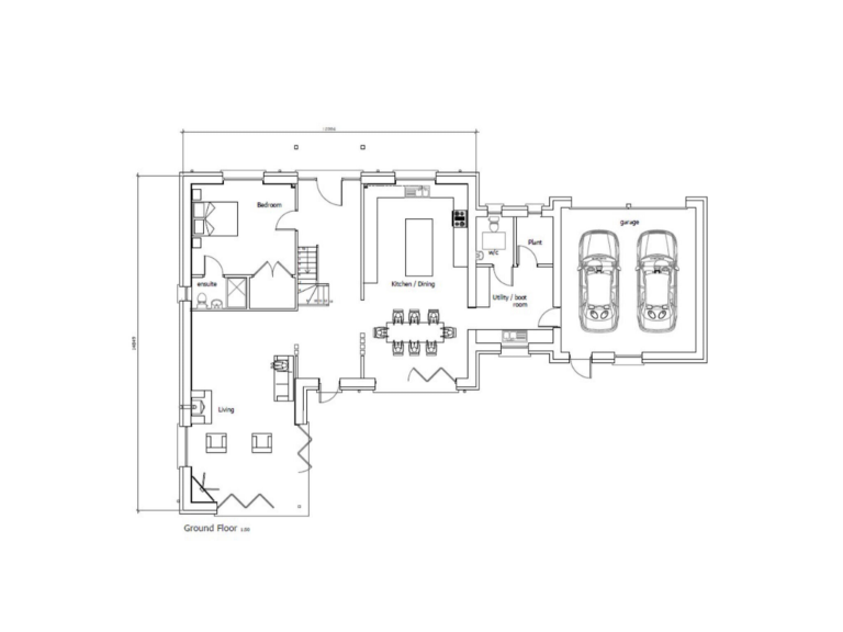
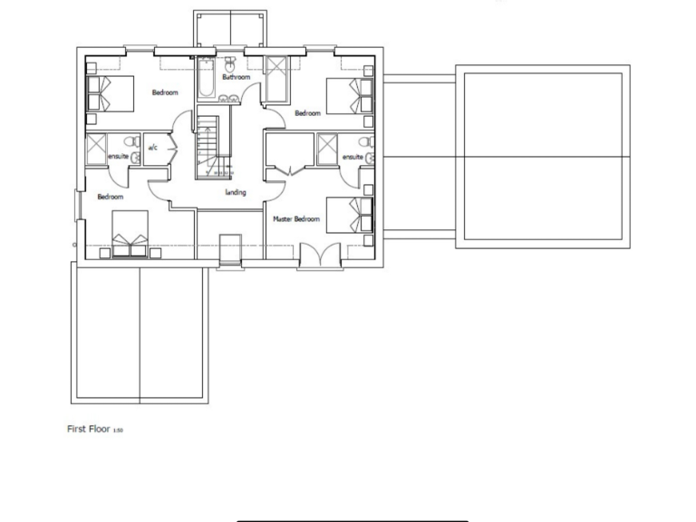
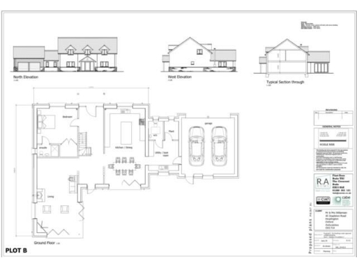
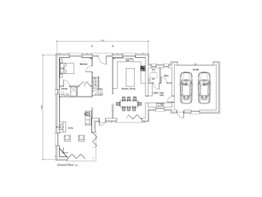
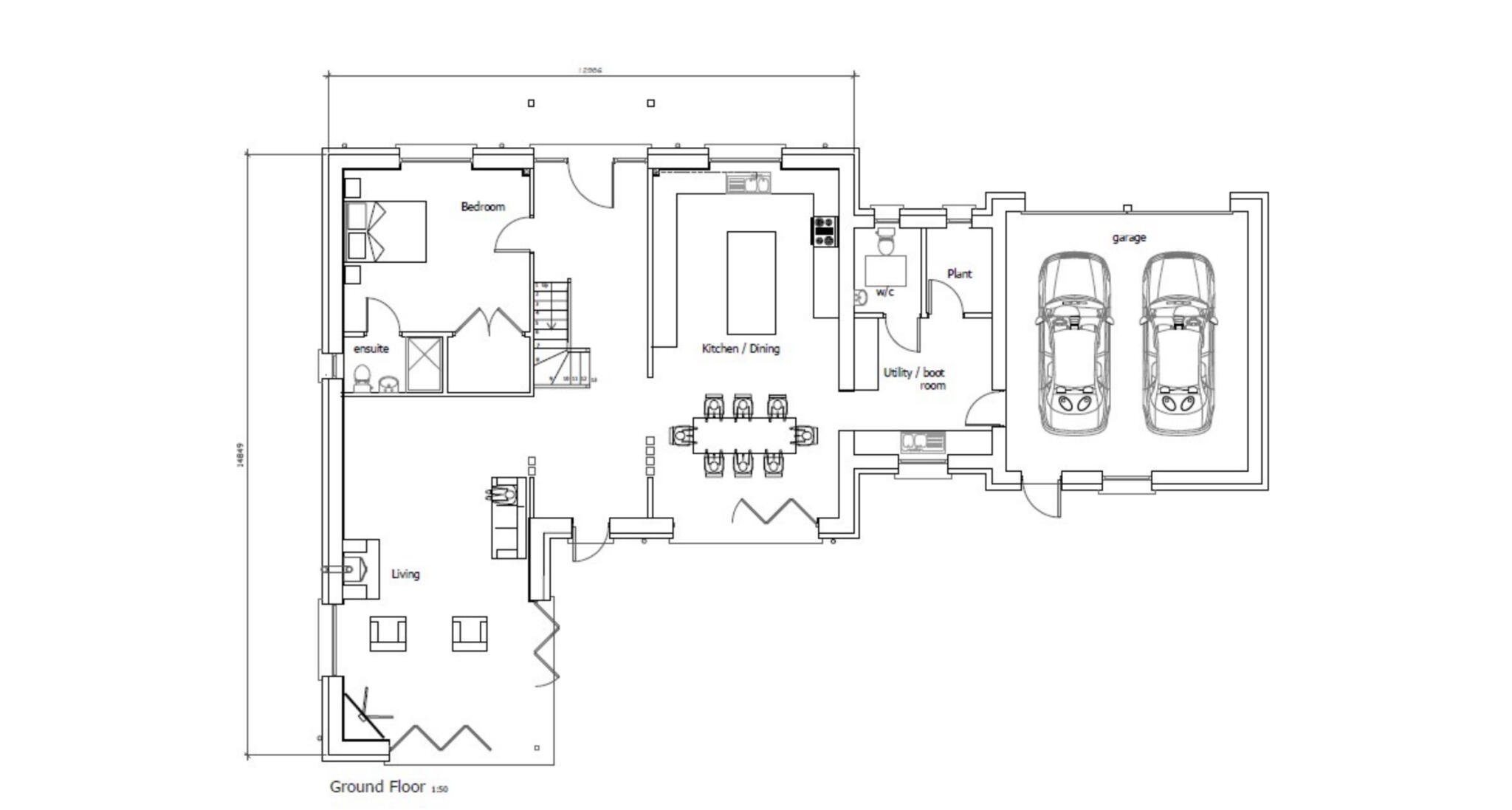
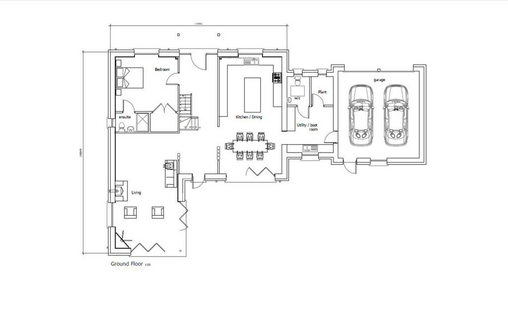
Discover a rare chance to create your dream home on this 0.25-acre building plot in the charming village of Derril, Holsworthy. With detailed planning approval for a stunning 5-bedroom residence, this plot allows ample opportunities to design a spacious family sanctuary just 8 miles from the picturesque North Cornish coastline. The thoughtfully designed layout features a vast kitchen diner, a spacious sitting room accentuated by corner glazing, plus versatile spaces such as a fifth bedroom or study with an en-suite.
The property stands out with its eco-friendly construction methods ensuring energy efficiency and cost savings. Outdoor enthusiasts will appreciate the generous garden space and tranquil surroundings of lush open fields. Given its unique combination of modern comforts and rural beauty, this fantastic opportunity is perfect for families eager to settle in a community-focused area while enjoying the appeal of contemporary living. Act quickly to secure this exceptional building plot — it won’t last long!
Land for sale in Derril, Nr. Pyworthy, EX22 — £125,000 • 1 bed • 1 bath • 1776 ft²
Land for sale in Derril, Nr. Pyworthy, EX22 — £105,000 • 4 bed • 2 bath • 1776 ft²
Land for sale in Derril, Nr. Pyworthy, EX22 — £115,000 • 4 bed • 2 bath • 1776 ft²
Land for sale in Limelight Plot, Poughill, Bude, EX23 — £500,000 • 5 bed • 6 bath • 3842 ft²
Plot for sale in Old Drovers Way, Stratton, Bude, Cornwall, EX23 — £165,000 • 1 bed • 1 bath • 917 ft²
Land for sale in West Putford, Holsworthy, EX22 — £299,000 • 1 bed • 1 bath • 3552 ft²






































































