**Standout Features:**
- Detailed planning approval for a spacious 4-bedroom family home.
- Prime location in the tranquil hamlet of Derril, near Pyworthy, just 8 miles from North Cornwall's scenic coast and the town of Bude.
- Eco-friendly design with solar PV, battery storage, and an electric vehicle charger.
- Architect-designed, integrating traditional charm with modern aesthetics.
- Generous living space of 165 m², crafted from high-quality materials.
**Summary:**
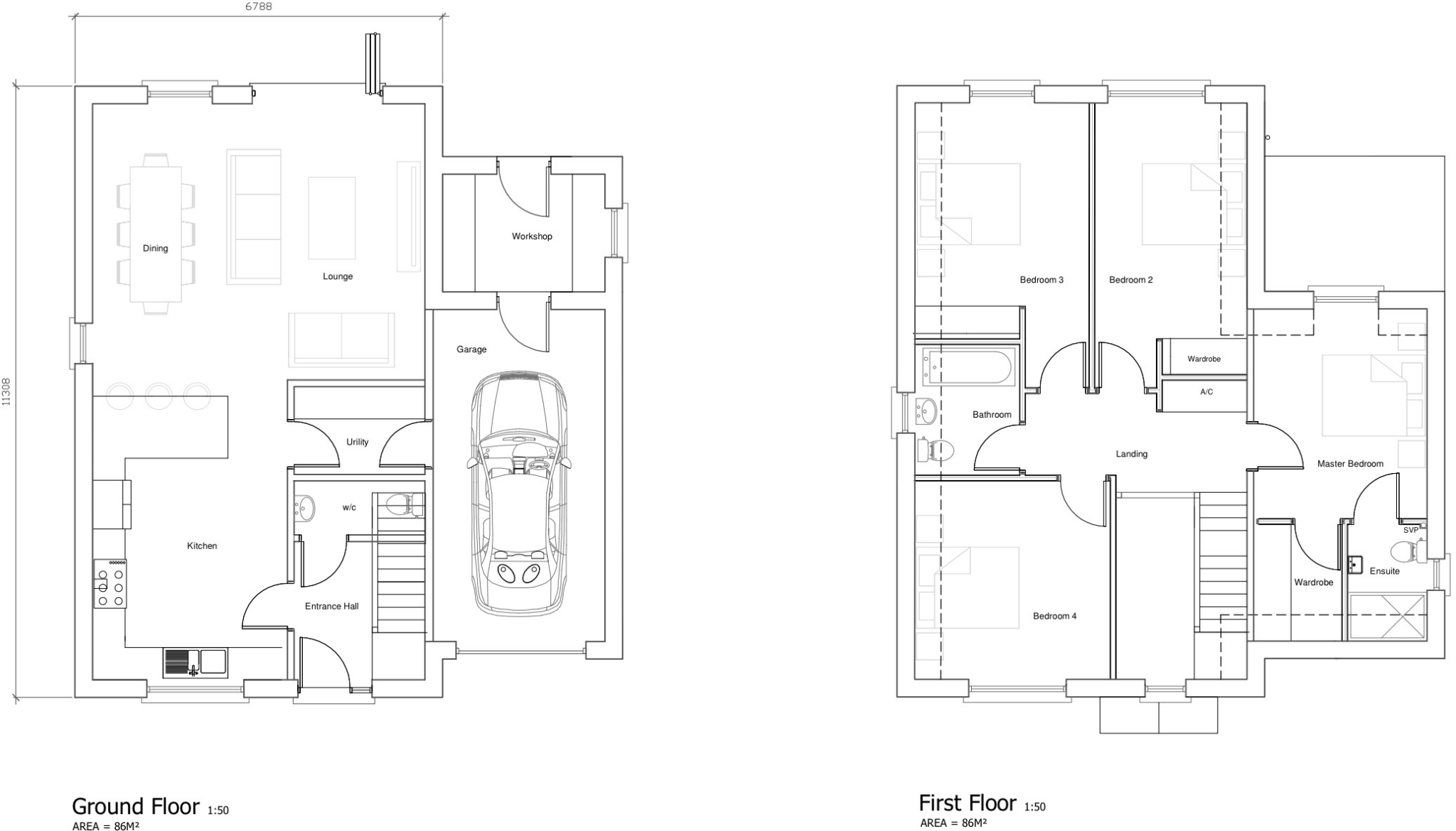
Discover an incredible opportunity to build your dream home on this generous building plot in the charming hamlet of Derril, near Pyworthy. With full planning approval for a stunning 165 m² family residence set within a serene countryside backdrop, this development promises a perfect blend of comfort and contemporary design. The proposed layout features four spacious double bedrooms, including a principal ensuite, along with expansive living areas centered around a large open-plan kitchen, dining, and family room.
The plot’s eco-friendly credentials are unmatched, incorporating cutting-edge technology like solar panels and low-energy building techniques, ensuring you enjoy future-forward living. With all essential services already connected to the property boundary and no S106 costs, you can focus on turning your vision into reality. Located just a short drive from the scenic North Cornish coastline and vibrant town life, this plot offers an excellent investment in your family’s future. Don’t miss your chance to secure a piece of this serene rural setting—opportunities like this are rare and won't last long!
Land for sale in Derril, Nr. Pyworthy, EX22 — £105,000 • 4 bed • 2 bath • 1776 ft²
Land for sale in Derril, Nr. Pyworthy, EX22 — £115,000 • 4 bed • 2 bath • 1776 ft²
Land for sale in Derril, Holsworthy, EX22 — £195,000 • 5 bed • 4 bath • 2056 ft²
Land for sale in Limelight Plot, Poughill, Bude, EX23 — £500,000 • 5 bed • 6 bath • 3842 ft²
Land for sale in West Putford, Holsworthy, EX22 — £299,000 • 1 bed • 1 bath • 3552 ft²
Plot for sale in Old Drovers Way, Stratton, Bude, Cornwall, EX23 — £165,000 • 1 bed • 1 bath • 917 ft²


















































