Almost 4 acres with detailed planning, services, solar and huge self-build potential..
Detailed planning approval for replacement dwelling (ref. 1/0317/2023/FUL)
Total site c.3.85 acres (1.56 ha) — very large plot
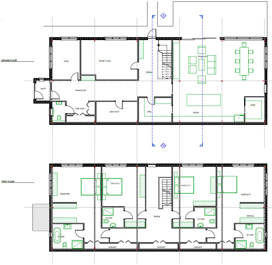
Proposed house c.403 sqm / 4,338 sqft; approved triple garage
Mains water and new private drainage already installed on site
24-panel solar array with battery storage included in sale
Existing static home, workshop, greenhouse and outbuildings on plot
Remote hamlet location; very slow broadband, average mobile signal
Tenure unknown; planning partly retrospective — buyer due diligence required
Set within c.3.85 acres (1.56 ha) of Devon countryside, this plot offers a rare opportunity for a spacious self-build or replacement dwelling close to Bradworthy. Detailed planning permission (ref. 1/0317/2023/FUL) was granted for a replacement house of c.403 sqm (4,338 sqft) with a detached triple garage and outbuildings, providing a clear route to build. Mains water and a new private drainage system are already installed, and a 24-panel solar array with battery storage is included, reducing initial utility setup time and running costs.
The site is sold with an existing static home, workshop, greenhouse and ancillary outbuildings that could be used during construction or repurposed post-build. The approved scheme shows four large first-floor bedrooms with en-suites and a large open-plan ground floor, but sellers have advised there has been constructive dialogue with planning officers about alternative designs — purchasers may wish to explore revised schemes, subject to consents.
Important practical points: the plot is in a remote hamlet setting with very slow broadband and average mobile signal, which will affect home working and connectivity. Planning is part-retrospective; buyers should review the full planning pack and make their own enquiries with the local authority. Tenure is recorded as unknown, so legal due diligence is required. There are no S106 or CIL charges reported for the approved permission.
Land for sale in West Putford, Holsworthy, EX22 — £299,000 • 1 bed • 1 bath • 3557 ft²
Land for sale in West Putford, Holsworthy, EX22 — £299,000 • 1 bed • 1 bath • 3552 ft²
Plot for sale in Long Park Drive, Bradworthy, Holsworthy, EX22 — £135,000 • 3 bed • 2 bath
Detached house for sale in Holsworthy, Devon, EX22 — £225,000 • 1 bed • 1 bath • 1149 ft²
Detached house for sale in Putford, Holsworthy, Devon, EX22 — £175,000 • 1 bed • 1 bath • 861 ft²
Plot for sale in Long Park Drive, Bradworthy, Holsworthy, EX22 — £135,000 • 3 bed • 2 bath • 1832 ft²


































