**Standout Features:**
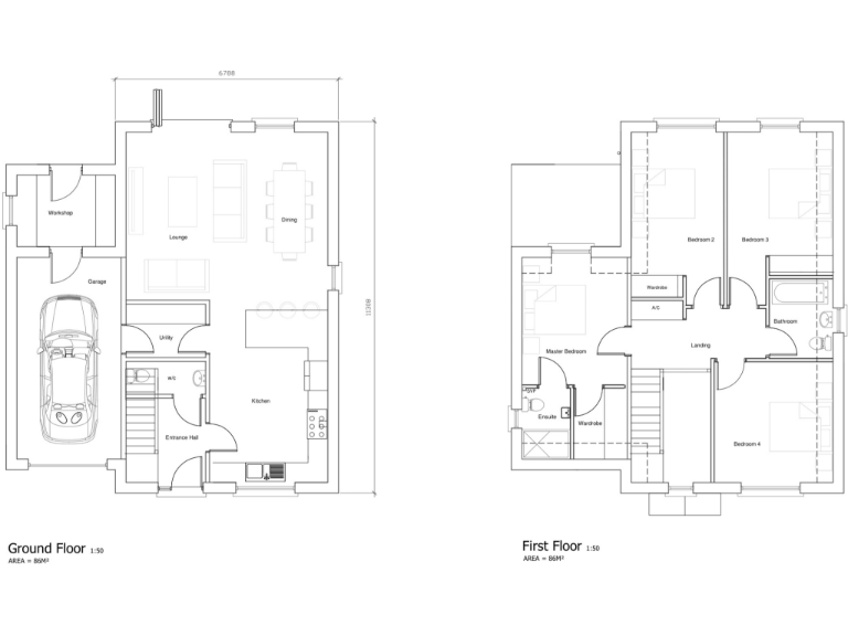
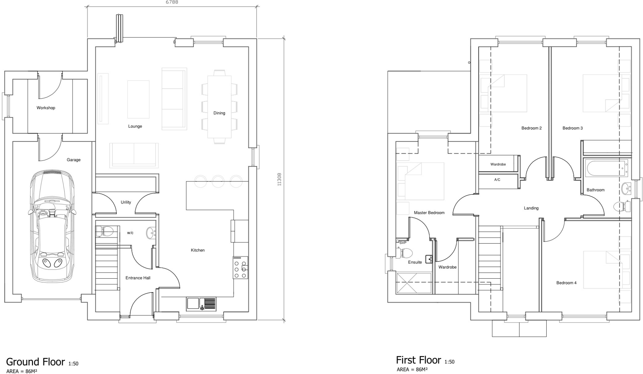
- Full planning permission approved for a 165 m² family home (Planning Ref: 1/0728/2024/FUL)
- Spacious layout featuring four double bedrooms, multiple ensuites, and a large open-plan living area
- Eco-friendly design with solar PV, battery storage, and EV charging capability
- Located in the peaceful hamlet of Derril, near Pyworthy, just 8 miles from Bude and the North Cornish Coast
- Included services: Electricity, Fresh and Foul Water, and Fibre Broadband to property boundary
- No S106 costs associated with the purchase
**Summary:**
Discover the ideal canvas for your dream family home at Plot C1-4 in the exclusive 'Rivers' development in serene Derril, North Devon. Approved for a stunning 165 m² residence, this plot allows you to create a spacious four-bedroom layout with modern amenities, featuring an expansive open-plan kitchen and living area perfect for family gatherings. Enjoy the benefits of cutting-edge, eco-friendly design, including solar panels and energy-efficient walls that promise sustainability for years to come.
Imagine taking a short drive to the rugged beauty of Bude or relaxing in your private garden in this tranquil rural setting. This is more than land; it’s an opportunity to cultivate your family's future in a peaceful community with low crime rates and a supportive environment. While the rural location offers average mobile reception and slower broadband speeds, it’s perfect for those seeking solace away from urban life.
Don't miss out on securing this building plot with full planning permission—your future home awaits in a location that blends charm with modern comforts. Act quickly, as plots like this are rare and won’t last long in such a sought-after area!
Land for sale in Derril, Nr. Pyworthy, EX22 — £125,000 • 1 bed • 1 bath • 1776 ft²
Land for sale in Derril, Nr. Pyworthy, EX22 — £105,000 • 4 bed • 2 bath • 1776 ft²
Land for sale in Derril, Holsworthy, EX22 — £195,000 • 5 bed • 4 bath • 2056 ft²
Land for sale in Limelight Plot, Poughill, Bude, EX23 — £500,000 • 5 bed • 6 bath • 3842 ft²
Plot for sale in Old Drovers Way, Stratton, Bude, Cornwall, EX23 — £165,000 • 1 bed • 1 bath • 917 ft²
Land for sale in West Putford, Holsworthy, EX22 — £299,000 • 1 bed • 1 bath • 3552 ft²


















































