Bright high-floor apartment near station and Lords, ideal for families.
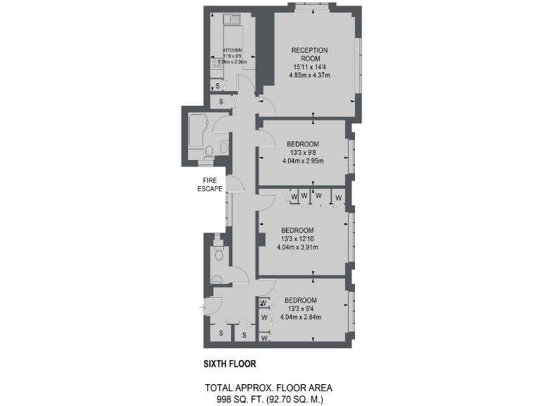
Sixth-floor flat with lift and 24-hour porterage
A bright three-bedroom apartment on the sixth floor of a portered Art Deco block in St John’s Wood. The large double-aspect reception soaks the apartment in daylight and offers pleasant courtyard and city views from a high level. With lift access and porterage the building suits families and professionals seeking convenience and a strong local feel.
The layout is traditional and well-proportioned: three good bedrooms, a family bathroom plus separate WC, and a separate kitchen. The long lease (151 years) provides security, and the location is a clear asset — a short walk to St John’s Wood High Street, Jubilee Line station and Lords cricket ground, with excellent broadband and mobile signal.
Buyers should note the high service charge (circa £8,000pa) and council tax band G, which increase running costs. Heating is via a community electric scheme and the building’s solid-brick construction likely has limited cavity insulation, so energy costs and potential retrofit work should be considered. There is no private outdoor space.
Overall this is a spacious, characterful apartment in a sought-after central location. It will appeal to families and professionals who prioritise location, concierge services and bright living spaces, while accepting above-average communal costs and typical period-building maintenance considerations.
3 bedroom apartment for sale in Grove Hall Court, Hall Road, St John's Wood, London, NW8 — £1,050,000 • 3 bed • 2 bath • 1082 ft²
3 bedroom apartment for sale in Hall Road, St Johns Wood, NW8 — £1,050,000 • 3 bed • 2 bath • 1019 ft²
3 bedroom apartment for sale in Grove Hall Court, Hall Road, London, NW8 — £1,450,000 • 3 bed • 2 bath • 1401 ft²
4 bedroom flat for sale in Hall Road, Grove Hall Court Hall Road, NW8 — £1,800,000 • 4 bed • 2 bath • 1591 ft²
3 bedroom flat for sale in Grove Hall Court,
Hall Road, NW8 — £1,050,000 • 3 bed • 2 bath • 1040 ft²
3 bedroom flat for sale in Hall Road, St Johns Wood, NW8 — £1,150,000 • 3 bed • 3 bath • 1003 ft²


























