Large freehold plot with consent for a high‑end new build in affluent Radlett.
Full planning permission to demolish and build a 7,000 sq ft seven‑bedroom luxury home
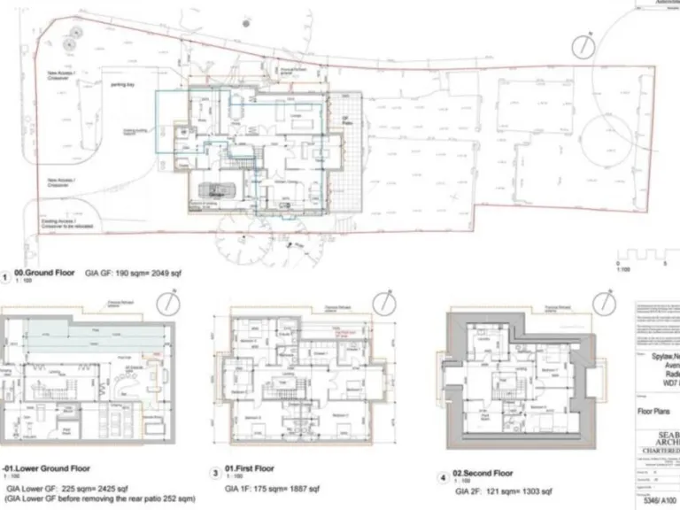
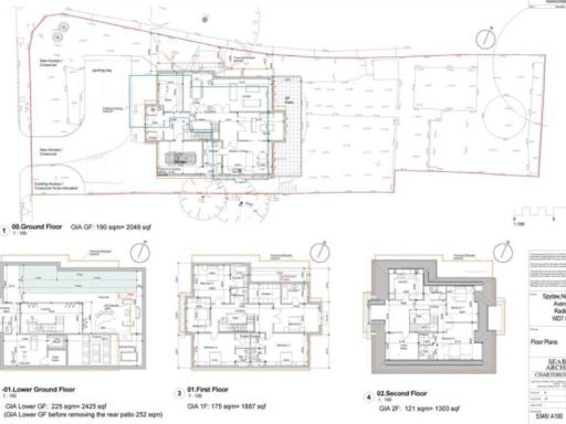
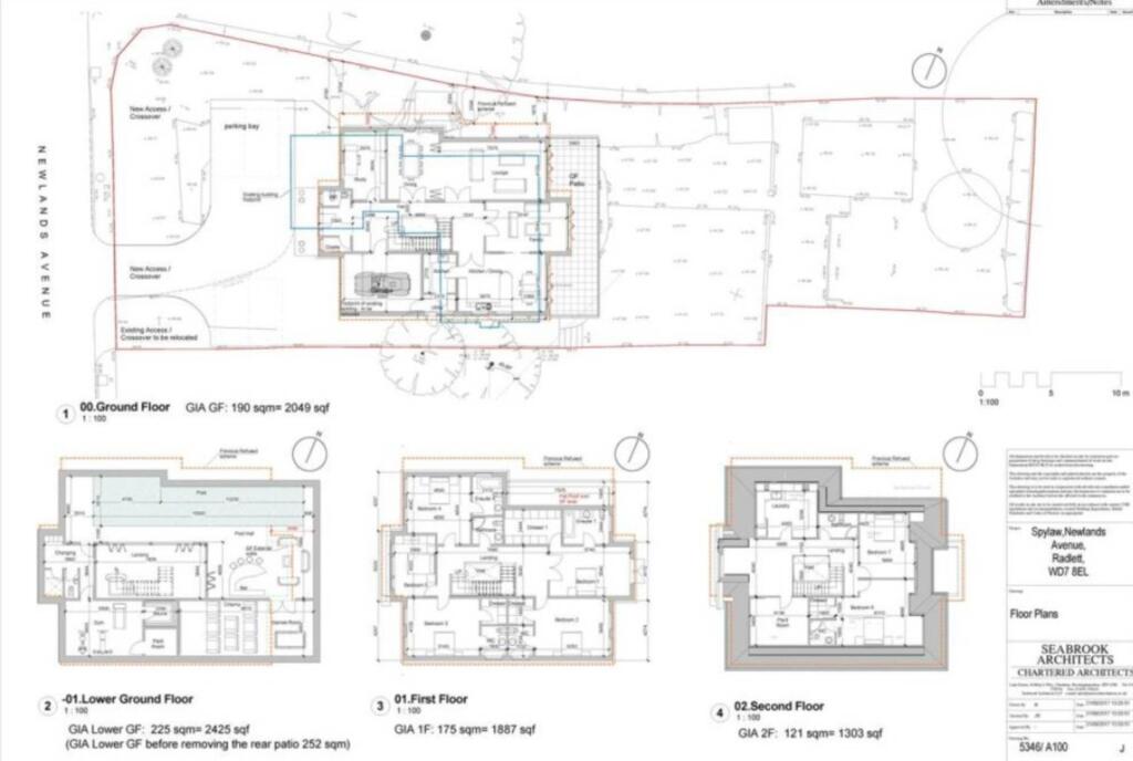
Spylaw House on Newlands Avenue is a rare development plot in affluent Radlett with full planning permission to replace the existing dwelling with a seven‑bedroom, basemented luxury house totalling approximately 7,000 sq ft. The consented scheme includes extensive leisure space (pool, cinema, gym/sauna), large ground‑floor entertaining rooms with bi‑fold doors to the garden, and substantial parking and garage provision — a high‑value, high‑margin opportunity close to top local schools and fast broadband.
The current mid‑century detached house provides immediate occupation or interim use: four double bedrooms, multiple reception rooms, kitchen/breakfast area, utility and a large garden with greenhouse and double garage. The plot is large, chain‑free, on freehold tenure and sits in a very affluent, low‑crime neighbourhood (WD7). Flood risk is nil and mobile signal is excellent — helpful for both residents and contractors during redevelopment.
Important practical points for buyers and developers: the existing property dates from c.1967–75 and shows signs of being dated and in need of modernisation; images note potential damp in parts and the cavity walls are assumed to have no added insulation. Full demolition is permitted under the planning consent, but any purchaser should factor in demolition costs, party wall and build‑cost contingencies, and statutory discharges before starting work.
This site suits a developer or private buyer seeking to deliver a substantial luxury home in a premium commuter suburb, or an investor looking to realise value through redevelopment. Interested parties must verify fixtures, services and measurements and carry out their own technical and legal due diligence.
7 bedroom detached house for sale in Newlands Avenue, Radlett, Hertfordshire, WD7 — £2,700,000 • 7 bed • 7 bath • 7000 ft²
Plot for sale in The Warren, Radlett, Hertfordshire, WD7 — £1,950,000 • 1 bed • 1 bath • 7664 ft²
5 bedroom detached house for sale in Loom Lane, Radlett, Hertfordshire, WD7 — £2,250,000 • 5 bed • 5 bath • 5500 ft²
Plot for sale in Loom Lane, Radlett, WD7 — £2,250,000 • 5 bed • 5 bath • 5563 ft²
7 bedroom detached house for sale in Newlands Avenue, Radlett, WD7 — £2,700,000 • 7 bed • 7 bath • 7000 ft²
6 bedroom detached house for sale in Newlands Avenue, Radlett, Hertfordshire, WD7 — £4,000,000 • 6 bed • 2 bath • 4000 ft²






































